Ingatlan Televízió
Ingatlan Televízió
további hirdetések
adatlap bezárása

Békéscsaba 
 

Hivatkozási szám: 5933775
Ingatlan adatai
Irányár: 72 900 000 Ft
Típus: kereskedelmi/ipari ingatlan
Kategória: eladó
Alapterület: 122 m2
Fűtés: -
Állapota: -
Szobák száma: -
Építés éve: 2025
Szintek száma: -
Részletes leírás
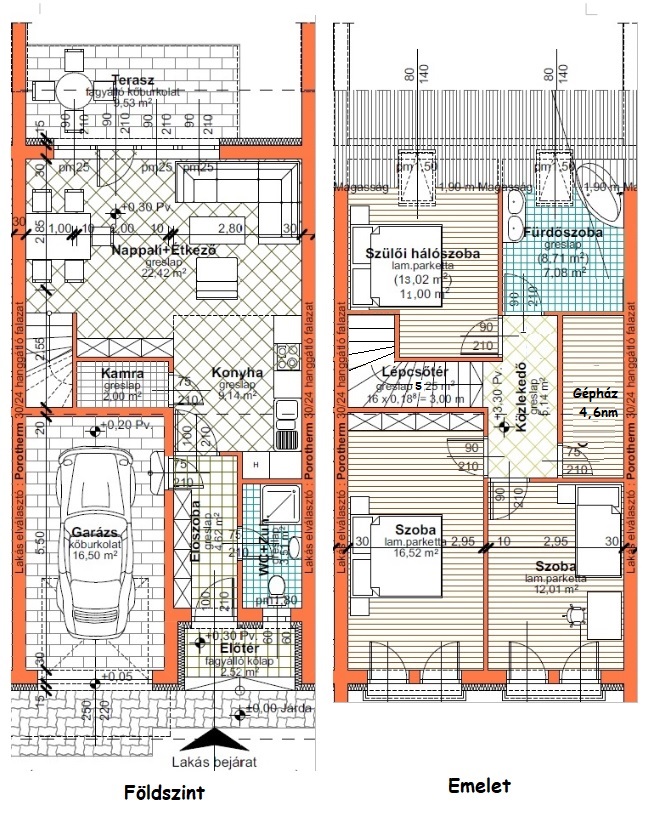
Békéscsabán a piac közelében csendes utcában eladó egy új építésű, 3+1 félszobás, 122nm-es, dupla komfortos, szélső sorházi lakás, ami tulajdoni lap szerint irodaként van nyilvántartva. Az ingatlan Porotherm 30cm-es okostéglából épült, 15cm-es homlokzati, 12cm-es lépésálló és 25cm-es üveggyapot tetőtér szigeteléssel rendelkezik. A 3 rétegű üvegezésű nyílászárók redőnnyel felszereltek, a villamos hálózat 3*16A + kedvezményes 1*20A „H” tarifa került bevezetésre, amiről működik a 10kw-os Beretta hőszivattyú - ami a padlófűtést és meleg vizet látja el - valamint a 2db Midea 5kw-os hűtő-fűtő fancoil. A szobák fűtése külön szabályozható és az egész rendszer \\\"okosítható\\\". Napelem, illetve teljes passzívház előkészítéssel rendelkezik az ingatlan. A zárt közös udvarra elektromos kapun, a fűtött garázsunkba pedig elektromos hőszigetelt garázskapun jutunk be. A garázs előtt lehetőség van még egy autóval történő parkolásra. Kb. egy 45nm-es saját kert tartozik a sorházhoz, ahol a 10nm-es terasz található.
Irányár 72.900.000Ft + 27% ÁFA (fordított), összesen 92.583.000Ft bruttó
További adatok
Telekterület: -
Kert mérete: -
Erkély mérete: -
Felszereltség: -
Parkolás: -
Kilátás: -
Egyéb extrák:  
Hirdető adatai
Hirdető neve: Alföld Ingatlan Center
Kapcsolattartó: Hernádi Ferenc
Hirdető telefonszáma: +36301538238
Honlap: -
 
Üzenetet küldhet a hirdetőnek, árajánlatot tehet az ingatlanra:
Az Ön neve:
Az Ön e-mail címe:
Üzenet: