Ingatlan Televízió
Ingatlan Televízió
további hirdetések
adatlap bezárása

Harkány 
 

Hivatkozási szám: 5930741
Ingatlan adatai
Irányár: 15 500 000 Ft
Típus: nyaraló
Kategória: eladó
Alapterület: 90 m2
Fűtés: elektromos
Állapota: -
Szobák száma: 3
Építés éve: 1980
Szintek száma: -
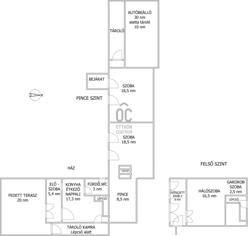
Részletes leírás
Harkányban a Tenkes csárda alatti dombon eladó egy lakható kisház nagy udvarral.
A terület hivatalosan zártkert, de művelés alól kivett terület, 1421 négyzetméter, Van rajta egy 50 négyzetméteres kisház, 20 négyzetméteres fedett terasszal, és egy 45 négyzetméteres melléképület, amiben fél-szuterén szinten van két szoba, és egy pince.
Két tárolóban lehet elhelyezni a kerti dolgokat, és két kocsinak van kialakítva autóbeálló.
- Nagy fedett terasza van,
- víz be van kötve,
- H tarifa, vezérelt áram, és 32 A áll rendelkezésre,
- Szennyvíztartálya 6 m3-es,
- egy ciszterna is rendelkezésre áll,
- a házban, és a melléképületben is hűtő-fűtő légkondi került kialakításra, ami befűti az egész teret, ez mellett a házban egy fatüzelésű kandallóval is lehet fűteni.
- Az ablakok többsége műanyag, a belső térben a belmagasság 245 cm,
- a konyha szép modern kialakítású, kényelmes, mosogatógéppel, villanytűzhellyel,
- a fürdőszoba és a wc egy helyiségben van, zuhanyfülkés,
- az emeletre, a tetőtérbe vezető lépcső kényelmes,
- a hálószobában helyet kapott egy gardrób sarok is,
- a hálószobából nyíló beüvegezett erkélyről nagyon szép a kilátás a Szársomlyóra, és a környező házakra, ellátni egészen a Siklósi várig.
- a melléképületben két egymásból nyíló szoba található, egy pincével. Ebből a pincéből kis átalakítással a két házrész összenyitható, régen úgy volt. Ez a lakrész járólapozott, műanyag ablakos.

Az ingatlan végig kavicsos úton megközelíthető, akár a legnagyobb hóban is.

Az ingatlant javaslom nyaralónak, hobbikertnek, mert nagy kert tartozik hozzá. Megfelelő lehet családi háznak is, többen is laknak a környéken. A szomszédok kedvesek, segítőkészek.
Hamar birtokba vehető, tehermentes ingatlan.
Amennyiben meg szeretné tekinteni, egyeztessünk időpontot!
További adatok
Telekterület: 1 421 m2
Kert mérete: 1 421 m2
Erkély mérete: 26 m2
Felszereltség: -
Parkolás: -
Kilátás: -
Egyéb extrák:  
Hirdető adatai
Hirdető neve: Otthon Centrum
Kapcsolattartó: Szegedi Szilvia
Hirdető telefonszáma: +36 70 412 5231
Honlap: -
 
Üzenetet küldhet a hirdetőnek, árajánlatot tehet az ingatlanra:
Az Ön neve:
Az Ön e-mail címe:
Üzenet: