Ingatlan Televízió
Ingatlan Televízió
további hirdetések
adatlap bezárása

Budapest, III.kerület 
 

Hivatkozási szám: 5929730
Ingatlan adatai
Irányár: 159 900 000 Ft
Típus: telek
Kategória: eladó
Alapterület: -
Fűtés: -
Állapota: -
Szobák száma: -
Építés éve: -
Szintek száma: -
Részletes leírás
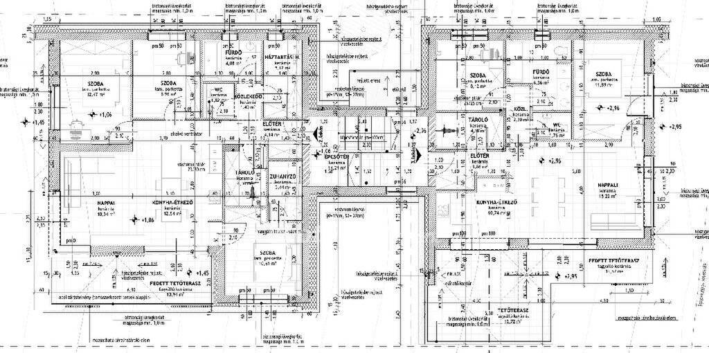
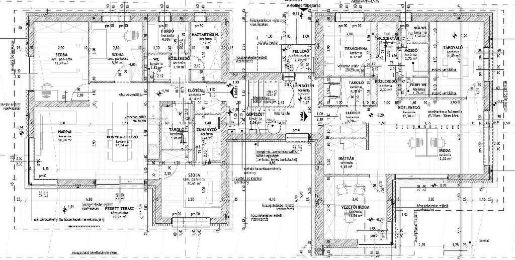
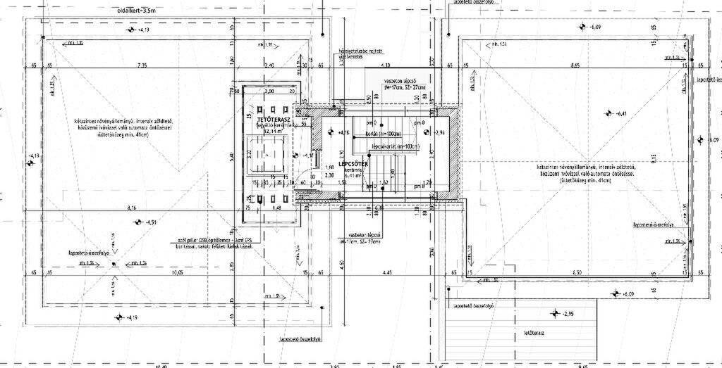
Budapest III. kerületében eladó egy 1751 négyzetméter alapterületű fejlesztési telek, amelyhez teljes tervdokumentáció és engedélyezési terv tartozik. A projekt egy modern lakóépület és egy támfalgarázs megépítésére készült, így az új tulajdonos egy már előkészített beruházási lehetőséget vásárol meg.

A tervek alapján a telken egy korszerű, több szintes épület valósítható meg, amelyben három lakás és egy iroda kerül kialakításra. A lakások kiszolgálását egy terepszint alatti támfalgarázs biztosítja, amely a szükséges parkolóhelyeket nyújtja az épület számára.

A telek övezeti besorolása Lke-2 / SZ-N3, szabadon álló beépítési móddal. A tervezett épület terepszint feletti beépítettsége 14,98 százalék, amely megfelel a megengedett legfeljebb 15 százalékos beépíthetőségnek. A szintterületi mutató 0,31, amely szintén a szabályozási határértékeken belül van.

A tervezett A épület teljes bruttó szintterülete 510,29 négyzetméter, míg a parkolást biztosító B épület 69,98 négyzetméter alapterületű támfalgarázs. Az épületmagasság 6,31 méter, amely megfelel a helyi építési szabályzatban előírt követelményeknek.

A projekt modern építészeti megoldásokkal készült, nagy üvegfelületekkel, zöldtetős kialakítással és igényes homlokzati anyaghasználattal. A telek jelentős zöldfelülettel rendelkezik, így a megvalósuló épület kellemes, zöld környezetben helyezkedhet el.

Az ingatlan befektetők, kivitelezők vagy akár hosszabb távú fejlesztésben gondolkodók számára is kiváló lehetőség, hiszen a projekt a szükséges tervekkel együtt kerül értékesítésre.

A vásárlást teljes körű, díjmentes tanácsadás és helyben történő, gyors és egyszerű hitelügyintézés segíti. Ne maradjon le erről a kedvező lehetőségről, érdeklődjön bizalommal.
M324781
Az OTP Ingatlanpont, mint egyetlen közvetlen banki hátterű ingatlanközvetítő társaság teljes körű ügyintézéssel áll az eladók és a vevők rendelkezésére! A kínálatunkból választott ingatlan finanszírozásához minősített fogyasztóbarát, piaci és kedvezményes hitel- és lízingkonstrukciókat kínálunk (lakásvásárlási hitel, CSOK plusz, szabad felhasználású hitel, babaváró hitel, céges hitelek, pályázatok, amennyiben az ügyfél és az ingatlan megfelel a feltételeknek). Az adásvételi szerződés megkötéséhez igény szerint megbízható ügyvédi közreműködést biztosítunk, és segítséget nyújtunk az adásvételhez kapcsolódó egyéb ügyek intézéséhez.
Ha az új ingatlana megvásárlásához a jelenlegi ingatlanát el kell adnia, abban is szívesen segítünk.

Referencia szám: M324781-ITV
További adatok
Telekterület: 1 751 m2
Kert mérete: -
Erkély mérete: -
Felszereltség: -
Parkolás: -
Kilátás: -
Egyéb extrák:  
Hirdető adatai
Hirdető neve: otpip.hu - Budapest XIII. kerület Lehel utca 50 - OTP Ingatlanpont Iroda
Kapcsolattartó: Takács Zsuzsanna
Hirdető telefonszáma: +36304953819
Honlap: -
 
Üzenetet küldhet a hirdetőnek, árajánlatot tehet az ingatlanra:
Az Ön neve:
Az Ön e-mail címe:
Üzenet: