Ingatlan Televízió
Ingatlan Televízió
további hirdetések
adatlap bezárása

Budaörs 
 

Hivatkozási szám: 5922281
Ingatlan adatai
Irányár: 440 000 000 Ft
Típus: kereskedelmi/ipari ingatlan
Kategória: eladó
Alapterület: 900 m2
Fűtés: gáz (cirko)
Állapota: felújított
Szobák száma: -
Építés éve: 1990
Szintek száma: -
Részletes leírás
Befektetők figyelem! Kiváló fejlesztési projekt Budaörs szívében!
Eladó egy 1.515 nm-es telken fekvő, 900 nm összterületű ingatlanegyüttes Budaörs központi részén! Az ingatlan sokoldalú hasznosítási lehetőségeivel, kiemelkedő bérleti hozamával és stratégiai elhelyezkedésével remek befektetési lehetőséget kínál.

Főbb jellemzők:
Épületek összesen: 900 nm
Elhelyezkedés: M1-M7 csomópont közelében, Budapest könnyen elérhető
Funkciók: szálló, munkásszálló, irodák, bemutatóterem, raktár

Épületek és kapacitás:
A épület: 221 nm, kétszintes szálló, 30 fő elszállásolására

B épület: Közös használatú teakonyha

C épület: 221 nm, földszintes szálló, 18 fő kapacitással

D & E épületek: Tárolók, irodák, bemutatóterem, összesen 278 nm

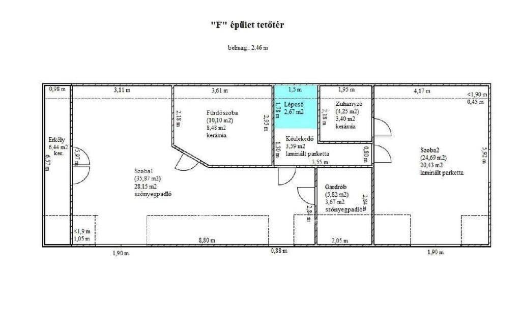
F épület: 183 nm lakóház, 12 fő befogadására, saját terasszal

Kiemelt előnyök:
Jövedelmező befektetés: az ingatlan jelenleg is bérbe van adva
Rugalmas hasznosítás: szállás, irodák, raktárak, üzleti célok
Kiváló közlekedés: buszmegálló 5 perc sétára, autópálya pár percre
Teljes közműellátottság: víz, villany, gáz, csatorna
Biztonság: kamerarendszerrel felszerelt

M322471
Az OTP Ingatlanpont, mint egyetlen közvetlen banki hátterű ingatlanközvetítő társaság teljes körű ügyintézéssel áll az eladók és a vevők rendelkezésére! A kínálatunkból választott ingatlan finanszírozásához minősített fogyasztóbarát, piaci és kedvezményes hitel- és lízingkonstrukciókat kínálunk (lakásvásárlási hitel, CSOK plusz, szabad felhasználású hitel, babaváró hitel, céges hitelek, pályázatok, amennyiben az ügyfél és az ingatlan megfelel a feltételeknek). Az adásvételi szerződés megkötéséhez igény szerint megbízható ügyvédi közreműködést biztosítunk, és segítséget nyújtunk az adásvételhez kapcsolódó egyéb ügyek intézéséhez.
Ha az új ingatlana megvásárlásához a jelenlegi ingatlanát el kell adnia, abban is szívesen segítünk.

Referencia szám: M322471-ITV
További adatok
Telekterület: -
Kert mérete: -
Erkély mérete: -
Felszereltség: -
Parkolás: -
Kilátás: -
Egyéb extrák:  
Hirdető adatai
Hirdető neve: otpip.hu - Budapest XIII. kerület Lehel utca 50 - OTP Ingatlanpont Iroda
Kapcsolattartó: Takács Zsuzsanna
Hirdető telefonszáma: +36304953819
Honlap: -
 
Üzenetet küldhet a hirdetőnek, árajánlatot tehet az ingatlanra:
Az Ön neve:
Az Ön e-mail címe:
Üzenet: