Ingatlan Televízió
Ingatlan Televízió
további hirdetések
adatlap bezárása

Budapest, XIII.kerület 
 

Hivatkozási szám: 5920503
Ingatlan adatai
Irányár: 79 990 000 Ft
Típus: lakás (újépítésű)
Kategória: eladó
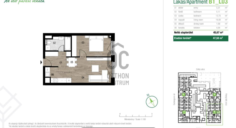
Alapterület: 46 m2
Fűtés: -
Állapota: új
Szobák száma: 2
Építés éve: 2027
Szintek száma: -
Részletes leírás
Projekt bemutatása

Van egy pont a XIII. kerületben, ahol a városi pezsgés és a zöld környezet valódi egyensúlyban van. Ahol két perc sétára található a metró, mégis parkok, sétányok és a Duna közelsége határozza meg a mindennapokat. A Viza Grand Park ezen a ponton épül – Budapest egyik legdinamikusabban fejlődő, folyamatosan értékelődő városrészében.

Ez nem kompromisszumos választás. Ez tudatos döntés egy olyan lokáció mellett, amely évek óta stabilan a főváros élmezőnyébe tartozik. Vizafogó ma már nem feltörekvő terület, hanem bizonyítottan keresett, élhető és értéktartó környezet.
A kiváló közlekedési kapcsolatok, a parkosított közterületek és a vízpart közelsége egyszerre biztosítanak kényelmet és életminőséget.

A Viza Grand Park modern, letisztult építészeti megjelenéssel készül. A lakások átgondolt alaprajzúak, világos terekre és jól bútorozható elrendezésre épülnek. A nagy üvegfelületek természetes fényt engednek a belső terekbe, miközben a korszerű műszaki tartalom hosszú távú biztonságot nyújt.

Az épület A+ energiahatékonysági besorolással valósul meg, korszerű gépészeti rendszerrel és alacsony fenntartási költséggel. A modern hűtés-fűtési megoldások nemcsak komfortot, hanem kiszámítható üzemeltetést is biztosítanak. A projekt a mai elvárásoknak megfelelő műszaki színvonalon készül, időtálló minőségben.

Az átadás 2027 végén történik.

A Viza Grand Park azoknak szól, akik nem csupán új lakást keresnek, hanem stabil lokációt, alacsony fenntartású, modern otthont és hosszú távon is értékálló ingatlant Budapest egyik legfelkapottabb részén.
További adatok
Telekterület: -
Kert mérete: -
Erkély mérete: -
Felszereltség: -
Parkolás: -
Kilátás: utcai
Egyéb extrák:  
Hirdető adatai
Hirdető neve: Otthon Centrum
Kapcsolattartó: Bajzát András
Hirdető telefonszáma: +36 70 716 8466
Honlap: -
 
Üzenetet küldhet a hirdetőnek, árajánlatot tehet az ingatlanra:
Az Ön neve:
Az Ön e-mail címe:
Üzenet: