Ingatlan Televízió
Ingatlan Televízió
további hirdetések
adatlap bezárása

Kistarcsa 
 

Hivatkozási szám: 5920325
Ingatlan adatai
Irányár: 145 900 000 Ft
Típus: ház
Kategória: eladó
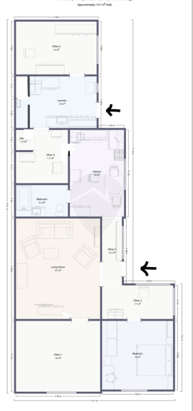
Alapterület: 125 m2
Fűtés: egyéb
Állapota: -
Szobák száma: 4
Építés éve: 1970
Szintek száma: -
Részletes leírás
Ez a kistarcsai családi ház ideális választás azoknak, akik nyugodt kertvárosi környezetben szeretnének élni, mégis gyorsan elérni Budapestet.

Kistarcsán, csendes, rendezett, kiváló lakóközösségű utcában kínálunk megvételre egy 125 nm-es lakóterületű, két bejárattal rendelkező, kétgenerációs családi házat. A külön bejáratú lakrészek lehetővé teszik több generáció együttélését, de alkalmas lehet bérbeadásra vagy otthoni vállalkozás kialakítására is.

A ház masszív tégla falazattal épült, tetőfedése időtálló Bramac cserép. A korszerű műanyag nyílászárók jó hőszigetelést biztosítanak. A fűtésről kombi gázkazán és vegyes tüzelésű kazán gondoskodik, a hőleadás a szobákban radiátorokon keresztül történik, míg a többi helyiségben kellemes padlófűtés biztosítja a komfortot.

A szobák burkolata igényes szalagparketta, amely tovább fokozza az otthon meleg hangulatát.

Az ingatlan egy 1073 nm-es, gondozott telken helyezkedik el, ahol gyümölcsfák is megtalálhatók – tökéletes helyszín pihenéshez vagy családi összejövetelekhez. Udvaron fúrt kút található, így megoldott a kert gondozásához szükséges víz. A 11 nm-es terasz ideális a reggeli kávézáshoz vagy esti kikapcsolódáshoz.

A parkolásról garázs, valamint térkövezett felszíni gépkocsibeálló gondoskodik.

Ez az otthon kiváló elhelyezkedésének, praktikus kialakításának és barátságos környezetének köszönhetően ritka lehetőség a piacon.

Ne hagyja ki – jöjjön el, és szeressen bele!
További adatok
Telekterület: 1 079 m2
Kert mérete: 1 079 m2
Erkély mérete: 11 m2
Felszereltség: -
Parkolás: -
Kilátás: utcai
Egyéb extrák:  
Hirdető adatai
Hirdető neve: Intor Ingatlan Powered By RH
Kapcsolattartó: Kertész Rebeka
Hirdető telefonszáma: +36 70 467 6820
Honlap: -
 
Üzenetet küldhet a hirdetőnek, árajánlatot tehet az ingatlanra:
Az Ön neve:
Az Ön e-mail címe:
Üzenet: