Ingatlan Televízió
Ingatlan Televízió
további hirdetések
adatlap bezárása

Budapest, IV.kerület 
 

Hivatkozási szám: 5919074
Ingatlan adatai
Irányár: 140 290 000 Ft
Típus: lakás (újépítésű)
Kategória: eladó
Alapterület: 90 m2
Fűtés: -
Állapota: új
Szobák száma: 4
Építés éve: 2026
Szintek száma: -
Részletes leírás
KISFALUDY PROJEKT – ÚJ ÉPÍTÉSŰ TÁRSASHÁZI LAKÁSOK A IV. KERÜLETBEN

Budapest IV. kerületében, csendes kertvárosi környezetben valósul meg a Kisfaludy Projekt. egy modern, mindössze 4 lakásos társasház utcafronti üzlethelyiséggel.

A projekt különlegessége az alacsony lakásszám, az átgondolt alaprajzok és a korszerű, energiahatékony műszaki tartalom.
A lakások 30%-al leköthetők! A földszinti garzon, ÉRTÉKESÍTÉSRE került!

ÉPÜLET ELRENDEZÉSE
Földszint
•Garzonlakás (eladva) – előtér, nappali–konyha–étkező, fürdő
•Üzlethelyiség – iroda, raktár, mosdó kialakítással
1. emelet – 2 lakás
•Előtér
•Nappali–konyha–étkező
•2 hálószoba
•Fürdőszoba
•Külön WC
Ideális választás családok számára.

2. emelet – 1 lakás
•Előtér
•Közlekedő
•Nappali–konyha–étkező
•3hálószoba
•Fürdőszoba
•Külön WC
Tágas, kényelmes, jól szeparált életterek.

MŰSZAKI TARTALOM
Szerkezet
•60 cm széles sávalap
•25 cm Porotherm N+F vázkerámia falazóelem
•10 cm Porotherm válaszfalak
•Monolit vasbeton födém
•Bramac Tectura betoncserép fedés
Szigetelés
•Lábazat: 12 cm XPS
•Határoló falak: 15 cm kőzetgyapot
•Tetőszerkezet: 2x15 cm Rockwool
Nyílászárók
•3 rétegű műanyag nyílászárók a kiváló hő- és hangszigetelés érdekében

FŰTÉS / HŰTÉS / MELEGVÍZ
•Felső szinteken: egyedi hőszivattyús padlófűtés + mennyezeti hűtés
•Földszinten: hűtő-fűtő klíma okos bojler
•Használati meleg víz: hőszivattyúról működtetett meleg víz tároló
•Az albetétek egyedi fűtéssel és egyedi használati meleg víz-ellátással rendelkeznek
Energiahatékony, modern, gazdaságosan fenntartható megoldások.

LOKÁCIÓ
Csendes kertvárosi környezet, mégis minden karnyújtásnyira:
•Újpesti Piac – 3 perc
•Újpest-központ metróállomás (M3) – 5 perc
•Szakorvosi rendelő – 5 perc
•Egyetem – 10 perc
•Duna-part – 6 perc

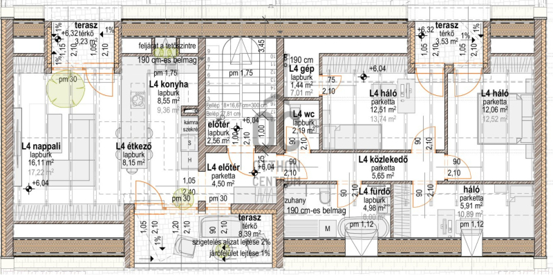
II. emelet 4. lakás

A projekt legnagyobb alapterületű lakása: nettó 89.74 bruttó 107.9 m2

3 hálószoba
Fürdőszoba
külön wc-kézmosó
Nappali
konyha-étkező
közlekedő
1 utcafronti terasz
2 hátsó terasz, mely a belső udvarra néz.
Fedett parkoló, elektromos autó töltés előkészítéssel 8M Ft.

Projekt bemutatóval és részletes műszaki tartalommal kapcsolatban várom megtisztelő hívását!

Kiváló infrastruktúra és közlekedés, nyugodt lakókörnyezetben.
További adatok
Telekterület: -
Kert mérete: -
Erkély mérete: 8 m2
Felszereltség: -
Parkolás: -
Kilátás: udvari
Egyéb extrák:  
Hirdető adatai
Hirdető neve: Otthon Centrum
Kapcsolattartó: Regdon Ildikó
Hirdető telefonszáma: +36 70 716 8146
Honlap: -
 
Üzenetet küldhet a hirdetőnek, árajánlatot tehet az ingatlanra:
Az Ön neve:
Az Ön e-mail címe:
Üzenet: