Ingatlan Televízió
Ingatlan Televízió
további hirdetések
adatlap bezárása

Szolnok 
 

Hivatkozási szám: 5918911
Ingatlan adatai
Irányár: 54 663 000 Ft
Típus: lakás (újépítésű)
Kategória: eladó
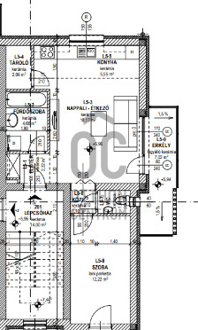
Alapterület: 52 m2
Fűtés: házközponti egyedi méréssel
Állapota: új
Szobák száma: 2
Építés éve: 2026
Szintek száma: -
Részletes leírás
Eladó újépítésű lakások Szolnok belváros közelében, modern társasházban!

Szolnok egyik kedvelt, belvároshoz közeli részén kínálunk megvételre egy most épülő, mindössze 7 lakásos, exkluzív megjelenésű társasházban kialakított lakásokat. A kis lakásszám nyugodt, családias környezetet biztosít, miközben minden fontos szolgáltatás könnyedén elérhető.

A lakások tervezésénél kiemelt szerepet kapott a praktikus elrendezés és a mai kor igényeinek megfelelő műszaki tartalom. Kétféle alaprajz közül választhat:
– amerikai konyhás nappali + 1 hálószoba
– amerikai konyhás nappali + 2 hálószoba
Ára : 1 050 000 Ft/nm

A modern épület egyik legnagyobb előnye a korszerű, energiatakarékos hőszivattyús rendszer, amely padló- és mennyezeti hűtés-fűtést biztosít. Ennek köszönhetően alacsony fenntartási költségek mellett, egyenletes hőérzet és magas komfort biztosított minden évszakban.

Főbb jellemzők:
• újépítésű, modern társasház
• mindössze 7 lakás – csendes, nyugodt lakókörnyezet
• hőszivattyús padló- és mennyezeti hűtés-fűtés
• praktikus, jól kihasználható terek
• ideális saját otthonnak vagy befektetésnek
• várható átadás: 2026 május

A lakásokhoz fedett gépkocsi beálló vásárolható, (ára: 5 millió ) így a parkolás is kényelmesen megoldott.

Az ingatlan kiváló választás mindazok számára, akik modern, energiatakarékos otthont keresnek jó elhelyezkedéssel, vagy hosszú távon értékálló befektetésben gondolkodnak.

Irodánkban bankfüggetlen hitel-ügyintézéssel állunk ügyfeleink rendelkezésére!

A hirdetésben szereplő információkat a megbízótól kaptuk, irodánk azokért felelősséget nem vállal!

Ha felkeltettem érdeklődését, kérem hívjon és nézzük meg együtt !
További adatok
Telekterület: -
Kert mérete: -
Erkély mérete: 7 m2
Felszereltség: -
Parkolás: -
Kilátás: kertre néző
Egyéb extrák:  
Hirdető adatai
Hirdető neve: Otthon Centrum
Kapcsolattartó: Szűcsné Rácz Erzsébet
Hirdető telefonszáma: +36 70 469 3171
Honlap: -
 
Üzenetet küldhet a hirdetőnek, árajánlatot tehet az ingatlanra:
Az Ön neve:
Az Ön e-mail címe:
Üzenet: