Ingatlan Televízió
Ingatlan Televízió
további hirdetések
adatlap bezárása

Budapest, IX.kerület 
 

Hivatkozási szám: 5918755
Ingatlan adatai
Irányár: 950 000 000 Ft
Típus: kereskedelmi/ipari ingatlan
Kategória: eladó
Alapterület: 2 566 m2
Fűtés: -
Állapota: -
Szobák száma: -
Építés éve: 2012
Szintek száma: -
Részletes leírás
Eladó ipari–kereskedelmi telephely Budapest IX. kerületében, Gubacsidűlőn

Budapest dinamikusan fejlődő ipari övezetében kínálunk megvételre egy sokoldalúan hasznosítható, kiváló adottságokkal rendelkező céges telephelyet, 950 millió Ft + ÁFA irányáron.

Lokáció és megközelíthetőség
Az ingatlan a H6-os HÉV és a vasút közvetlen környezetében helyezkedik el, amely mind közösségi közlekedéssel, mind gépjárművel gyors és hatékony elérhetőséget biztosít. A környék logisztikai és ipari szempontból kiemelten előnyös.

Telekadatok
Telekterület: 6748 m²
A terület jelentős része burkolt, belső úthálózattal, fedett tárolókkal és felszíni parkolókkal kialakított.

Felépítmények

Portaépület
Földszintes téglaépület
Alapterület: 6,81 m²

Iroda és raktárépület
Kétszintes téglaépület (1990-es évek)
Földszint: 354,67 m²
Tetőtér: 276,71 m²
10 cm dryvit homlokzati szigetelés
Vegyes födémszerkezet (vasbeton és fafödém, acélszerkezetű alátámasztás)
Fűtés: szintenként külön gázcirkó

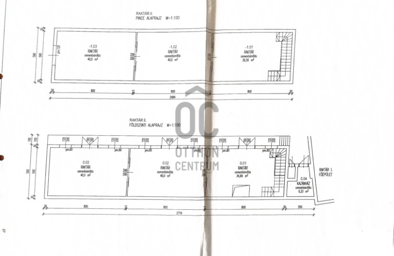
Alápincézett raktárépület
Pince: 58,28 m²
Földszint: 120,99 m²
Tégla falazat, vasbeton födém, hullámpala fedés
Kiépített elektromos hálózat

Üzemi csarnok
Alapterület: 1081,47 m²
Építés éve: 2012
Beton sávalap, acél vázszerkezet, acélfödém, fémlemez fedés
Jelenlegi funkció: gyártóüzem
Fűtés: légbefúvásos sugárzók
Kialakított irodarész, vizesblokk, teakonyha

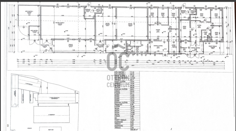
Földszintes raktárépület szociális blokkal
Alapterület: 666,98 m²
Tégla falazat, vasbeton födém, hullámpala fedés
Raktár- és szociális funkciók

Fedett tárolók és színek
Utcai fedett szín: 180 m²
Raktárépület előtti fedett szín: 365 m²
Fedett gépkocsi-beállók: 200 m²

Hasznosítási lehetőségek
Az ingatlan ideális választás:

– ipari, gyártási vagy logisztikai tevékenységre
– raktározási és disztribúciós célokra
– befektetési célú bérbeadásra
– többfunkciós vállalati telephely kialakítására

A telephely kialakítása, infrastruktúrája és elhelyezkedése stabil, hosszú távú üzleti potenciált biztosít.
Az energetikai tanúsítvány elkészítése folyamatban van.

További információért és megtekintés egyeztetéséhez állok rendelkezésére.
További adatok
Telekterület: -
Kert mérete: -
Erkély mérete: -
Felszereltség: -
Parkolás: -
Kilátás: -
Egyéb extrák:  
Hirdető adatai
Hirdető neve: Otthon Centrum
Kapcsolattartó: Antal Mónika
Hirdető telefonszáma: +36 70 461 9181
Honlap: -
 
Üzenetet küldhet a hirdetőnek, árajánlatot tehet az ingatlanra:
Az Ön neve:
Az Ön e-mail címe:
Üzenet: