Ingatlan Televízió
Ingatlan Televízió
további hirdetések
adatlap bezárása

Pécel 
 

Hivatkozási szám: 5918619
Ingatlan adatai
Irányár: 89 900 000 Ft
Típus: telek
Kategória: eladó
Alapterület: 3 762 m2
Fűtés: -
Állapota: -
Szobák száma: -
Építés éve: -
Szintek száma: -
Részletes leírás
CSAK NÁLUNK!

Egyedi LEHETŐSÉG, KIVÁLÓ BEFEKTETÉS!

Eladó külterületi építési telek, engedéllyel Pécel városközpontjában – megkezdett építkezéssel!


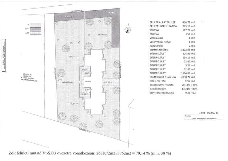
Pécel városközpontjában eladó egy 3762 m²-es külterületi, de beépíthető építési telek, kertvárosi nyugodt környezetben, remek megközelítéssel.

A telekre érvényes, elfogadott tervdokumentáció készült, amely az E-napló rendszerében feltöltve és jóváhagyva szerepel, így az építkezés folytatható. Az építkezés már megkezdődött, a jogszabályok szerint 2027 szeptemberéig szükséges befejezni!



A jóváhagyott tervek alapján egy 787,22 m² bruttó alapterületű épület valósítható meg, amely két nagyméretű lakást tartalmaz:

• lakásonként 393,61 m² alapterület,
• lakásonként 26,04 m² erkély.

Telek jellemzői:

• Telek mérete: 3762 m²
• Övezeti besorolás: jelenleg Vi-SZ/5, a terv elfogadásakor Vt-SZ/3 volt az övezeti besorolás
• Utcafront szélessége: 93,13 m
• Aszfaltos úton megközelíthető
• Az útról a telekre a behajtó, betonozott engedélyezett.
• Csendes, rendezett utca
• Nem messze, felnőtt és gyermek játszótér, az új pumpa kapott helyet
• A tömegközlekedés csomópontjai séta távolságra vannak


Közművek:

• 2 db 3×32 amperes villanyóra
• víz a telken, 1 db vízórával
• csatorna a telken belül
• gáz az utcában


A telek kertvárosi környezetben, mégis a városközponthoz közel található, jó közlekedési lehetőségekkel, így kiváló választás lehet nagy értékű lakóingatlan fejlesztésére vagy befektetési célra.

További információért és megtekintéssel kapcsolatban keressen bizalommal!



Az ingatlan rugalmasan megtekinthető, PER, IGÉNY és TEHER mentes!

JÖJJÖN el, NÉZZE meg, SZERESSEN bele, TEGYEN ajánlatot!


A GDN HitelCentrum, KÖTELEZETTSÉG MENTESEN és DÍJMENTESEN, versenyezteti Önért a bankok hitelajánlatait. Ismerje meg a vissza nem térítendő állami támogatásokat!

* Otthon Start hitel,
• babaváró,
• CSOK+
• hitel,
* személyi kölcsön,
• megtakarítás,
• és EGYÉB BANKI tranzakcióban segítségére lehetünk!

• Igény esetén, ÜGYVÉDI segítséget nyújtunk, MEGFIZETHETŐ áron!


Ha az ingatlannal kapcsolatban bővebb felvilágosításra lenne szüksége, hívjon bizalommal, állok rendelkezésére!

F.M.
További adatok
Telekterület: 3 762 m2
Kert mérete: -
Erkély mérete: -
Felszereltség: -
Parkolás: -
Kilátás: -
Egyéb extrák:  
Hirdető adatai
Hirdető neve: GDN Ingatlanhálózat
Kapcsolattartó: Fenyvesi Marianna
Hirdető telefonszáma: +36-20-981-3790
Honlap: -
 
Üzenetet küldhet a hirdetőnek, árajánlatot tehet az ingatlanra:
Az Ön neve:
Az Ön e-mail címe:
Üzenet: