Ingatlan Televízió
Ingatlan Televízió
további hirdetések
adatlap bezárása

Budapest, VIII.kerület 
 

Hivatkozási szám: 5916647
Ingatlan adatai
Irányár: 2 147 483 647 Ft
Típus: kereskedelmi/ipari ingatlan
Kategória: eladó
Alapterület: 4 018 m2
Fűtés: -
Állapota: -
Szobák száma: -
Építés éve: 2005
Szintek száma: -
Részletes leírás
3★ BEJÁRATOTT SZÁLLODA ELADÓ – KIEMELKEDŐ BEFEKTETÉSI LEHETŐSÉG BUDAPEST VIII. KERÜLETÉBEN

Budapest VIII. kerületének dinamikusan fejlődő, belvárosi részén kínálunk megvételre egy bejáratott, jelenleg is működő, 3 csillagos szállodaépületet, magas,90% kihasználtággal működő amely stabil üzleti alapot és hosszú távon kiemelkedő befektetési potenciált biztosít.

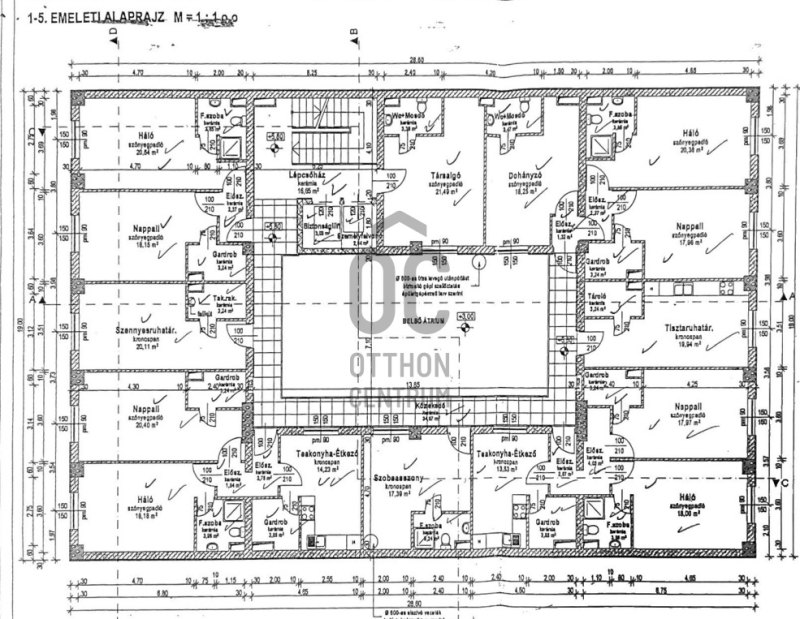
Az ingatlan jelenlegi kialakításában 105 szobás hotelként funkcionál, több szinten kialakított, jól átgondolt szállodai struktúrával.
Kiváló választás városi turizmusra, üzleti szálláshely üzemeltetésére vagy prémium újra pozicionálásra.

Főbb műszaki és alapterületi adatok

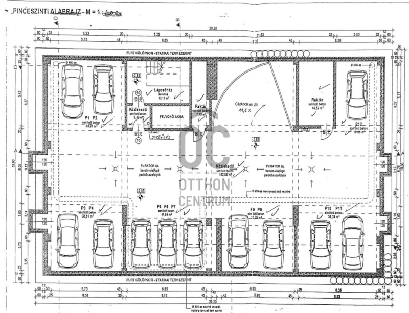
Pince hasznos alapterület: 393,94 m²

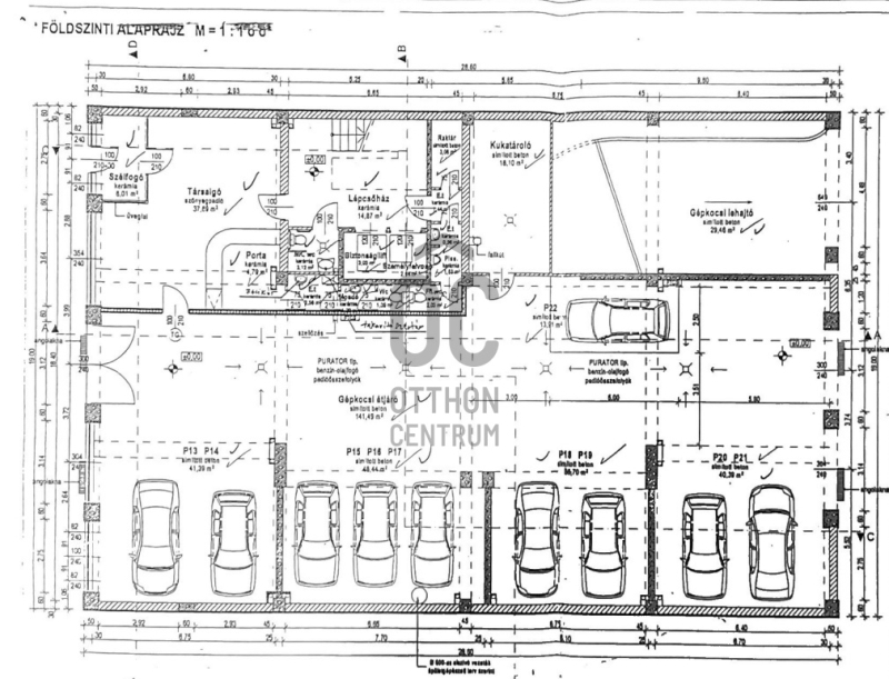
Földszint hasznos alapterület: 448,48 m²

Galéria hasznos alapterület: 467,21 m²

1–5. emelet (szintenként): 398,44 m²

Tetőtér hasznos alapterület: 381,30 m²

Padlástér hasznos alapterület: 334,54 m²

Összes hasznos alapterület: kb. 4 017 m²

Hotel kialakítás és szolgáltatások

105vendégszoba, Recepció és közösségi terek ,Belső átriumos kialakítás – természetes fényviszonyok, Liftkapcsolat az emeletek között(2 lift) ,

Szállodai működésre optimalizált alaprajzi struktúra, A szálloda kiemelkedő, 95%-os átlagos foglaltsági aránnyal működik.

Parkolási kapacitás – belvárosi viszonylatban kiemelkedő

Mélygarázs (pince szint):

12 db gépkocsi

Behajtás rámpán keresztül a hátsó udvar felől

kb. 320–350 m²

Földszinti parkolók:

10 db parkolóhely

Udvari parkolók:

4 db parkolóhely

Összes parkolóhely: 26 db
Teljes parkolási terület: kb. 500–550 m²

Szerkezeti és műszaki paraméterek

Monolit vasbeton szerkezet

Tégla falazat

Kerámia burkolatok, parkettás szobák

Korszerű gépészeti és elektromos rendszerek

Tűzvédelmi előírásoknak megfelelő kialakítás

Lokációs előnyök

Belvárosi elhelyezkedés

Kiváló tömegközlekedés (metró, villamos, busz)

Turisztikailag frekventált környezet

Egyetemek, szolgáltatások, éttermek sétatávolságban

Erős rövid- és hosszútávú szálláshely-kereslet

Befektetői szempontból kiemelkedő

Budapest egyik leggyorsabban fejlődő városrészében található ingatlan hosszú távon is értékálló, stabil hozamot biztosító befektetés, amely a jelenlegi működés mellett további üzleti lehetőségeket rejt.

További információért és személyes megtekintésért keressen bizalommal!
Egyedi igényekre szabott lakáshitelekkel állunk rendelkezésére.
Bankfüggetlen Hitelcentrumunk az országban elérhető összes bank és hitelintézet ajánlatát versenyezteti az Ön számára díjmentesen.
Munkatársaink nagy szakmai tapasztalattal, teljes körű CSOK PLUSZ és OTTHON START PROGRAM ügyintézéssel várják Önt előre egyeztetett időpontban akár a normál munkaidő után is.
További adatok
Telekterület: -
Kert mérete: -
Erkély mérete: -
Felszereltség: -
Parkolás: -
Kilátás: -
Egyéb extrák:  
Hirdető adatai
Hirdető neve: Otthon Centrum
Kapcsolattartó: Mauterer Szilvia
Hirdető telefonszáma: +36 70 716 8786
Honlap: -
 
Üzenetet küldhet a hirdetőnek, árajánlatot tehet az ingatlanra:
Az Ön neve:
Az Ön e-mail címe:
Üzenet: