Ingatlan Televízió
Ingatlan Televízió
további hirdetések
adatlap bezárása

Óbarok 
 

Hivatkozási szám: 5916507
Ingatlan adatai
Irányár: 960 000 000 Ft
Típus: telek
Kategória: eladó
Alapterület: 192 000 m2
Fűtés: -
Állapota: -
Szobák száma: -
Építés éve: -
Szintek száma: -
Részletes leírás
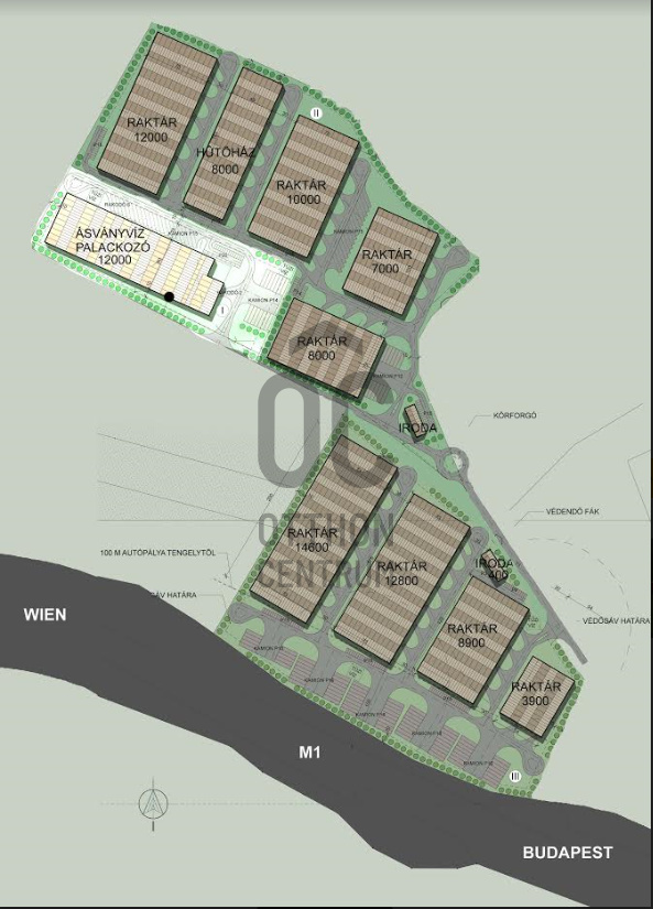
Eladó 19,2 ha beruházási terület az M1 mellett 60 %-os beépíthetőséggel

Elhelyezkedés:
- Központi régióban található
- Közvetlen autópálya lehajtó
- M0 10-15 percre
- Budapest 40 km
- Bécs 210 km
- Ferihegy 50 km
- Győr 80 km

A terület egy része közvetlen az autópálya mellett van, a másik része beljebb, csendesebb részen.

A beruházási terület nagyon sok lehetőséget rejt magában,
akár ipari hasznosításra,
- ásványvíz palackozó üzem,
- logisztikai központ,
- gyár, stb./

akár egyéb fejlesztésekre,
- idősek otthona,
- kórház,
- wellness központ stb./.

Övezeti besorolás: GKSZ
Beépíthetőség: 60 %
Építmény magasság: 12 méter
Minimum zöldfelület: 20 %
A területre összesen 115200 nm felépítmény építhető.

Az alsó terület mellett további 7 ha vásárlására van még lehetőség.
További adatok
Telekterület: 192 000 m2
Kert mérete: -
Erkély mérete: -
Felszereltség: -
Parkolás: -
Kilátás: -
Egyéb extrák:  
Hirdető adatai
Hirdető neve: Otthon Centrum
Kapcsolattartó: Dr. Kóczy Miklós
Hirdető telefonszáma: +36 70 388 5541
Honlap: -
 
Üzenetet küldhet a hirdetőnek, árajánlatot tehet az ingatlanra:
Az Ön neve:
Az Ön e-mail címe:
Üzenet: