Ingatlan Televízió
Ingatlan Televízió
további hirdetések
adatlap bezárása

Budapest, XV.kerület 
Rákospalota 

Hivatkozási szám: 5911609
Ingatlan adatai
Irányár: 39 900 000 Ft
Típus: ház
Kategória: eladó
Alapterület: 31 m2
Fűtés: -
Állapota: felújítást igényel
Szobák száma: 1
Építés éve: 1950
Szintek száma: -
Részletes leírás
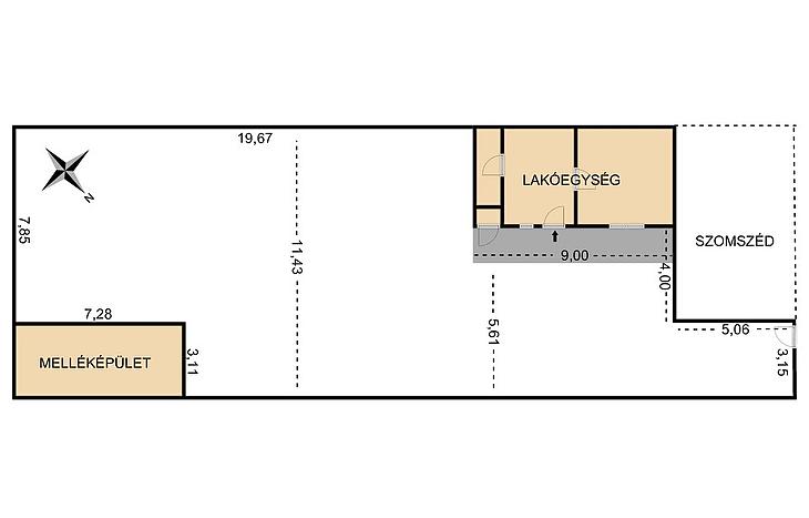
XV. KERÜLETBEN, RÁKOSPALOTÁN, ELADÓ 350 M2 TELKEN 31 M2 FELÚJÍTANDÓ HÁZRÉSZ 11 M2 FEDETT TERASSZAL



A TELEK JELLEMZŐI:

A telek övezeti besorolás szerint LK-2/IK-2 kategóriában helyezkedik el. Beépíthetősége 25%, a legkisebb zöld felület aránya 55%. A legnagyobb épület magassága maximum 6,5 méter. 67,5 nm egység lehet rajta földszinten, ez akár emeletráépítéssel duplázható. Hátsó egységként a hozzá tartozó kert rész átjárásmentes.

PARKOLÁS:

Telken belül vagy díjmentesen a ház előtt, utcafronton



KÖZLEKEDÉS:

Közelben a 231, 231B busz, néhány percre 96, 196, 196A, 296, 296A, 130 busz közlekedik.

IRÁNYÁR: 39,9 M FT

FINANSZÍROZÁS:

Az ingatlan banki finanszírozással is megvásárolható, melyben irodánk ingyenes tanácsadással áll rendelkezésükre!

VEVŐINK RÉSZÉRE A KÖZVETÍTÉS DÍJTALAN!!



A hirdetésben szereplő adatok tájékoztatás jellegűek!
További adatok
Telekterület: 350 m2
Kert mérete: 350 m2
Erkély mérete: -
Felszereltség: -
Parkolás: -
Kilátás: udvari
Egyéb extrák:  
Hirdető adatai
Hirdető neve: MPD Hungary Kft.
Kapcsolattartó: Újhely Ingatlan Kft.
Hirdető telefonszáma: +36202885981
Honlap: -
 
Üzenetet küldhet a hirdetőnek, árajánlatot tehet az ingatlanra:
Az Ön neve:
Az Ön e-mail címe:
Üzenet: