Ingatlan Televízió
Ingatlan Televízió
további hirdetések
adatlap bezárása

Halásztelek 
 

Hivatkozási szám: 5909989
Ingatlan adatai
Irányár: 99 900 000 Ft
Típus: ház
Kategória: eladó
Alapterület: 214 m2
Fűtés: gáz (cirko)
Állapota: felújítást igényel
Szobák száma: 5
Építés éve: 1980
Szintek száma: -
Részletes leírás
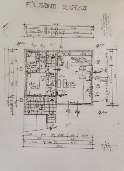
Halásztelek egyik legkeresettebb részén, hangulatos, csendes utcájában kínálok eladásra egy bruttó 235 m², nettó 214 m² alapterületű, háromszintes családi házat, amely nemcsak családok számára ideális, hanem kezdő pároknak, összeköltözőknek, befektetőknek és vállalkozóknak is kiváló lehetőséget kínál.

A ház alsó és felső szintje akár külön is használható, saját bejárattal, így tökéletes 2 generáció együttélésére, bérbeadásra, vagy üzleti célokra. A pince szinten tágas garázs és műhely található, ahol korábban kerékpár és kis háztartásigépszerelő tevékenység folyt, valamint nagy tároló és kazánház szolgálja a praktikus mindennapokat. A külön szerelőaknás garázsokban akár autószerelő műhely is kialakítható, vagy egyszerűen több gépjármű tárolására használható.

A földszinten amerikai konyhás, világos nappali, kamra, szoba és fürdőszoba található, a fürdőben masszázs zuhanykabin és ültetett kád biztosítja a kényelmet. A földszinthez tartozik még két tágas terasz és egy praktikus szélfogó, amelyek a családi élet és a kikapcsolódás ideális terepei. Az emeleten három hálószoba kapott helyet, kettő erkélyes, valamint egy fürdőszoba, ahol a kád mellett könnyen kialakítható egy zuhanyzó is, a rugalmasságot szem előtt tartva.

Ez a ház teljes felújítást igényel, így a leendő tulajdonos saját elképzelése szerint alakíthatja át álmai otthonává vagy befektetési céllal kihasználható üzleti terekké.
Minden fontos szolgáltatás – iskola, óvoda, bevásárlási lehetőségek, orvosi rendelő – rövid sétával vagy autóúttal elérhető. A buszmegálló pár perc sétára, az M0 autóút pedig néhány kilométerre található, így a közlekedés gyors és kényelmes.
Egyedülálló lehetőséget kínál mindazoknak, akik saját elképzelésük szerint szeretnének élni Halásztelken, vagy értéknövelő befektetést keresnek.

HASZNÁLJA KI A TÁMOGATÁSOKAT!
CSOK ÉS OTTHON START HITEL IGÉNYBE VEHETŐ AZ INGATLAN MEGVÁSÁRLÁSÁHOZ!

Egyedi igényekre szabott lakáshitelekkel állunk rendelkezésére. Bankfüggetlen Hitel Centrumunk az országban elérhető összes bank és hitelintézet ajánlatát versenyezteti az Ön számára díjmentesen. Teljes körű jogi háttér szolgáltatást nyújt irodánk.

Bővebb információért és megtekintési időpontért kérem hívjon bizalommal!

Ez az ingatlan a \\\"Felező csomag\\\" megbízási portfólióhoz tartozik. Részletek az Otthon Centrum weboldalán.
További adatok
Telekterület: 626 m2
Kert mérete: 626 m2
Erkély mérete: 25 m2
Felszereltség: -
Parkolás: -
Kilátás: -
Egyéb extrák:  
Hirdető adatai
Hirdető neve: Otthon Centrum
Kapcsolattartó: Hertelendiné Szabó Mónika Krisztina
Hirdető telefonszáma: +36 70 461 9891
Honlap: -
 
Üzenetet küldhet a hirdetőnek, árajánlatot tehet az ingatlanra:
Az Ön neve:
Az Ön e-mail címe:
Üzenet: