Ingatlan Televízió
Ingatlan Televízió
további hirdetések
adatlap bezárása

Nyíregyháza 
 

Hivatkozási szám: 5909987
Ingatlan adatai
Irányár: 36 500 000 Ft
Típus: ház
Kategória: eladó
Alapterület: 102 m2
Fűtés: gáz (cirko)
Állapota: új
Szobák száma: 4
Építés éve: 2026
Szintek száma: -
Részletes leírás
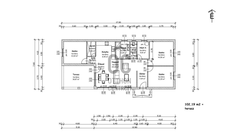
Eladó ÚJ ÉPÍTÉSŰ ingatlan saját magánúton kitűnő környéken Nyíregyháza Újkistelekiszőlőben.

-102,19 nm alapterületű + 18,87 nm terasz
-917nm telek terület
-3 szoba +nappali

Az ingatlan szerkezetkész állapotban eladó, ez a falazat valamint a nyeregtető valamint közmű kiállásokat jelenti.
Az ingatlan praktikus elrendezésű, tágas és világos terekkel rendelkezik. A nappali és a konyha-étkező egy légtérben kapott helyet, amely ideális a családi együttlétekhez és a vendégek fogadásához.

További információért és megtekintésért keressen bizalommal!

A hirdetésben szereplő információk a megbízótól kapott adatok alapján készültek, pontosságukért felelősséget nem vállalunk!

Amennyiben vásárláshoz hitelre is szüksége van, független hitel tanácsadónk ingyenesen tud Önnek segítséget nyújtani a legjobb konstrukciók kiválasztásában és a folyamat lebonyolításában. Irodánk kereső ügyfeleinknek teljes körű szolgáltatást nyújt, szakszerű tanácsadással, energetikai tanúsítvány elkészítésével, hitelügyintézéssel és profi ügyvédi segítséggel. Abban az esetben ha az ingatlan felkeltette érdeklődését keressen bizalommal!
További adatok
Telekterület: 793 m2
Kert mérete: 793 m2
Erkély mérete: 19 m2
Felszereltség: -
Parkolás: -
Kilátás: -
Egyéb extrák:  
Hirdető adatai
Hirdető neve: Otthon Centrum
Kapcsolattartó: Kosztyu -Tóbiás Nikolett
Hirdető telefonszáma: +36 70 469 3361
Honlap: -
 
Üzenetet küldhet a hirdetőnek, árajánlatot tehet az ingatlanra:
Az Ön neve:
Az Ön e-mail címe:
Üzenet: