Ingatlan Televízió
Ingatlan Televízió
további hirdetések
adatlap bezárása

Budapest, IX.kerület 
 

Hivatkozási szám: 5909883
Ingatlan adatai
Irányár: 185 325 000 Ft
Típus: lakás (újépítésű)
Kategória: eladó
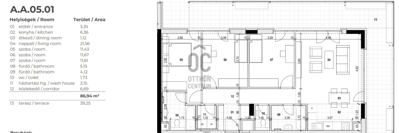
Alapterület: 87 m2
Fűtés: -
Állapota: új
Szobák száma: 4
Építés éve: 2025
Szintek száma: -
Részletes leírás
AZONNAL KÖLTÖZHETŐ | ZÖLD KERTRE NÉZ

Budapest IX. kerületében, a Metrodom Green lakóparkban eladó egy kiváló elosztású, nappali + 3 hálószobás, sarokteraszos otthon, amely csendes, zöld belső kertre néz, délnyugati tájolású, világos és élhető.

Főbb jellemzők:
- nappali + 3 külön nyíló hálószoba
- 2 fürdőszoba
- külön háztartási helyiség
- sarokterasz
- azonnal költözhető
- kiváló alaprajz, jól szeparált privát terek

PROJEKT – ZÖLD OÁZIS A BELVÁROS KÖZELÉBEN
Egy modern, már ÁTADOTT, prémium lakópark, ahol a városi élet kényelme és a természet közelsége találkozik. A gazdag növényzettel kialakított belső kert, a zöld homlokzatok és a közösségi terek valódi nyugalmat adnak – miközben a belváros percek alatt elérhető.

Elérhető rozsdaövezeti kedvezmény:
- 5% ÁFA visszaigényelhető*
- 10% foglaló – 90% fizetés 15–45 napon belül
- ügyvédi díj a vételárban

ÉPÜLET ÉS SZOLGÁLTATÁSOK
- A modern, prémium kategóriás épület 513 lakásos, környezetbarát megoldásokkal felszerelt lakópark.

A lakók kényelmét szolgálja:
- zöld homlokzatok, tetőkertek, díszmedence
- kávézó, fitneszterem, szauna
- közösségi konyha, grill- és tetőterasz
- smart app és okosotthon megoldások
- elektromos alumínium redőnyök (a vételár része)
-24 órás portaszolgálat, csomagpont
- zárt, biztonságos lakókörnyezet
- Energiatakarékos rendszerek, napelemek és korszerű gépészet gondoskodnak az alacsony rezsiről.

5 OK, AMIÉRT JÓ VÁLASZTÁS

✔ belváros közeli elhelyezkedés, kiváló közlekedés
✔ zöld, nyugodt környezet – valódi városi oázis
✔ prémium szolgáltatások egy helyen
✔ alacsony fenntartási költségek
✔ azonnal költözhető, bútorozott állapot

FEJLESZTŐI HÁTTÉR – BIZTONSÁGOS VÁLASZTÁS
- fix ár, nincs utólagos emelés
- saját kivitelezés
- prémium minőségű anyaghasználat
- teljes körű jótállás
- kedvező, rövid fizetési ütemezés

KÖZLEKEDÉS
- 1-es villamos a közelben
- 2-es villamos a Duna-parton
- 24-es villamos – Keleti pályaudvarig
- éjszakai járatok (901, 908)
- GreenGo, MOL Bubi, mikromobilitási pont
- fedett kerékpártároló, elektromos autótöltők

El tudod magad itt képzelni? Akkor ez a különleges lakópark épp Rád vár! Várom hívásod!

* Rozsdaövezeti kedvezmény: magyar magánszemélyek a tulajdonjog bejegyzését követően a vételár 5% ÁFÁ-ját visszaigényelhetik.
További adatok
Telekterület: -
Kert mérete: -
Erkély mérete: 37 m2
Felszereltség: -
Parkolás: -
Kilátás: kertre néző
Egyéb extrák:  
Hirdető adatai
Hirdető neve: Otthon Centrum
Kapcsolattartó: Polereczki Szilvia
Hirdető telefonszáma: +36 70 412 4031
Honlap: -
 
Üzenetet küldhet a hirdetőnek, árajánlatot tehet az ingatlanra:
Az Ön neve:
Az Ön e-mail címe:
Üzenet: