Ingatlan Televízió
Ingatlan Televízió
további hirdetések
adatlap bezárása

Vác 
 

Hivatkozási szám: 5909869
Ingatlan adatai
Irányár: 75 900 000 Ft
Típus: ház
Kategória: eladó
Alapterület: 73 m2
Fűtés: -
Állapota: új
Szobák száma: 3
Építés éve: 2026
Szintek száma: -
Részletes leírás
VÁCON a KASTÉLYLIGET LAKÓPARKBAN kínálunk eladásra ÚJ ÉPÍTÉSŰ sorházakat 2027-es átadással!

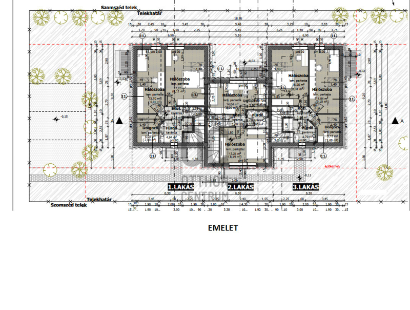
A háromlakásos sorház két szélső lakása 96-96 nm, a középső lakás pedig 73 nm alapterületű.
Valamennyi lakás belső kétszintes tetőtér beépítéses, mindkét szinten 1-1 fürdőszobával rendelkezik.
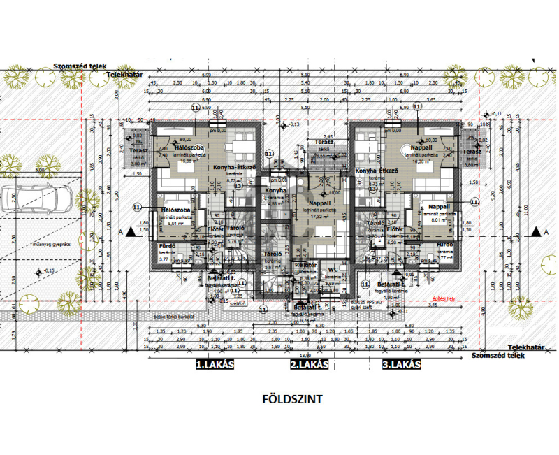
Minden lakáshoz külön bejárat, saját használatú változó nagyságú körbekerített kert és kocsibeálló tartozik.

A vásárláshoz valamennyi OTTHONTEREMTÉSI TÁMOGATÁS és az ILLETÉKKEDVEZMÉNY is igénybe vehető.
CÉGES ÉPÍTKEZÉS !

KORSZERŰ ALACSONY ENERGIAIGÉNYŰ OTTHONOK.

A 73 nm-es belső kétszintes lakások földszintjén tároló, WC, konyha-étkező, valamint egy kertkapcsolatos nappali kapott helyet.
A tetőtérben két hálószoba , közlekedő és egy zuhanyzó+WC található.
A hirdetés az alaprajzon látható 2. számú középső lakásra vonatkozik, melynek ára 75,9 M Ft.

A második ütemben épülő 3 és 4 lakásos sorházak belső kétszintesek, 71 nm, 73 nm, 84 nm, és 96 nm-es kivitelben elérhetőek.

Választható lakások:

- 71 nm-es. Földszintjén konyha, WC, étkező, kertkapcsolatos nappalival. Tetőtérben 2 háló, fürdő+WC,és gardrób.
Vételár :70,9-73,9 M Ft.

- 73 nm-es . Földszinten konyha-étkező, kertkapcsolatos nappali, tároló, fürdő+WC. Tetőtérben 2 háló , közlekedő, zuhanyzó+WC.
Vételár: 75,9 M Ft.

- 84 nm-es. Földszinten konyha-étkező, nappali kertkapcsolattal, kamra, WC, gardrób. Tetőtérben 3 háló, fürdő+WC, gardrób.
Vételár: 85,9-98,9 M Ft.

- 96 nm-es. Földszinten 1 háló, konyha-étkező, kertkapcsolatos nappali, fürdő+WC és tároló. Tetőtérben 2 háló, dolgozószoba, és fürdő.
Vételár:
A belső 3. számú lakás eladási ára 99,9 M Ft.
Az utcafronti 1. számú lakás eladási ára 97,9 M Ft.

A sorház modern stílusban praktikus elosztással lett tervezve, hogy minél élhetőbb és barátságosabb otthont biztosítson a leendő
tulajdonosának és családjának.
Csendes nyugodt környék, átmenőforgalomtól mentes külvárosias környezetben, aszfaltozott úthálózattal, térkövezett járdákkal
és közvilágítással.

Átgondolt tervezés, minőségi anyaghasználat és precíz kivitelezés egy megbízható referenciákkal bíró kivitelezőtől.

Műszaki paraméterek:
-Sávalapozás 60 cm szélességben. Külső falazat 30 cm-es kerámia blokk+15 cm homlokzati szigetelés
-Lakáselválasztó fal 30-as hanggátló téglából.
-Földszinten műanyag nyílászárók 3 rétegű üvegezéssel, kiegészítve beépített hőszigetelt redőnytokkal elektromos előkészítéssel.
-Hőszivattyús fűtés, a földszinten és az emeleten is padlófűtéssel.
-Elektromos és gépészeti előcsövezés a fan-coil rendszerhez.
-Opcionális lehetőség a teljes fan-coil rendszer kivitelezéséhez.
-Riasztó és kaputelefon előkészítés.
-Az elektromos hálózat 1x32A, de 3 fázisra bővíthetőségre előkészítve.
-H tarifás mérőóra.

Közlekedés:
-Buszmegálló 5 perc sétával elérhető, ahonnan a Vác-alsóvárosi vasútállomás 3 perc
-Vác-Alsóváros-Bp Nyugati pályaudvar 29 perc vonattal
-Autóval az M2-es autóúton 20 perc alatt elérhető Budapest

Amivel segíteni tudjuk az Ön ingatlanvásárlását:
-ingyenes, bankfüggetlen hitelügyintézés
-értékbecslés
-jogi háttér
-földhivatali ügyintézés
-energetikai tanúsítvány készítése

Amennyiben a hirdetés felkeltette érdeklődését kérem forduljon hozzám bizalommal.
Projekt bemutatása

VÁCON A KASTÉLYLIGET LAKÓPARKBAN KÍNÁLUNK ELADÁSRA ÚJ ÉPÍTÉSŰ SORHÁZAKAT.

A vásárláshoz a CSOK+ és az ILLETÉKKEDVEZMÉNY is igénybe vehető.
CÉGES ÉPÍTKEZÉS!

A 71 nm-es belső kétszintes lakások földszintjén konyha, WC valamint egy kertkapcsolatos nappali-étkező kapott helyet.
A tetőtérben két háló, fürdő,+WC, és egy gardrób található.
A 600-800 nm-es telken 3 db lakás található eltérő méretű saját használatú kerttel és kocsibeállóval.

Az első ütemben megépült 16 db nagyobb méretű ikerházak már átadásra kerültek.

A második ütemben folyamatosan épülő 3 és 4 lakásos sorházak belső kétszintesek, 71 nm, 73 nm, 84 nm, és 96 nm-es kivitelben elérhetőek.

Minden lakáshoz külön bejárat, saját használatú változó nagyságú körbekerített kert és kocsibeálló tartozik.

Választható lakások:

- 71 nm-es. Földszintjén konyha, WC, étkező, kertkapcsolatos nappalival. Tetőtérben 2 háló, fürdő+WC,és gardrób.
Vételár :75,9-79,9 M Ft.

- 73 nm-es . Földszinten konyha-étkező, kertkapcsolatos nappali, tároló, fürdő+WC. Tetőtérben 2 háló , közlekedő, fürdő+WC.
Vételár: 75,9 M Ft.

- 84 nm-es. Földszinten konyha-étkező, nappali kertkapcsolattal, kamra, fürdő+WC, gardrób. Tetőtérben 3 háló, fürdő+WC, gardrób.
Vételár: 88,9-98,9 M Ft.

- 96 nm-es. Földszinten 1 háló, konyha-étkező, kertkapcsolatos nappali, fürdő+WC és tároló. Tetőtérben 2 háló, dolgozószoba, és fürdő.
Vételár: 97,9-99,9 M Ft.

A lakások modern stílusban praktikus elosztással lett tervezve, hogy minél élhetőbb és barátságosabb otthont biztosítson a leendő
tulajdonosának és családjának. Csendes nyugodt környék, átmenőforgalomtól mentes külvárosias környezetben.
Rendezett környék aszfaltozott úthálózattal, közvilágítással, térkövezett parkolóval, járdákkal.

Átgondolt tervezés, minőségi anyaghasználat és precíz kivitelezés egy megbízható referenciákkal bíró kivitelezőtől.

Műszaki paraméterek:

-Sávalapozás 60 cm szélességben. Külső falazat 30 cm-es kerámia blokk+15 cm homlokzati szigetelés
-Lakáselválasztó fal 30-as hanggátló téglából.
-Földszinten műanyag nyílászárók 3 rétegű üvegezéssel, kiegészítve beépített hőszigetelt redőnytokkal elektromos előkészítéssel.
-Hőszivattyús fűtés, a földszinten és az emeleten is padlófűtéssel.
-Elektromos és gépészeti előcsövezés a fan-coil rendszerhez.
-Opcionális lehetőség a teljes fan-coil rendszer kivitelezéséhez.
-Riasztó és kaputelefon előkészítés.
-Az elektromos hálózat 1x32A, de 3 fázisra bővíthetőségre előkészítve.
-H tarifás mérőóra.


Közlekedés:

-A buszmegálló 5 perc sétával elérhető, ahonnan a Vác-alsóvárosi vasútállomás 3 perc
-Vác-Alsóváros-Bp Nyugati pályaudvar 29 perc vonattal
-Autóval az M2-es autóúton 20 perc alatt elérhető Budapest

Amivel segíteni tudjuk az Ön ingatlanvásárlását:
-ingyenes, bankfüggetlen hitelügyintézés
-jogi háttér
-földhivatali ügyintézés
-energetikai tanúsítvány készítése
-értékbecslés

Amennyiben a hirdetés felkeltette érdeklődését kérem forduljon hozzám bizalommal.
További adatok
Telekterület: 600 m2
Kert mérete: 600 m2
Erkély mérete: -
Felszereltség: -
Parkolás: -
Kilátás: -
Egyéb extrák:  
Hirdető adatai
Hirdető neve: Otthon Centrum
Kapcsolattartó: Prencsok Tamás
Hirdető telefonszáma: +36 70 412 3686
Honlap: -
 
Üzenetet küldhet a hirdetőnek, árajánlatot tehet az ingatlanra:
Az Ön neve:
Az Ön e-mail címe:
Üzenet: