Ingatlan Televízió
Ingatlan Televízió
további hirdetések
adatlap bezárása

Dunaharaszti 
 

Hivatkozási szám: 5909714
Ingatlan adatai
Irányár: 125 000 000 Ft
Típus: ház
Kategória: eladó
Alapterület: 109 m2
Fűtés: gáz (konvektor)
Állapota: -
Szobák száma: 3
Építés éve: 1970
Szintek száma: -
Részletes leírás
Eladó önálló családi ház nagy telekkel Dunaharasztiban!

Dunaharaszti frekventált részén az Óvárosban nettó 108,5 nm alapterületű, tégla építésű, önálló családi házat kínálunk megvételre 1562 nm-es telken.
A telek övezeti besorolása: LKe3.
Mérete: 25 x 62 méter.

Az ingatlan több lehetőséget rejt magában, korszerűsítés után kényelmes, élhető otthon lehet nagy telekkel.
Elhelyezkedése miatt vállalkozások számára is kiváló lehetőség
(régen kertészet működött itt).

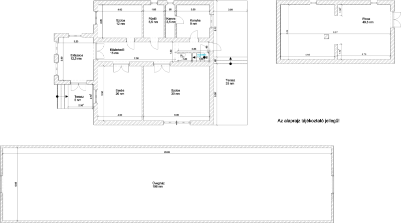
A ház beosztása:
- előszoba 12,5 nm,
- közlekedő 15 nm,
- szoba 12 nm,
- szoba 20 nm,
- szoba 30 nm,
- fürdőszoba 5,5 nm,
- WC 1,0 nm,
- kamra 2,5 nm,
- konyha 9,0 nm,
- padlásfeljáró 1,0 nm,
---------------------------------
összesen: 108,5 nm
+ terasz 33 nm,
+ terasz 5,0 nm,
+ pince 49,5 nm.

A udvarban található még, egy 198 nm-es üvegház, valamint egy tároló.

A telken fúrt kút van.
Minden közmű a házba bekötve.

Az ingatlan elhelyezkedése kiváló, HÉV- megálló a közelben.
Iskola, óvoda, bölcsöde gyalogosan néhány perc alatt elérhető.

Amivel segítjük az Ön ingatlanvásárlását:
- ingyenes hitelügyintézés,
- jogi háttér,
- földhivatali ügyintézés,
- energetikai tanúsítvány,
- a vevő számára az ingatlanközvetítés ingyenes.

Irodánk 30 éves szakmai tapasztalattal áll ügyfelei rendelkezésére!

Várom szíves megkeresését!
További adatok
Telekterület: 1 562 m2
Kert mérete: 1 562 m2
Erkély mérete: 38 m2
Felszereltség: -
Parkolás: -
Kilátás: kertre néző
Egyéb extrák:  
Hirdető adatai
Hirdető neve: GDN Ingatlanhálózat
Kapcsolattartó: Göbölyös Judit
Hirdető telefonszáma: +36-70-269-5029
Honlap: -
 
Üzenetet küldhet a hirdetőnek, árajánlatot tehet az ingatlanra:
Az Ön neve:
Az Ön e-mail címe:
Üzenet: