Ingatlan Televízió
Ingatlan Televízió
további hirdetések
adatlap bezárása

Budapest, XIII.kerület 
 

Hivatkozási szám: 5909705
Ingatlan adatai
Irányár: 69 700 000 Ft
Típus: lakás (újépítésű)
Kategória: eladó
Alapterület: 41 m2
Fűtés: -
Állapota: új
Szobák száma: 2
Építés éve: 2027
Szintek száma: 2
Részletes leírás
ÚJ ÉPÍTÉSŰ INGATLANOK 2027 KÖLTÖZÉSSEL!

Angyalföld:

Angyalföld Budapest XIII. kerületének legnagyobb városrésze, amely az egykori ipari zónából mára modern lakó- és irodanegyeddé alakult át. Hagyományos ipari zónák helyén ma már irodaházak, kereskedelmi egységek és a Duna-parton luxuslakások találhatók.

Az épület tettérbeépítése során törekedtünk olyan lakások kialakítására, ami a mai lakásigényeknek felel
meg, mint amerikai konyhás nappali és külön hálószoba. Változatos lakásokat alakítottunk ki úgy
méretükben, mint elrendezésükben.

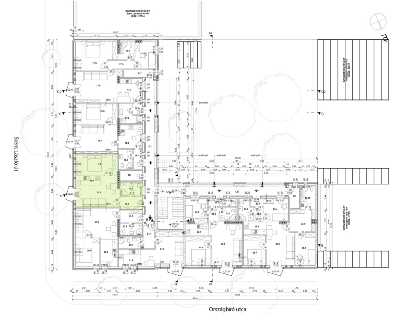
19. lakás.
Előtér: 5.14 nm.
Fürdőszoba: 4.77 nm.
Nappali étkező: 17.52 nm.
Konyha:4.48
Hálószoba: 12.91 nm.
Erkély: 1.52 nm.

Fizetés: készültségi fokozathoz kötött fizetési ütemezés.

A további kérdésekkel és a megtekintéssel kapcsolatban, kérem keressen a megadott mobil számon.
További adatok
Telekterület: -
Kert mérete: -
Erkély mérete: 2 m2
Felszereltség: -
Parkolás: -
Kilátás: utcai
Egyéb extrák:  
Hirdető adatai
Hirdető neve: GDN Ingatlanhálózat
Kapcsolattartó: Tőkés Levente
Hirdető telefonszáma: +36-30-362-4723
Honlap: -
 
Üzenetet küldhet a hirdetőnek, árajánlatot tehet az ingatlanra:
Az Ön neve:
Az Ön e-mail címe:
Üzenet: