Ingatlan Televízió
Ingatlan Televízió
további hirdetések
adatlap bezárása

Gödöllő 
Gödöllő 

Hivatkozási szám: 5909591
Ingatlan adatai
Irányár: 134 900 000 Ft
Típus: ház
Kategória: eladó
Alapterület: 150 m2
Fűtés: egyéb
Állapota: új
Szobák száma: 4
Építés éve: 2026
Szintek száma: -
Részletes leírás
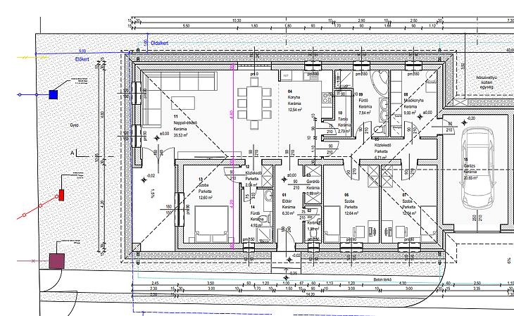
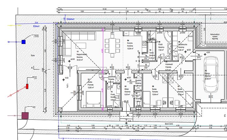
GÖDÖLLŐN, ALVÉG VÁROSRÉSZEN ELADÓ EGY ÚJ ÉPÍTÉSŰ, FÖLDSZINTES, NETTÓ 150 NM-ES IKERHÁZFÉL, 407 NM-ES TELEKKEL ÉS 1 ÁLLÁSOS GARÁZZSAL.



Az ingatlan 2026 júniusában kerül kulcsrakész állapotba.

Az épület társas házzá lesz nyilvánítva.



Főbb jellemzők:

Alapterület: nettó 150 m²

Telekméret: 407 m²

Építési éve: 2026 (új építésű)

Falazat: 30 cm Porotherm tégla

Válaszfalak: 10 cm Porotherm

Szigetelés: 15 cm grafitos dryvit a homlokzaton, aljzatban 10 cm szigetelés

Tető: Bramac cserép, tetőtérben 25 cm üveggyapot hőszigetelés

Fűtés: Energia hatékony hőszivattyús rendszer

Stabil, 100 cm mély beton alap

Parkolás: Saját 1 állásos garázs



Az ár tartalmazza:

Beltéri ajtók: 60.000 Ft/db,

Beltéri hidegburkolatok: 6.500 Ft/ m²,

Beltéri melegburkolatok: 6.000 Ft/ m²,

Kültéri burkolatok: terasz 6,500 Ft/ m²,

Szaniterek:

Kád: 60.000 Ft/db,

Kádtöltő: 25.000 Ft/db,

Zuhany csaptelep: 25.000 Ft/db,

Mosdó csaptelep: 15.000 Ft/db,

Standardmosdó: 20.000 Ft/db,

Wc + tartály: 35.000 Ft.

Elrendezés:

Amerikai konyhás nappali, 3 szoba, zuhanyzós fürdőszoba + mellékhelyiség, kádas fürdőszoba + mellékhelyiség, külön mellékhelyiség, mosókonyha, garázs, kamra, terasz.



Környék:

A környék jól ellátott helyi és agglomerációs tömegközlekedéssel, ami kényelmes eljutást biztosít mind Gödöllő belvárosába, mind Budapest irányába.

A H8 HÉV/ Gödöllő felől közvetlen kapcsolatot biztosít Budapest Örs vezér tere metróállomással, ahol a 2-es metróhoz lehet átszállni.

Gödöllő városán belül több helyi buszjárat közlekedik, amelyek összekötik a városrészeket, így Alvéget is a vasútállomással és a város központjával.

A buszmegállók gyalogosan néhány perc alatt elérhetők a környéken.

Közelben számos bevásárlási lehetőség, gyógyszertár, bölcsőde, óvoda, iskola, játszótér található.



Finanszírozás:

Az ingatlan banki finanszírozással is megvásárolható, melyben irodánk ingyenes tanácsadással áll rendelkezésükre!



Irányár: 134,9 M Ft.

VEVŐINK RÉSZÉRE A KÖZVETÍTÉS DÍJTALAN



A hirdetésben szereplő adatok tájékoztató jellegűek.
További adatok
Telekterület: 407 m2
Kert mérete: 407 m2
Erkély mérete: -
Felszereltség: -
Parkolás: -
Kilátás: kertre néző
Egyéb extrák:  
Hirdető adatai
Hirdető neve: MPD Hungary Kft.
Kapcsolattartó: Vestarion Kft.
Hirdető telefonszáma: +36203112124
Honlap: -
 
Üzenetet küldhet a hirdetőnek, árajánlatot tehet az ingatlanra:
Az Ön neve:
Az Ön e-mail címe:
Üzenet: