Ingatlan Televízió
Ingatlan Televízió
további hirdetések
adatlap bezárása

Gödöllő 
Gödöllő 

Hivatkozási szám: 5909586
Ingatlan adatai
Irányár: 152 900 000 Ft
Típus: ház
Kategória: eladó
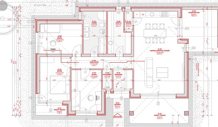
Alapterület: 145 m2
Fűtés: egyéb
Állapota: új
Szobák száma: 4
Építés éve: 2026
Szintek száma: -
Részletes leírás
Új építésű kulcsrakész lakás Gödöllőn – magas műszaki tartalommal!



Gödöllőn kínálunk eladásra egy új építésű 145 négyzetméteres, földszintes lakás, 559 négyzetméter telekkel, amely modern kialakításával, minőségi anyaghasználatával és energiatakarékos megoldásaival tökéletes választás.



Főbb jellemzők:

Falazat:

30 cm vastag csiszolt Porotherm tégla biztosítja a kiváló hő- és hangszigetelést.



Külső nyílászárók:

Öt légkamrás műanyag ablakok háromrétegű hőszigetelt üvegezéssel.



Hőszigetelés és homlokzat:

12 cm vastag grafitos dryvit rendszer, nemes vakolattal ellátva.

Külső teraszok Hideg burkolat 6500 Ft/nm.



Belső falazat:

10 cm-es tégla válaszfalak



Burkolatok:

A belső burkolatok teljes mértékben a vevő választása szerint kerülnek kivitelezésre.

Beltéri ajtók:

60.000 Ft//db értékű.

Fürdőszobai felszereltség (terv szerint):

Mosdó: 15.000 Ft/db

Csaptelepek: 12.500 Ft/db

Kád: 50.000 Ft lábbal

WC: 16.500 Ft/db öblítő rendszerrel (ülőke nélkül)

Kádtöltő, zuhanyfej, egyéb szerelvények az alapárban!



Fűtés és melegvíz:

Korszerű Atlantic Loria 8kW hőszivattyú, beépített meleg víz-tárolóval, valamint padlófűtés az egész lakásban.

Riasztó és klímaberendezés elektromos előkészítése.



Kialakítás:

Amerikai konyhás nappali + étkező, 3 szoba, háztartási helyiség, fürdő+wc, előszoba, 2 db fedett terasz, nyári konyha.



Környék:

Gödöllő csendes mellékutcájában található. Közelben számos bevásárlási lehetőség, gyógyszertár, játszótér, edzőterem.

Az M3-as autópálya pár perc alatt közelíthető meg. Közelben 14, 24, 45, 4, 4A, 2, 2A, 402 buszjáratok érhetők el.



FINANSZÍROZÁS:

Az ingatlan banki finanszírozással is megvásárolható, melyben irodánk ingyenes tanácsadással áll rendelkezésükre!



IRÁNYÁR: 152,9 M Ft.

VEVŐINK RÉSZÉRE A KÖZVETÍTÉS DÍJTALAN



A hirdetésben szereplő adatok tájékoztató jellegűek.
További adatok
Telekterület: 559 m2
Kert mérete: 559 m2
Erkély mérete: -
Felszereltség: -
Parkolás: -
Kilátás: kertre néző
Egyéb extrák:  
Hirdető adatai
Hirdető neve: MPD Hungary Kft.
Kapcsolattartó: Vestarion Kft.
Hirdető telefonszáma: +36203112124
Honlap: -
 
Üzenetet küldhet a hirdetőnek, árajánlatot tehet az ingatlanra:
Az Ön neve:
Az Ön e-mail címe:
Üzenet: