Ingatlan Televízió
Ingatlan Televízió
további hirdetések
adatlap bezárása

Marcaltő 
 

Hivatkozási szám: 5908506
Ingatlan adatai
Irányár: 20 900 000 Ft
Típus: ház
Kategória: eladó
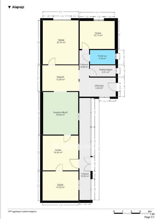
Alapterület: 133 m2
Fűtés: egyéb
Állapota: felújított
Szobák száma: 4
Építés éve: 1940
Szintek száma: 1
Részletes leírás
Pápától mindössze 10 percre, Marcaltő csendes településén ELADÓ egy TÁGAS, 130 m2-es, 4 SZOBA elrendezésű családi ház. Az ingatlan MASSZÍV szerkezetű, KŐ ÉS TÉGLA építésű, így hosszú távra is BIZTOS alapot nyújt azoknak, akik stabil, jól átgondolható otthont keresnek.

Az épület STATIKAILAG KIFOGÁSTALAN, a TETŐSZERKEZET RENDBEN van. Kívülről SZIGETELT homlokzattal rendelkezik (vakolás nélkül), ami jó alapot ad a későbbi befejezéshez. A bejárati ajtó MŰANYAG nyílászáró, az ablakok RÉGI FA kivitelűek.

A PRAKTIKUS ELOSZTÁS a mindennapokat támogatja: 4 szoba, konyha-étkező, közlekedő, folyosó, fürdő WC-vel, valamint PADLÁSFELJÁRÓ biztosítja a használható tereket és a tárolási lehetőséget. A fűtés FA TÜZELÉSŰ KÁLYHÁVAL megoldott, a telekhatáron a GÁZ SZOLGÁLTATÁS ELÉRHETŐ, így igény szerint GÁZ BEKÖTHETŐ. Meleg vizet VILLANY BOJLER ad. A településen CSATORNA NINCS, az ingatlan DERÍTŐRE csatlakozik.

A telek NAGY, 1888 m2-es, ami SZÁMOS HASZNOSÍTÁSI LEHETŐSÉGET kínál. Az ingatlan jelen formájában is JÓ ALAP, ugyanakkor FEJLESZTHETŐ: a homlokzati befejezés és a nyílászárók korszerűsítése a leendő tulajdonos igénye szerint valósítható meg.

Amennyiben egy JÓ ÁLLAPOTÚ SZERKEZETI alapokkal rendelkező, TÁGAS családi házat keres Pápához közel, ez az ingatlan MEGFONTOLANDÓ lehetőség. További információért és megtekintésért keressen bizalommal.
Amennyiben felkeltette ez a remek ingatlan a figyelmét, vagy kérdése lenne keressen bizalommal!
Érdeklődni: Molnár Márk Telefon: 06 30 265 5725

Referencia szám: M321696-ITV
További adatok
Telekterület: 1 888 m2
Kert mérete: -
Erkély mérete: -
Felszereltség: -
Parkolás: lakáshoz van kültéri parkoló
Kilátás: -
Egyéb extrák:  
Hirdető adatai
Hirdető neve: otpip.hu - Pápa Eötvös utca 16 - OTP Ingatlanpont Iroda
Kapcsolattartó: Molnár Márk István
Hirdető telefonszáma: +36302655725
Honlap: -
 
Üzenetet küldhet a hirdetőnek, árajánlatot tehet az ingatlanra:
Az Ön neve:
Az Ön e-mail címe:
Üzenet: