Ingatlan Televízió
Ingatlan Televízió
további hirdetések
adatlap bezárása

Sződ 
Sződ 

Hivatkozási szám: 5908046
Ingatlan adatai
Irányár: 116 900 000 Ft
Típus: ház
Kategória: eladó
Alapterület: 103 m2
Fűtés: egyéb
Állapota: új
Szobák száma: 4+1
Építés éve: 2025
Szintek száma: -
Részletes leírás
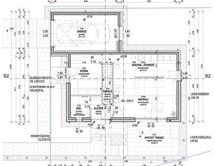
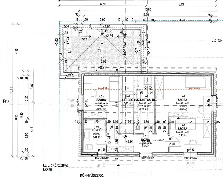
Sződ nyugodt, csendes részén épülő új családi házas övezetben modern, 2 szintes, amerikai konyhás, 4 szobás otthonok várják új tulajdonosaikat.

A vásárláshoz CSOK Plusz, Falusi CSOK, otthonfelújítási támogatás, valamint kedvezményes, 3%-os hitel is igényelhető.

Az ingatlan 2026-ben épült vasbeton szerkezettel.

Elosztása:

Földszint: Amerikai Konyhás nappali, hálószoba, fürdőszoba.

Emelet: 2 db hálószoba, félszoba, fürdőszoba és háztartási helyiség

Az energiahatékony kialakítást 20 cm-es hőszigetelés, háromrétegű nyílászárók és redőnyök biztosítják.

A fűtésről 6 kW-os hőszivattyús rendszer gondoskodik, padlófűtéssel a ház teljes területén.

A 800 m²-es telek tágas lehetőséget kínál kert és kültéri pihenőhely kialakítására.

A családi házas övezet fejlesztési terve játszótér kialakítását is tartalmazza, valamint biztosított az ingatlanok aszfaltozott úton történő megközelítése minden tulajdonos számára.

Sződ fejlesztés alatt lévő területén, újonnan kialakított építési telkeken több mérettel és elosztással rendelkező ház épül, minőségi elismert kivitelező álltal. Van lehetőség szinte kész állapotban lévő ház megvásárlására (gyorsabban költözhető), félkész állapotban (szaniterek, fal színek, belső nyílászárók stb. Választására), vagy akár a jövőben épült házak lefoglalásához (a tervezéstől kezdve minden módosítható).

További kérdéseivel, illetve megtekintési szándékával kérem keresse irodánkat.

A hirdetésben szereplő adatok tájékoztató jellegűek.

Az ingatlan hitelre is megvásárolható. Bankfüggetlen tanácsadóink, az ország összes pénzintézete közül gyorsan és gördülékenyen találja meg az Önnek legmegfelelőbb konstrukciót, egyedi kedvezményekkel. A hitel közvetítés díjmentes
További adatok
Telekterület: 800 m2
Kert mérete: 800 m2
Erkély mérete: -
Felszereltség: -
Parkolás: -
Kilátás: utcai
Egyéb extrák:  
Hirdető adatai
Hirdető neve: MPD Hungary Kft.
Kapcsolattartó: Vede Casa Kft.
Hirdető telefonszáma: +36301096915
Honlap: -
 
Üzenetet küldhet a hirdetőnek, árajánlatot tehet az ingatlanra:
Az Ön neve:
Az Ön e-mail címe:
Üzenet: