Ingatlan Televízió
Ingatlan Televízió
további hirdetések
adatlap bezárása

Göd 
Göd 

Hivatkozási szám: 5908036
Ingatlan adatai
Irányár: 139 900 000 Ft
Típus: ház
Kategória: eladó
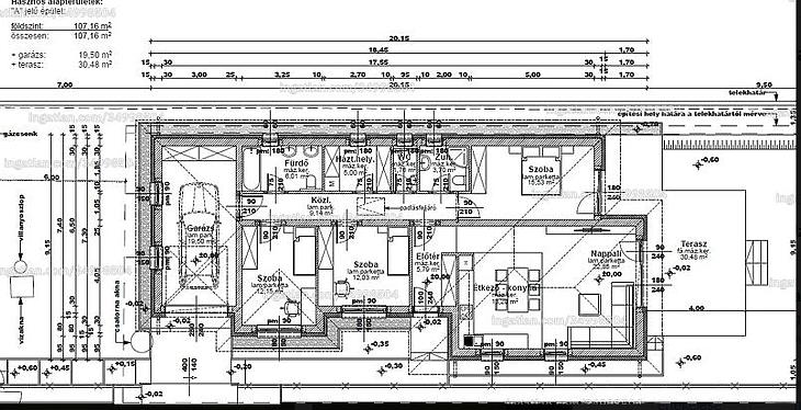
Alapterület: 122 m2
Fűtés: egyéb
Állapota: új
Szobák száma: 4
Építés éve: 2026
Szintek száma: -
Részletes leírás
Göd központi részén eladó egy 122 nm-es, újépítésű családi ház, 450 nm-es saját kerttel.

Az ingatlan 30-as téglából épül, 15 cm-es EPS szigeteléssel és háromrétegű műanyag nyílászárókkal, amelyek stabil és jól szigetelt otthont biztosítanak. A fűtést hőszivattyú látja el, a teljes ház padlófűtéses.

Az elrendezés átgondolt: amerikai konyhás nappali, négy szoba, háztartási helyiség, egy zuhanyzós és egy kádas fürdőszoba szolgálja a kényelmet.

A cserépfedés tartós megoldást ad, a tervezett garázs helyett pedig igény esetén egy plusz szoba is kialakítható.

Az ingatlan jó elhelyezkedése és modern műszaki tartalma hosszú távon is kényelmes, jól használható otthont biztosít.

várható átadás: 2026. október

Jelen esetben foglalózás után, hideg meleg burkolatok, beltéri nyílászárók, szaniterek választhatóak melyek a meghirdetett ár részét képezik a belső műszaki tartalom szerint



Megtekintés érdekében vagy felmerülő kérdés esetén keresse irodánkat.

A hirdetésben szereplő adatok tájékoztató jellegűek.

Az ingatlan hitelre is megvásárolható. Bankfüggetlen tanácsadóink, az ország összes pénzintézete közül gyorsan és gördülékenyen találja meg az Önnek legmegfelelőbb konstrukciót, egyedi kedvezményekkel. A hitel és az ingatlan közvetítés vevőink részére díjmentes.
További adatok
Telekterület: 450 m2
Kert mérete: 450 m2
Erkély mérete: -
Felszereltség: -
Parkolás: -
Kilátás: kertre néző
Egyéb extrák:  
Hirdető adatai
Hirdető neve: MPD Hungary Kft.
Kapcsolattartó: Vede Casa Kft.
Hirdető telefonszáma: +36301096915
Honlap: -
 
Üzenetet küldhet a hirdetőnek, árajánlatot tehet az ingatlanra:
Az Ön neve:
Az Ön e-mail címe:
Üzenet: