Ingatlan Televízió
Ingatlan Televízió
további hirdetések
adatlap bezárása

Baja 
 

Hivatkozási szám: 5907828
Ingatlan adatai
Irányár: 30 999 000 Ft
Típus: kereskedelmi/ipari ingatlan
Kategória: eladó
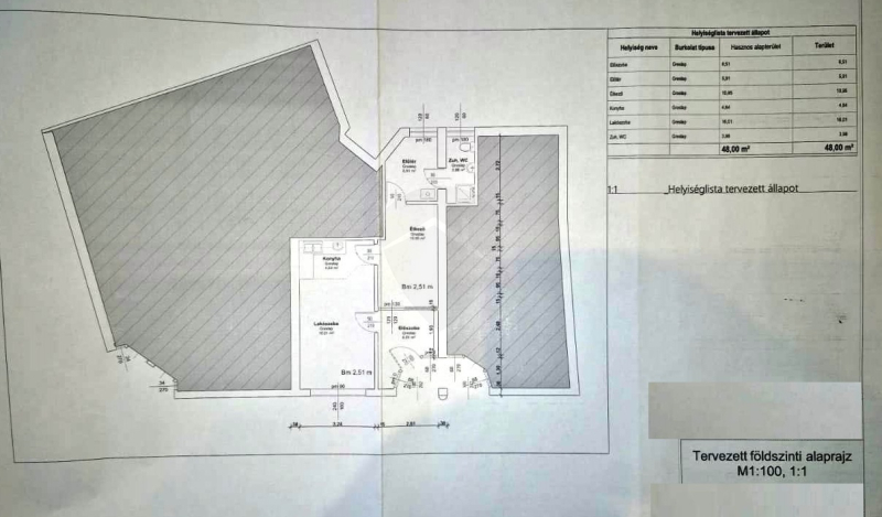
Alapterület: 48 m2
Fűtés: -
Állapota: -
Szobák száma: -
Építés éve: 2004
Szintek száma: -
Részletes leírás
Baja szívében, a frekventált utcában kínálunk megvételre egy 48 m²-es, utcai bejáratos, téglaépítésű ingatlant, amely jelenleg üzlethelyiségként (rendelő) funkcionál, de a rendelkezésre álló tervrajz alapján 2 szobás lakássá alakítható.
Az ingatlan 2004-ben épült, modern műszaki tartalommal és esztétikus kialakítással rendelkezik, állapota jó, azonnal használatba vehető.

Korábbi funkció:
Az ingatlan korábban rendelőként működött, így kialakítása praktikus és jól átgondolt. Ennek köszönhetően különösen alkalmas lehet:
egészségügyi tevékenységre,
irodának,
szépségipari szolgáltatásra,
tanácsadó vagy ügyvédi irodának,
vagy akár magánrendelő újbóli kialakítására.
A jelenlegi elrendezés funkcionális, jól szeparált tereket biztosít.

Lakássá alakítás lehetősége:
A mellékelt tervrajz alapján az ingatlan 2 szobás lakássá alakítható, amely ideális lehet:
egyedülállóknak,
fiatal pároknak,
befektetőknek kiadás céljára.
A külön helyiségben kialakított WC és fürdőszoba, valamint a beépített konyha már most adott alapot biztosít a lakófunkcióhoz.

Műszaki jellemzők:
48 m² alapterület,
Tégla építés,
1 szintes épület,
Gázcirkó fűtés,
Gázkazán által biztosított melegvíz,
Új, fa nyílászárók,
Gres lap burkolatok,
Jó állapot,
Utcai bejárat.
Az ingatlan alacsony fenntartási költséggel üzemeltethető.

Elhelyezkedés:
Belvárosi elhelyezkedésének köszönhetően kiváló infrastruktúrával rendelkezik: üzletek, szolgáltatások, hivatalok, tömegközlekedés néhány perc sétára elérhetők. Az utcai bejárat üzleti célra kiemelten előnyös.

Befektetési lehetőség:
Az ingatlan többféle hasznosítási lehetőséget kínál:
-azonnali üzleti tevékenység,
-rendelő vagy iroda,
-lakássá alakítás és bérbeadás,
-saját célú lakhatás.

Rugalmasan alakítható, modern építésű, kiváló elhelyezkedésű ingatlan Baja belvárosában – ritka lehetőség!
Irányár: 30.990.000 Ft
További adatok
Telekterület: -
Kert mérete: -
Erkély mérete: -
Felszereltség: -
Parkolás: -
Kilátás: -
Egyéb extrák:  
Hirdető adatai
Hirdető neve: Bánóczky Ingatlan
Kapcsolattartó: Bánóczky Endre
Hirdető telefonszáma: +36 70 412 5785
Honlap: -
 
Üzenetet küldhet a hirdetőnek, árajánlatot tehet az ingatlanra:
Az Ön neve:
Az Ön e-mail címe:
Üzenet: