Ingatlan Televízió
Ingatlan Televízió
további hirdetések
adatlap bezárása

Miskolc 
 

Hivatkozási szám: 5907549
Ingatlan adatai
Irányár: 520 000 Ft
Típus: lakás (tégla)
Kategória: kiadó
Alapterület: 273 m2
Fűtés: gáz (cirko)
Állapota: felújított
Szobák száma: 5
Építés éve: 1985
Szintek száma: -
Részletes leírás
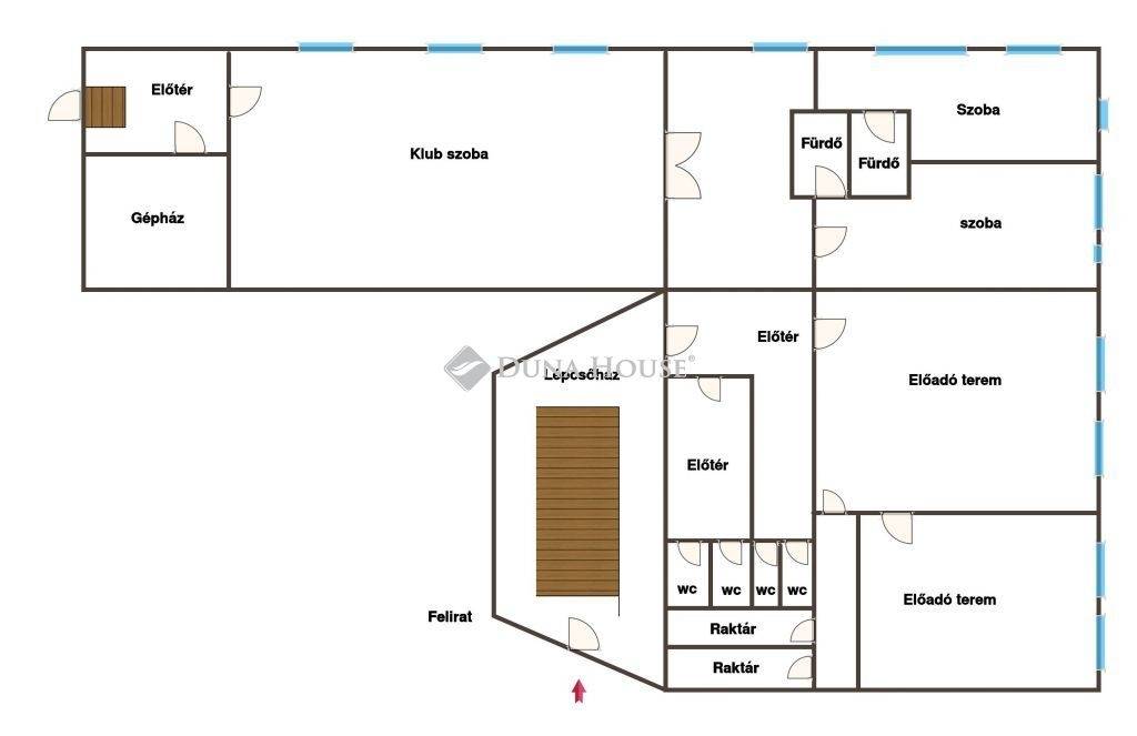
Bérelhető Miskolc szívében egy 273 négyzetméteres, sokoldalúan hasznosítható üzlethelyiség a város legforgalmasabb részén!Kiválóan alkalmas orvosi rendelőnek, gyógyászati központnak, irodának, sport- vagy mozgásstúdiónak, de más professzionális szolgáltatás is könnyedén kialakítható benne.Főbb jellemzők:- Tégla építésű társasház teljes 2. szintje, önálló, zárt lépcsőházzal, külön bejárattal- 7 különböző méretű helyiség + több vizesblokk és fürdőszoba- A legnagyobb helyiség 60 nm, jelenleg gyógyászati eszközökkel felszerelve- Központi fűtés, az emelet teljes rezsiköltsége: kb. 150200 ezer Ft/hó- Belvárosi lokáció: fizetős parkolók az utcán, 5 ingyenes beálló a zárt udvarban- Igény szerint a helyiségek külön-külön is bérelhetőkBérleti díj:2600 Ft/nm + rezsiköltségElérhető: 2025. júliustólKivételes lehetőség vállalkozásának bővítésére vagy új üzlet indítására Miskolc központjában!Érdeklődjön bizalommal a helyiség bármikor megtekinthető!

520000 Ft/hó

Referencia szám: UZ047337
További adatok
Telekterület: -
Kert mérete: -
Erkély mérete: -
Felszereltség: -
Parkolás: -
Kilátás: -
Egyéb extrák:  
Hirdető adatai
Hirdető neve: dh.hu - Miskolc, Kálvin János utca
Kapcsolattartó: Sebőkné Demeter Anita
Hirdető telefonszáma: +36702407227
Honlap: -
 
Üzenetet küldhet a hirdetőnek, árajánlatot tehet az ingatlanra:
Az Ön neve:
Az Ön e-mail címe:
Üzenet: