Ingatlan Televízió
Ingatlan Televízió
további hirdetések
adatlap bezárása

Rádfalva 
 

Hivatkozási szám: 5906057
Ingatlan adatai
Irányár: 13 800 000 Ft
Típus: ház
Kategória: eladó
Alapterület: 68 m2
Fűtés: gáz (konvektor)
Állapota: felújítást igényel
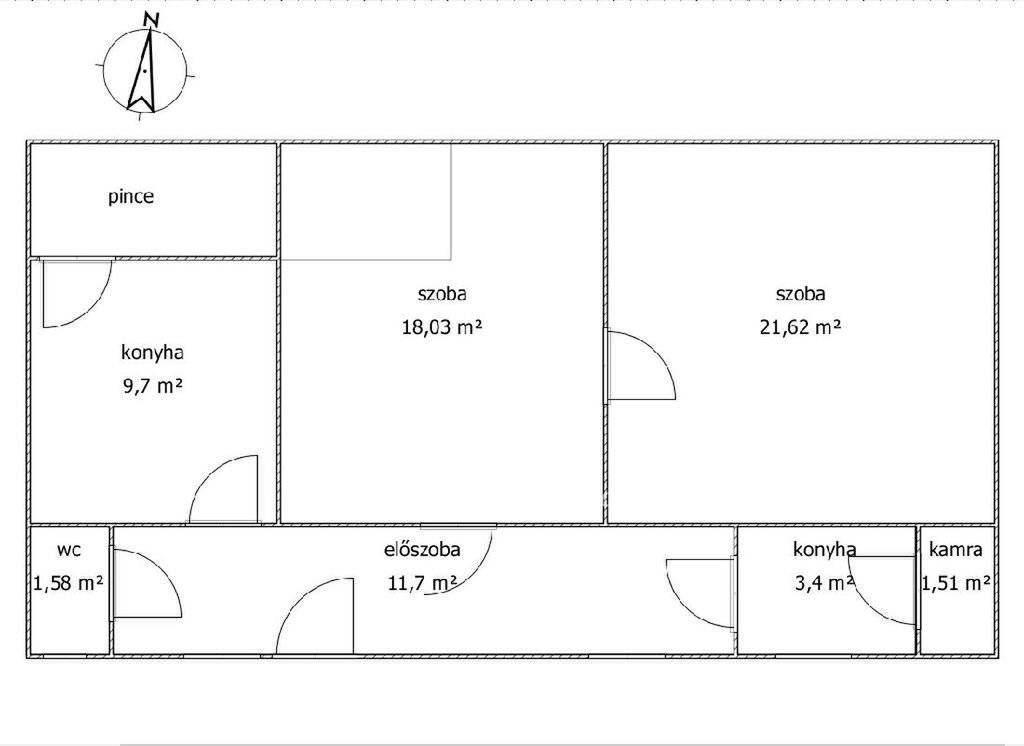
Szobák száma: 2
Építés éve: 1970
Szintek száma: 1
Részletes leírás
2 szobás ház eladó Rádfalván!
1530 négyzetméteres vízszintes terület tartozik hozzá.
Fel kell újítani! Az ablakokat és a bejárati ajtót műanyagra cserélték. Az egyik szobában van gázkonvektoros fűtés. A másikban nincs, a konyhában kályha volt valamikor, a kémény használható. A villanybojlert leszerelték. A gázórát a szolgáltató elvitte, az új tulajdonosnak vissza fogja szereltetni. Vízszolgáltatás van, a szennyvizet derítőben lehet gyűjteni. A ház alatt egy pince van, ami benyúlik az egyik szoba alá.
Referenciaszám: M320896

13800000 Ft

Referencia szám: M320896
További adatok
Telekterület: 1 530 m2
Kert mérete: -
Erkély mérete: -
Felszereltség: -
Parkolás: lakáshoz van kültéri parkoló
Kilátás: -
Egyéb extrák:  
Hirdető adatai
Hirdető neve: otpip.hu - Pécs Király utca 75 - OTP Ingatlanpont Iroda
Kapcsolattartó: Vincze László György
Hirdető telefonszáma: +36209384141
Honlap: -
 
Üzenetet küldhet a hirdetőnek, árajánlatot tehet az ingatlanra:
Az Ön neve:
Az Ön e-mail címe:
Üzenet: