Ingatlan Televízió
Ingatlan Televízió
további hirdetések
adatlap bezárása

Budapest, XIII.kerület 
 

Hivatkozási szám: 5905227
Ingatlan adatai
Irányár: 980 000 000 Ft
Típus: telek
Kategória: eladó
Alapterület: -
Fűtés: -
Állapota: -
Szobák száma: -
Építés éve: -
Szintek száma: -
Részletes leírás
PRÉMIUM FEJLESZTÉSI LEHETŐSÉG ÉPÍTÉSI TELEK ELADÓ BUDAPEST XIII. KERÜLETÉBEN

Budapest XIII. kerületének dinamikusan fejlődő, kiemelten keresett részén kínálunk megvételre egy beépítetlen, teljes közművel rendelkező építési telket, amely kiváló alapot biztosít egy magas hozamú lakóingatlan-fejlesztéshez.

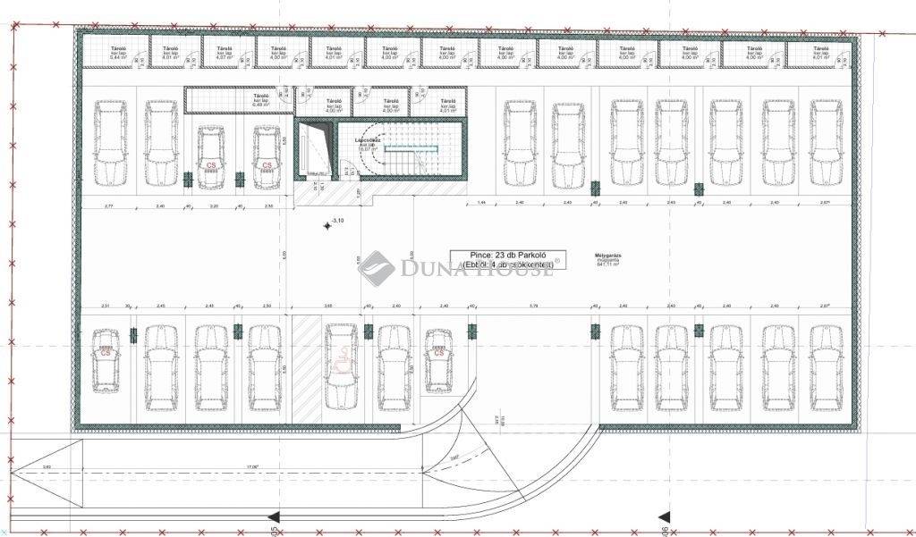
Az előkészített fejlesztési koncepció alapján a telken egy 47 lakásos társasház valósítható meg.

Az előzetes kalkulációk szerint mintegy 2.700 m² (3243,41 m²) értékesíthető lakóterület alakítható ki, amelyet tovább növelnek az építhető parkolóhelyek (39 db 1.144 m2), tárolók és üzlethelyiségek, jelentősen javítva a projekt összesített bevételi potenciálját.

A lokáció kiváló infrastruktúrával és kiemelkedő tömegközlekedési kapcsolatokkal rendelkezik, ami stabil keresletet, gyors értékesíthetőséget és hosszú távon is értékálló befektetést biztosít.

A XIII. kerület ezen része folyamatosan fejlődik, az új lakások iránti kereslet tartósan magas.

Fő befektetői előnyök:
- Teljes közművel ellátott építési telek
- Előkészített társasházi fejlesztési koncepció
- 47 lakásos projektlehetőség
- ~2.700 m² eladható lakóterület + kiegészítő bevételi egységek

Keresett, folyamatosan fejlődő lokáció. Kiváló megtérülési és értéknövekedési potenciál. Ideális választás ingatlanfejlesztők és professzionális befektetők számára, akik Budapest egyik legstabilabb és leglikvidebb piacán keresnek komplex, jól strukturált projektet.
További adatok
Telekterület: 1 393 m2
Kert mérete: -
Erkély mérete: -
Felszereltség: -
Parkolás: -
Kilátás: -
Egyéb extrák:  
Hirdető adatai
Hirdető neve: dh.hu - Maglód
Kapcsolattartó: Tolnai Gábor
Hirdető telefonszáma: +36307202626
Honlap: -
 
Üzenetet küldhet a hirdetőnek, árajánlatot tehet az ingatlanra:
Az Ön neve:
Az Ön e-mail címe:
Üzenet: