Ingatlan Televízió
Ingatlan Televízió
további hirdetések
adatlap bezárása

Mezőnagymihály 
 

Hivatkozási szám: 5905146
Ingatlan adatai
Irányár: 17 900 000 Ft
Típus: ház
Kategória: eladó
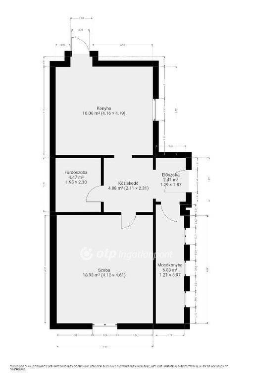
Alapterület: 52 m2
Fűtés: elektromos
Állapota: felújított
Szobák száma: 1
Építés éve: 1950
Szintek száma: 1
Részletes leírás
Mezőnagymihályon kínálok megvételre egy jó állapotú parasztházat, amely az elmúlt időszakban több fontos korszerűsítésen esett át.

Az ingatlan villamos- és vízhálózata megújított, a falak és burkolatok jó állapotban vannak, így kisebb ráfordítással azonnal lakható. A ház műanyag nyílászárókkal rendelkezik, ami hozzájárul az energiahatékony működéshez. A fűtésről elektromos fűtési rendszer gondoskodik. A mindennapi kényelmet külön kialakított mosókonyha növeli.

Az udvaron egy nagy, fedett terasz biztosít kellemes pihenőhelyet, valamint egy melléképület, amely fél éve új lemeztetőt kapott, így tárolásra vagy egyéb célra is kiválóan használható.

A konyhából az udvarra nyíló ajtó további lehetőségeket rejt: az ingatlan bővíthető, akár plusz lakótér vagy teraszkapcsolatos helyiség kialakításával is.

Főbb jellemzők:

- Korszerűsített villamos- és vízhálózat.

- Elektromos fűtés.

- Jó állapotú falak és burkolatok.

- Műanyag nyílászárók.

- Külön mosókonyha.

- Nagy fedett terasz.

- Melléképület új lemeztetővel.

- Bővítési lehetőség a konyha felől.

OTP Banki hátterünknek köszönhetően finanszírozási igényekben (pl. Otthon Start Program, Babaváró, Falusi CSOK, CSOK Plusz, Lakáshitel, Személyi kölcsön stb.), illetve biztosítások tekintetében is díjmentesen, soron kívüli ügyintézéssel segítem ügyfeleim! Referenciaszám: M320746
További adatok
Telekterület: 1 136 m2
Kert mérete: -
Erkély mérete: -
Felszereltség: -
Parkolás: lakáshoz van kültéri parkoló
Kilátás: -
Egyéb extrák:  
Hirdető adatai
Hirdető neve: otpip.hu - Eger Kertész utca 84 - OTP Ingatlanpont Iroda
Kapcsolattartó: Lukácsné Petró Sarolta Márta
Hirdető telefonszáma: +36-70-282-0802
Honlap: -
 
Üzenetet küldhet a hirdetőnek, árajánlatot tehet az ingatlanra:
Az Ön neve:
Az Ön e-mail címe:
Üzenet: