Ingatlan Televízió
Ingatlan Televízió
további hirdetések
adatlap bezárása

Hajdúböszörmény 
 

Hivatkozási szám: 5905070
Ingatlan adatai
Irányár: 469 000 000 Ft
Típus: telek
Kategória: eladó
Alapterület: -
Fűtés: -
Állapota: -
Szobák száma: -
Építés éve: -
Szintek száma: -
Részletes leírás
Több épületből álló, sokoldalúan hasznosítható ingatlankomplexum eladó Hajdúböszörményben!

Központi elhelyezkedésű, 3 különböző utca felől megközelíthető, autópálya felhajtótól mindössze 3 km-re.

A telek összesen 3018 m2 egybefüggő, összenyitott, térkövezett és betonozott udvar, több mint 300 m2 fedett kültéri területtel, öt helyrajzi számon nyilvántartva, akár logisztikai célokra is. Az épületek hasznos alapterülete összesen 1235 m2.
- többfunkciós kihasználhatóság
- azonnal használható épületek
- közművesítés, infrastruktúra biztosított
- központi, de jól megközelíthető helyen

Övezeti besorolás: Lk-31-5353, kisvárosias lakózóna:
Akár lakó, kereskedelmi, szolgáltató, logisztikai, oktatási, egészségügyi, sport, vendéglátó, szálláshely szolgáltató épület, ideértve munkásszálló vagy kézműipari funkciókra is alkalmas, 7,5 m max. építménymagasság, 40%-os beépíthetőség, zártsorú beépítés lehetséges.

Fő épületek:
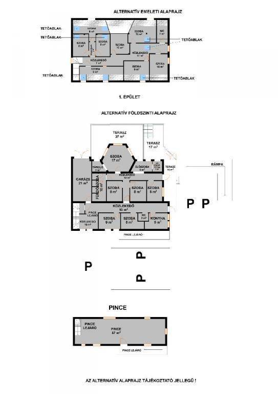
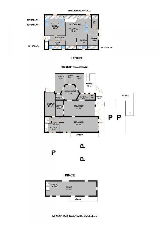
1. Épület - több mint 360 m2 alapterület, 3 szintes főépület:
Stabil és erős beton alapon, tégla falazatú, vasbeton födémes, hatszög alaprajzú toronnyal. Részlegesen felújított gépészet (víz, villany 3×32A) és belső, gázkazános fűtés, jó szerkezeti állapot.
2. Épület - Üzemépület, 515 m2 alapterület:
Több helyiségből áll, beton alap, masszív tégla falazat, részlegesen felújított közművek (villany 3×64A). Gázkazános fűtés, jól alakítható belső tér és jó szerkezeti állapot.
3. Épület - Két szintes, 110 m2 alapterület:
Felújított épület korszerű gépészettel, Ariston kondenzációs kazán, 3 Midea klímák, új víz, csatorna, villamos hálózat (3×16A), új burkolatokkal. Alkalmas irodának, lakásnak, szállás vagy vendéglátó célra, jó szerkezeti állapot.
4. Épület - 32 m2 alapterület:
Különálló épület, beton alapon tégla falazattal, jó szerkezeti állapot.
5. Épület. - Műhely, több mint 100 m2 alapterület:
Beton alapon, tégla falazattal, jó szerkezeti állapotban, fa tetőszerkezet, zsindelyfedéssel, 15 cm-es külső szigeteléssel, gázfűtéssel, zuhanyzóval, külön WC-vel, új víz, csatorna, villamos hálózat (3×32A), új nyílászárók, ipari tevékenységre is ideális.
6. Épület - Felújított irodaépület, 94 m2 + 22 m2 fedett terasz:
Beton alapon, tégla falazattal, jó szerkezeti állapotban, 15 cm-es külső szigeteléssel, négy különálló irodahelyiség, konyha, WC, előtér, közlekedő. Igényes burkolatok, új nyílászárók, új víz, csatorna, villamos hálózat, korszerű gázfűtés és klímák.

A hirdetésben tervezett látványképek is meg vannak jelenítve, hogy segítsenek a végleges megjelenés pontosabb elképzelésében!

Az ingatlan komplexitása és adottságai alapján elkészült egy tájékoztató jellegű tervezet is, amely akár közel 100 fő befogadását biztosító funkcionális átalakítást is lehetővé tehet.

További információért hívjon bizalommal akár hétvégén is. Megtekintésre telefonos egyeztetés alapján van lehetőség. Kedvezményes kamatozású lakásvásárlási, felújítási hitelek, CSOK és Babaváró támogatás az OTP hátterével irodánkban.
További adatok
Telekterület: 3 018 m2
Kert mérete: -
Erkély mérete: -
Felszereltség: -
Parkolás: -
Kilátás: -
Egyéb extrák:  
Hirdető adatai
Hirdető neve: otpip.hu - Debrecen Kürtös utca 8 - OTP Ingatlanpont Iroda
Kapcsolattartó: Mester Tibor
Hirdető telefonszáma: +36-20-806-7007
Honlap: -
 
Üzenetet küldhet a hirdetőnek, árajánlatot tehet az ingatlanra:
Az Ön neve:
Az Ön e-mail címe:
Üzenet: