Ingatlan Televízió
Ingatlan Televízió
további hirdetések
adatlap bezárása

Győr 
 

Hivatkozási szám: 5904720
Ingatlan adatai
Irányár: 59 900 000 Ft
Típus: kereskedelmi/ipari ingatlan
Kategória: eladó
Alapterület: 66 m2
Fűtés: -
Állapota: -
Szobák száma: -
Építés éve: 2025
Szintek száma: -
Részletes leírás
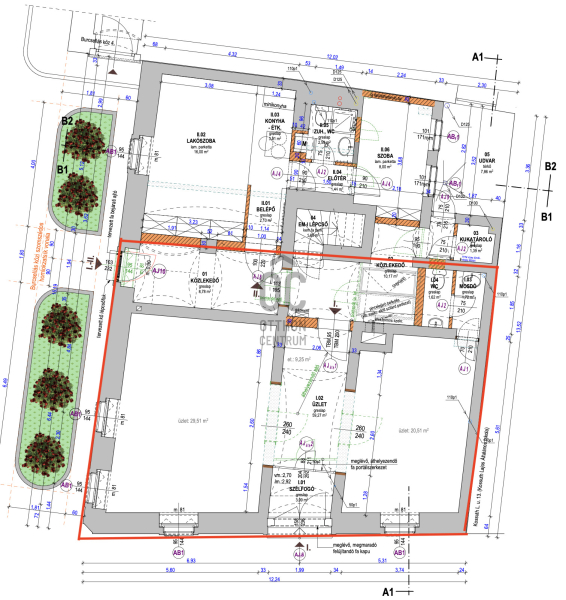
Tágas, világos és könnyen alakítható üzlethelyiség, amely 65,70 m² teljes alapterületével számtalan üzleti tevékenységnek ad otthont.

Az elrendezés rugalmas, a tér akár le is választható, és lehetőség van további vizesblokk kialakítására.

Kiváló választás irodának, bemutatóteremnek, stúdiónak vagy üzlethelyiségnek, ahol fontos a funkcionalitás, a láthatóság és a praktikus kialakítás.

Az ingatlan ritka lehetőség a piacon: jó elhelyezkedésű, könnyen megközelíthető, és parkolási lehetőséggel is rendelkezik, ami különösen értékes a bérlők számára.
Az üzlethelyiség könnyen kiadható, így befektetésnek is ideális választás.

59.900.000 Ft + ÁFA

Hitelre van szüksége?
Az Otthon Centrum, az ország egyik legnagyobb és legmegbízhatóbb hitelközvetítője, teljes körű és díjmentes hitelügyintézéssel, valamint biztosításkötéssel segíti ügyfeleit.
Kérje kollégáinktól személyre szabott ajánlatát, és találja meg a legjobb megoldást gyorsan és egyszerűen!
További adatok
Telekterület: -
Kert mérete: -
Erkély mérete: -
Felszereltség: -
Parkolás: -
Kilátás: -
Egyéb extrák:  
Hirdető adatai
Hirdető neve: Otthon Centrum
Kapcsolattartó: Grósz Renáta
Hirdető telefonszáma: +36 70 454 2568
Honlap: -
 
Üzenetet küldhet a hirdetőnek, árajánlatot tehet az ingatlanra:
Az Ön neve:
Az Ön e-mail címe:
Üzenet: