Ingatlan Televízió
Ingatlan Televízió
további hirdetések
adatlap bezárása

Budapest, XV.kerület 
Pestújhely 

Hivatkozási szám: 5904482
Ingatlan adatai
Irányár: 125 000 000 Ft
Típus: ház
Kategória: eladó
Alapterület: 136 m2
Fűtés: -
Állapota: felújítást igényel
Szobák száma: 3+3
Építés éve: 1911
Szintek száma: -
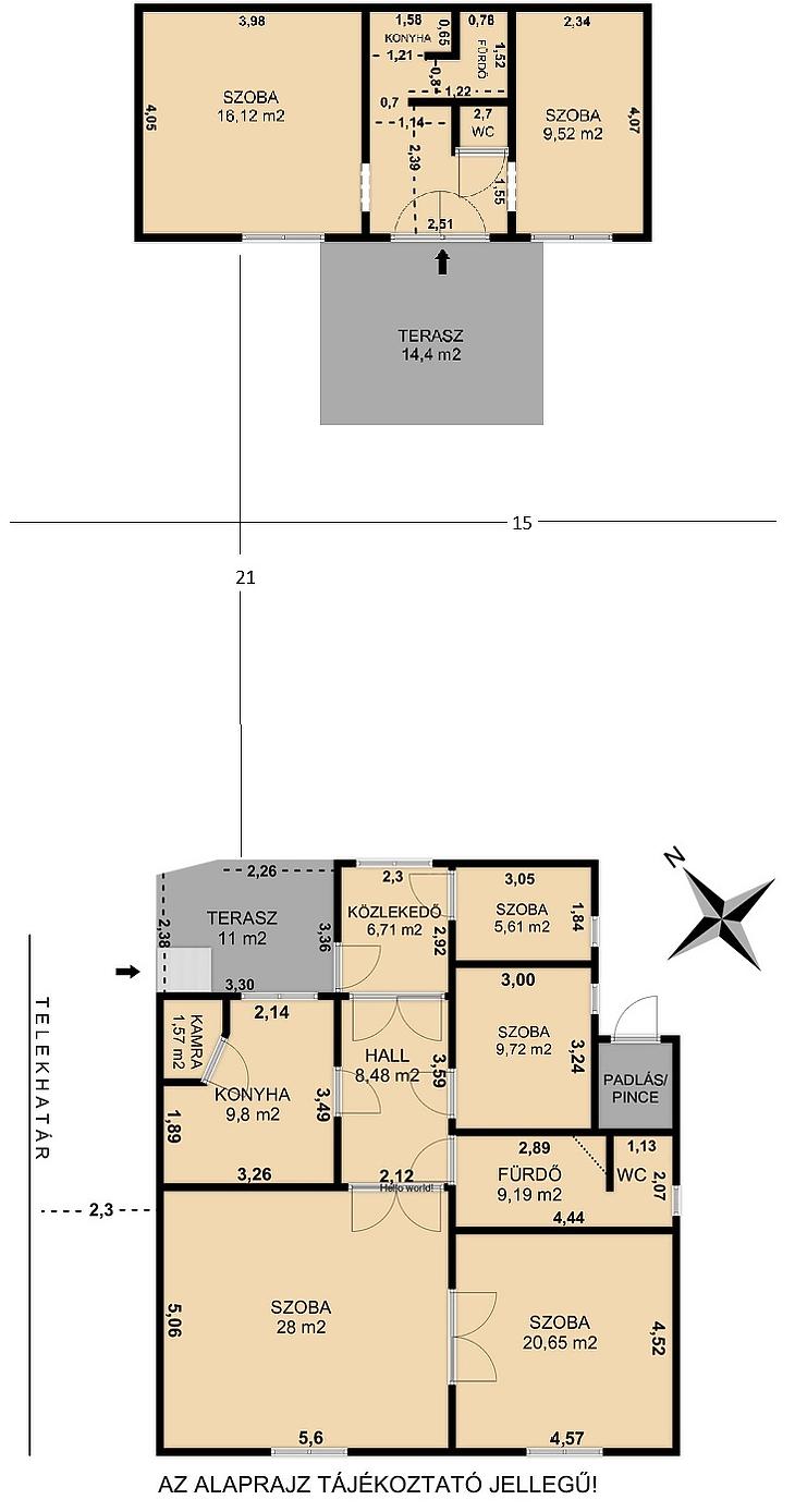
Részletes leírás
XV. KERÜLETBEN, PESTÚJHELY ÉS RÁKOSPALOTA HATÁRÁN, TÖBBGENERÁCIÓS OTTHONNAK VAGY BEFEKTETÉSKÉNT ELADÓ 696 M2-ES TELKEN 100 M2 KÖRBEJÁRHATÓ CSALÁDI HÁZ TERASSZAL, PINCÉVEL ÉS 36 M2 LAKÓÉPÜLETKÉNT HASZNÁLT HÁZ.



AZ ÉPÜLET JELLEMZŐI:

A nagypolgári stílust képviseltető ház téglából épült 1911-ben. A cirkó fűtés mellett egy cserépkályha is helyet kapott a két nagyobb szoba között. A melegvízről a fürdőszobában egy külön gázbojler gondoskodik.

Fakeretes, gerébtokos, dupla ablakok vannak beépítve. A tető palával van fedve, a tágas beépítetlen padlástér fafödémes.

A telek végében elhelyezkedő, szintén körbejárható ház cseréppel fedett, fűtését gázkonvektor biztosítja.

A két egység külön villany- és gázórával rendelkezik.

Az udvarban ásott kút is található.



A KÉT HÁZ ELRENDEZÉSE:

100 m2:

- előszoba

- hall

- konyha

- kamra

- fürdőszoba

- nappali

- 3 hálószóba

- terasz



36 m2:

- előszoba

- 1 + 1 félszoba

- fürdő

- wc

- főzőfülke

- terasz





PARKOLÁS:

Díjmentesen utcafronton vagy átalakítás során telken belül.



KÖZLEKEDÉS:

Közelben a 5 és 125 busz, 62, 62A, 69 villamos, valamint a 973, 973A éjszakai járat.



IRÁNYÁR: 125 M FT



FINANSZÍROZÁS:

Az ingatlan banki finanszírozással is megvásárolható, melyben irodánk ingyenes tanácsadással áll rendelkezésükre!

VEVŐINK RÉSZÉRE A KÖZVETÍTÉS DÍJTALAN!!



Amennyiben eladná saját ingatlanát, több mint 10 éve működő, kifejezetten a kerületre szakosodott irodánktól, INGYENES ÉRTÉKBECSLÉST kérhet.



A hirdetésben szereplő adatok tájékoztató jellegűek.
További adatok
Telekterület: 696 m2
Kert mérete: 696 m2
Erkély mérete: -
Felszereltség: -
Parkolás: -
Kilátás: -
Egyéb extrák:  
Hirdető adatai
Hirdető neve: MPD Hungary Kft.
Kapcsolattartó: Újhely Ingatlan Kft.
Hirdető telefonszáma: +36202885981
Honlap: -
 
Üzenetet küldhet a hirdetőnek, árajánlatot tehet az ingatlanra:
Az Ön neve:
Az Ön e-mail címe:
Üzenet: