Ingatlan Televízió
Ingatlan Televízió
további hirdetések
adatlap bezárása

Törökbálint 
 

Hivatkozási szám: 5903562
Ingatlan adatai
Irányár: 279 000 000 Ft
Típus: ház
Kategória: eladó
Alapterület: 284 m2
Fűtés: egyéb
Állapota: -
Szobák száma: 8
Építés éve: 1993
Szintek száma: -
Részletes leírás
Sok lehetőséget rejtő családi ház eladó Törökbálinton!

Eladó Törökbálint közkedvelt Újtelepi részén egy 573 m²-es telken álló, önálló családi ház, amely 4 különálló lakásként funkcionál– ideális választás nagycsaládosoknak, összeköltözőknek vagy befektetőknek!
Az ingatlan 1993-ban épült, folyamatosan karbantartott, nettó 284 m² lakóterülettel rendelkezik.

A ház két szinten helyezkedik el:

Földszint – 3 külön bejáratú lakás:
• 1-es lakás: 43 m²
• 2-es lakás: 76,1 m²
• 3-as lakás: 42,5 m²
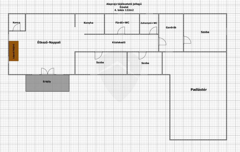
(Az elosztás megtekinthető az alaprajzon.)

Emelet – egy tágas lakás:
• 122 m²-es lakótérrel és saját erkéllyel

A földszinten továbbá található egy 30 m²-es fedett terasz, a ház mögött pedig egy hangulatos kiülő, ideális helyszín baráti összejövetelekhez vagy családi pihenéshez.

Műszaki jellemzők:
• Külön mérőórák szintenként (villany, gáz)
• Gázkazános fűtés padlófűtéssel
• Ipari áram bekötve
• Cserépfedés, szigetelt födém és homlokzat (5 cm-es szigeteléssel)
• 2 állásos garázs
• Gyűrűs kút locsoláshoz

A gondozott kert és az ingatlan elhelyezkedése csendes, családbarát környezetet biztosít, mégis könnyen megközelíthető a városközpont és az autópálya.

Befektetésként is remek lehetőség:
A ház többgenerációs otthonként is kiváló, de akár kiadásra is alkalmas a 4 külön lakóegység révén, ami biztos, folyamatos bevételt jelenthet új tulajdonosának.
________________________________________
Ne hagyja ki ezt a kivételes lehetőséget! Hívjon most, és tekintse meg személyesen ezt a sokoldalú ingatlant Törökbálinton!
További adatok
Telekterület: 573 m2
Kert mérete: 573 m2
Erkély mérete: 38 m2
Felszereltség: -
Parkolás: -
Kilátás: udvari
Egyéb extrák:  
Hirdető adatai
Hirdető neve: Royal Real Estates Powered by RH
Kapcsolattartó: Szabó Balázs
Hirdető telefonszáma: +36 70 412 5713
Honlap: -
 
Üzenetet küldhet a hirdetőnek, árajánlatot tehet az ingatlanra:
Az Ön neve:
Az Ön e-mail címe:
Üzenet: