Ingatlan Televízió
Ingatlan Televízió
további hirdetések
adatlap bezárása

Dunaharaszti 
 

Hivatkozási szám: 5903543
Ingatlan adatai
Irányár: 94 900 000 Ft
Típus: lakás (újépítésű)
Kategória: eladó
Alapterület: 85 m2
Fűtés: -
Állapota: új
Szobák száma: 4
Építés éve: 2025
Szintek száma: -
Részletes leírás
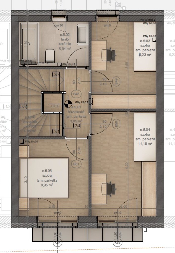
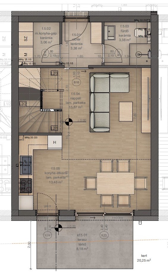
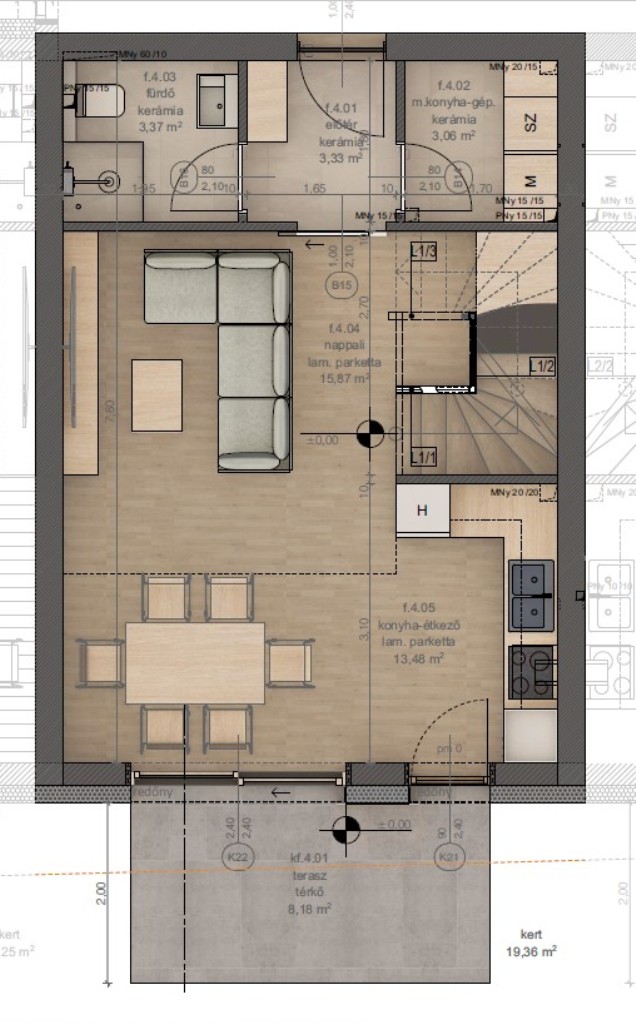
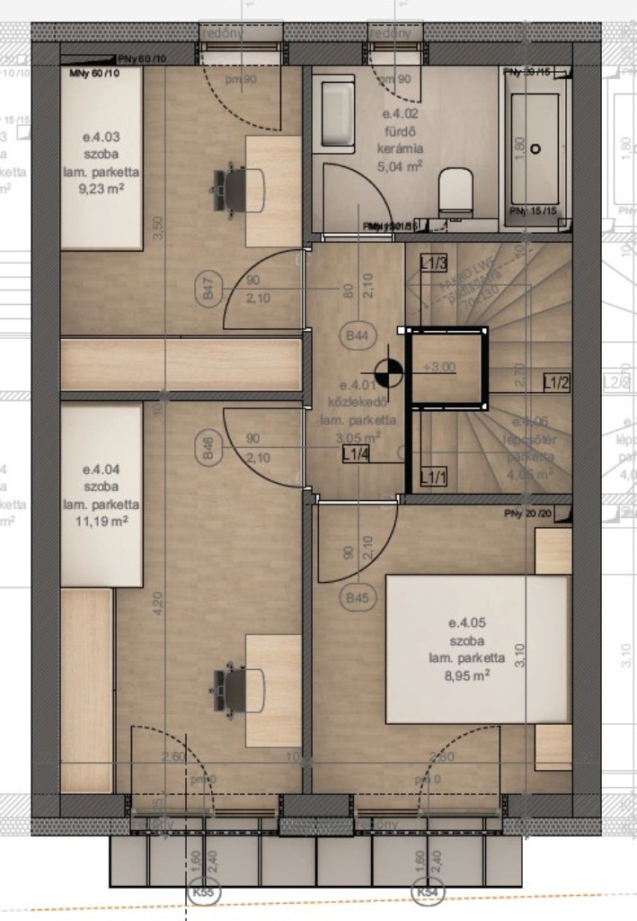
ÚJ TÁRSASHÁZI LAKÁSOK , KIZÁRÓLAGOS HASZNÁLATÚ KERTRÉSSZEL!
Dunaharasztin Bezerédi lakóparkban ,csendes kertvárosi részén, 9 lakásos társasházban, új építésű, kétszintes, nettó 80-90 m2-es, nappali + 2 és 3 háló szobás , gardróbos sorházi lakások, felszíni gépkocsibeállóval ,terasszal ,hozzá tartozó 20m2-120m2-es kizárólagos használatú kertrészekkel 2026 év Május végi átadással, kulcsrakészen eladók. .A hirdetésben szereplő ár a 4 -es számú ingatlanra vonatkozik még a tetőtérben tartozik hozzá egy kizárólagos használatú 20 m2-es TÁROLÓ és egy 20m2-es KIZÁRÓLAGOS HASZNÁLATÚ KERTRÉSZ is . Magas minőségű burkolatok, a hideg/meleg burkolat és a beltéri ajtók színe választható .
Fűtése 9,5 KW-os hőszivattyúkról ,padlófűtés, használati meleg víz és lakásonként 2db beltéri klíma egységek is erről üzemelnek.
Vasbeton sávalap, POROTHERM 25 N+F vázkerámia falazat 20 cm vastagságú EPS polisztirol szigeteléssel. Lakások elválasztása hanggátló 30 cm vastagságú POROTHERM Aku Z vázkerámia falakkal történik. Válaszfalak POROTHERM 10 N+F cm vastagságú vázkerámia falazóelemekből készülnek. Zárófödém: kőzetgyapot vagy fújt PUR 15 cm közötti vastagságban szarufák között.
Nyílászárók műanyag, 7 légkamrás, 3 rétegű üvegezésű ablakok külső középszürke fóliával.
Parkosított udvar, kamera előkészítés, kaputelefon kiépítés, elektromos kapu, kerti vízcsap , kizárólagos használatú tetőtéri tároló. Előkészítés elektromos autótöltéshez és napelemhez.
Aktuális árlista:
1. lakás – 111.900.000 Ft
2. lakás – 102.900.000 Ft
3. lakás – 102.900.000 Ft
4. lakás – 94.900.000 Ft
5. lakás – ELADVA
6. lakás – 114.900.000 Ft
7. lakás – 104.900.000 Ft
8. lakás – ELADVA
9. lakás – ELADVA

Magyarország piacvezető hitelközvetítője által egyedi kamatkedvezményekkel és bankfüggetlen, díjmentes hitelügyintézéssel is segítjük vásárlását. Magyarország piacvezető hitelközvetítője által egyedi kamatkedvezményekkel és bankfüggetlen, díjmentes hitelügyintézéssel is segítjük vásárlását. Amennyiben minimum 25 millió Ft. összegű ingatlanfedezetes hitelt vesz igénybe általunk 500 Euro értékű Club Karos Spa**** wellness utalványt adunk ajándékba. (Az akció kizárólag a Money Network ügynökhálózatán keresztül beadott és folyósított jelzáloghitelekre érvényes.)
Hívjon bizalommal!
További adatok
Telekterület: -
Kert mérete: -
Erkély mérete: 8 m2
Felszereltség: -
Parkolás: -
Kilátás: -
Egyéb extrák:  
Hirdető adatai
Hirdető neve: RARIK-1986 Kft.
Kapcsolattartó: Kabát József
Hirdető telefonszáma: 06-70-542-1053
Honlap: -
 
Üzenetet küldhet a hirdetőnek, árajánlatot tehet az ingatlanra:
Az Ön neve:
Az Ön e-mail címe:
Üzenet: