Ingatlan Televízió
Ingatlan Televízió
további hirdetések
adatlap bezárása

Keszthely 
 

Hivatkozási szám: 5903232
Ingatlan adatai
Irányár: 49 900 000 Ft
Típus: lakás (újépítésű)
Kategória: eladó
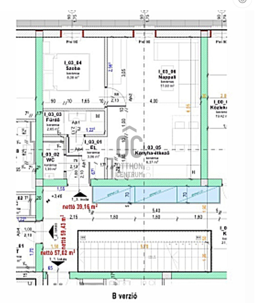
Alapterület: 39 m2
Fűtés: -
Állapota: új
Szobák száma: 2
Építés éve: 2026
Szintek száma: -
Részletes leírás
Befektetők figyelem! KESZTHELY BELVÁROSÁBAN, A FŐTÉR MELLETT ÚJÉPÍTÉSŰ PRÉMIUM IRODA ELADÓ, AMI LAKÁSNAK IS KIVÁLÓAN ALKALMAS

--első emeleti 39m2-es iroda, (AZ IRÁNYÁR 27% ÁFÁT TARTALMAZ)
--csendes forgalomtól mentes utcában, a fötér szomszédságában
--17 lakásos prémium társasház udvari kocsibeállóval
--3 rétegű nyílászárók , elektromos redőnnyel
-- burkolatok, járólapok, csempék kiváló minőségüek
--fűtésről padlófűtés hőszifattyú, hűtésről légkondi gondoskodik
--átadás 2026 aug


Keszthely a Balaton egyik valódi gyöngyszeme. Nemcsak a szezont jelentő meleg évszakban, hanem az őszi-téli, kora tavaszi időszakban is töretlenül tartja vonzerejét az itt található kulturális és sportolási lehetőségeknek köszönhetően. Szerencsés elhelyezkedését még fokozza közeli fekvése Hévízhez, így a gyógyulni vagy csak welness kikapcsolódásra vágyók is megtalálhatják számításukat ebben az egyébként is igen szép, régi városban.
További adatok
Telekterület: -
Kert mérete: -
Erkély mérete: -
Felszereltség: -
Parkolás: -
Kilátás: utcai
Egyéb extrák:  
Hirdető adatai
Hirdető neve: Otthon Centrum
Kapcsolattartó: Pálfi Szabolcs
Hirdető telefonszáma: +36 70 461 9086
Honlap: -
 
Üzenetet küldhet a hirdetőnek, árajánlatot tehet az ingatlanra:
Az Ön neve:
Az Ön e-mail címe:
Üzenet: