Ingatlan Televízió
Ingatlan Televízió
további hirdetések
adatlap bezárása

Budapest, VIII.kerület 
 

Hivatkozási szám: 5903219
Ingatlan adatai
Irányár: 1 500 000 000 Ft
Típus: kereskedelmi/ipari ingatlan
Kategória: eladó
Alapterület: 2 883 m2
Fűtés: -
Állapota: -
Szobák száma: -
Építés éve: 2013
Szintek száma: -
Részletes leírás
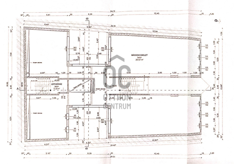
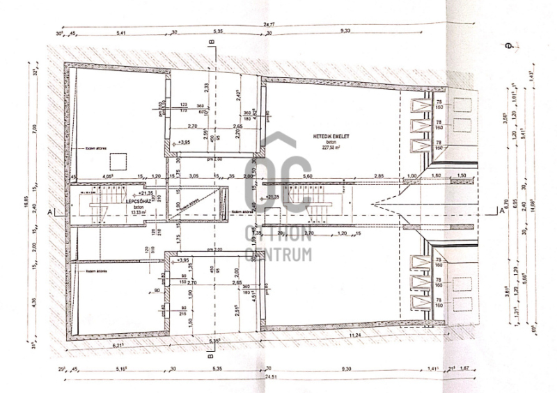
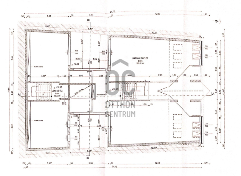
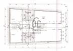
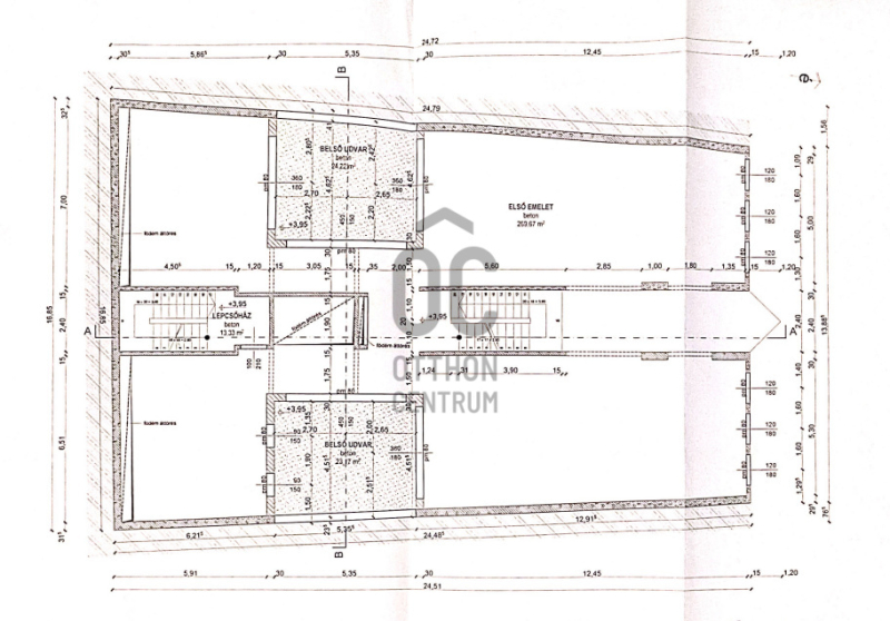
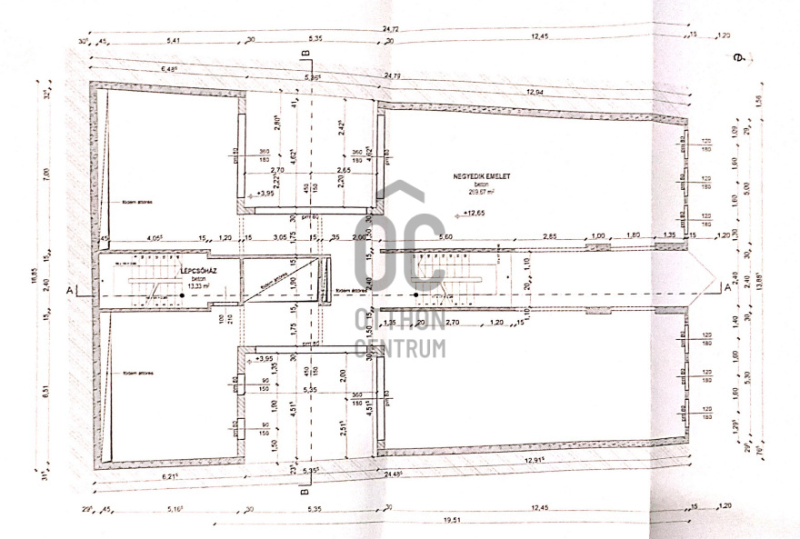
Budapest VIII. kerületének egyik legdinamikusabban fejlődő részén, Józsefváros frekventált elhelyezkedésű területén kínálunk megvételre egy 2.883 m² alapterületű, befejezendő állapotú, többfunkciós fejlesztésre alkalmas épületet, amely kivételes befektetési potenciált hordoz magában.

Az ingatlan 7 szint + földszint kialakítású, modern szerkezeti adottságokkal rendelkezik.

Az épület különlegessége, hogy –3 szint mélységben pinceszintekkel rendelkezik,(egyforma méretben) így liftes parkolás, mélygarázs vagy automata parkolórendszer kialakítása is lehetséges, ami a belvárosi lokációban rendkívül értékes és ritka adottság.

Szerkezeti rendszer – méretekkel
Elem Szerkezet Méret / vastagság
Födém Monolit vasbeton20–22 cm
Fő teherhordó falak Tégla + vasbeton30 cm
VálaszfalakTégla10–12 cm
Homlokzati fal Tégla + hőszigetelés30 cm tégla + 10 cm EPS
TetőfödémVasbeton22–25 cm
ErkélylemezVasbeton18–20 cm

Hőszigetelési rétegrend
Terület Rétegrend
Homlokzat30 cm tégla + 10 cm grafitos EPS
Tető22 cm vb. + 15 cm hőszigetelés + víz szigetelés
Zöldtető VB födém + 15 cm XPS + víz szigetelés + drén + termőréteg
Födémek20–22 cm vasbeton
Nyílászárók2 rétegű hőszigetelt üveg

Gépészet
Rendszer Leírás
Fűtés Központi cirkó
Meleg víz Központi
Vízvezeték Hideg + meleg + cirkuláció
Csatorna Központi hálózat

Befektetői előny – műszaki
Vasbeton szerkezet → időtálló
10–15 cm hőszigetelés → alacsony rezsi
Tégla falazat → jó értéktartás
Zöldtető → jobb nyári klíma
Jó hangszigetelés

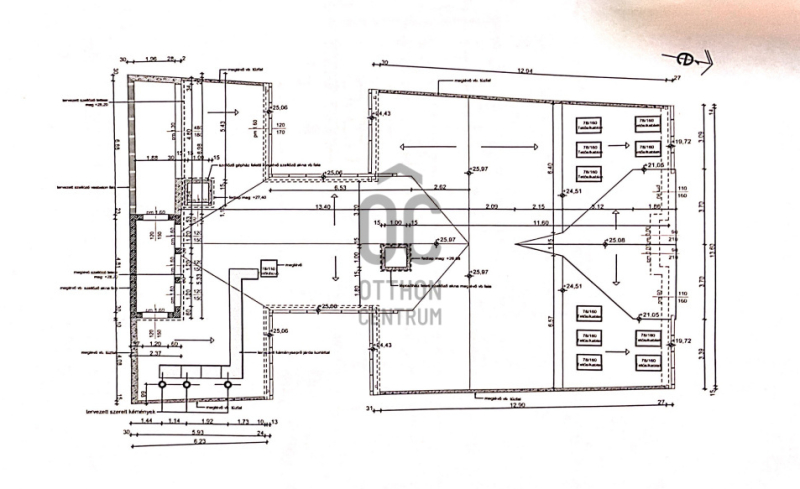
Parkolószintek száma
–1 szint,
–2 szint,
–3 szint
Összesen: 3 teljes mélygarázs szint

Parkolóhely2,5 m × 5,0 m = 12,5 m²
Közlekedősávval együtt25–30 m² / autó

Műszaki kialakítás
Elem Megoldás
SzerkezetVasbeton pillér–gerenda
Födémvastagság25–30 cm vasbeton
RámpaVasbeton, csúszásgátló bevonattal
Szellőzés Gépiesített elszívás (CO érzékelővel)
Világítás LED, mozgás érzékelő
Tűzvédelem Tűzszakaszok, sprinkler előkészítés
Belmagasságmin. 2,20 m
Teherbírás>2,5 t / gépjármű

A földszinten melegkonyhás vendéglátó egység (étterem, bár, kávézó) is kialakítható, míg az alsó szinteken –3 szintig liftes parkolórendszer tervezhető, ami a belvárosi elhelyezkedés miatt kiemelkedő versenyelőnyt jelent.

JÓKÉSZ 42. § (2) A Vt-V jelű építési övezetben az épület és az egyes épületekben létesülő önálló rendeltetési egység tekintetében az alábbi, nem zavaró rendeltetések köre létesíthető, kivéve,ha az egyes építési övezetre vonatkozó előírás másként rendelkezik:

a) lakás,

b) igazgatási, irodai rendeltetés,

c) kereskedelem, szolgáltatás,

d) szállásjellegű, munkásszállás,

e) hitéleti, nevelési, oktatási, egészségügyi, szociális rendeltetés,

f) kulturális, közösségi szórakoztató rendeltetés,

g) sportolási célú,

h) vendéglátó,

i) kutatás-fejlesztés nem üzemi létesítményei,

j) önálló parkolóház, mélygarázs,

k) a lakosság ellátását szolgáló egyéb, nem zavarórendeltetés,

melyek egy épületen belül vegyesen is kialakíthatók.

Az épület jelenleg üres, így a leendő tulajdonos teljes szabadságot kap a funkcionális kialakításban: ideális lehet apartmanháznak, irodaháznak, hotelnek vagy hostelne
egészségügyi, oktatási vagy szolgáltató központnak ,illetve vegyes funkciójú (lakó + kereskedelmi) fejlesztésnek.


A lokáció kiemelkedő: Józsefváros Budapest egyik leggyorsabban megújuló városrésze, kiváló tömegközlekedési kapcsolatokkal (metró, villamos, busz), valamint sétatávolságban elérhető üzletekkel, éttermekkel, szolgáltatásokkal és egyetemi intézményekkel.

A környék folyamatos fejlődése, a növekvő kereslet és a belvárosi elhelyezkedés garantálja, hogy az ingatlan hosszú távon is stabil, értékálló és magas hozamú befektetés.

Ritka lehetőség olyan befektetők számára, akik egy valódi, nagy léptékű belvárosi projektben gondolkodnak, saját koncepció alapján.
Egyedi igényekre szabott lakáshitelekkel állunk rendelkezésére.
Bankfüggetlen Hitelcentrumunk az országban elérhető összes bank és hitelintézet ajánlatát versenyezteti az Ön számára díjmentesen.
Munkatársaink nagy szakmai tapasztalattal, teljes körű CSOK PLUSZ és OTTHON START PROGRAM ügyintézéssel várják Önt előre egyeztetett időpontban akár a normál munkaidő után is.

Bővebb információért és a megtekintéssel kapcsolatban hívjon bizalommal!
További adatok
Telekterület: -
Kert mérete: -
Erkély mérete: -
Felszereltség: -
Parkolás: -
Kilátás: -
Egyéb extrák:  
Hirdető adatai
Hirdető neve: Otthon Centrum
Kapcsolattartó: Mauterer Szilvia
Hirdető telefonszáma: +36 70 716 8786
Honlap: -
 
Üzenetet küldhet a hirdetőnek, árajánlatot tehet az ingatlanra:
Az Ön neve:
Az Ön e-mail címe:
Üzenet: