Ingatlan Televízió
Ingatlan Televízió
további hirdetések
adatlap bezárása

Balatonföldvár 
 

Hivatkozási szám: 5903049
Ingatlan adatai
Irányár: 64 900 000 Ft
Típus: ház
Kategória: eladó
Alapterület: 45 m2
Fűtés: egyéb
Állapota: -
Szobák száma: 2
Építés éve: 1973
Szintek száma: -
Részletes leírás
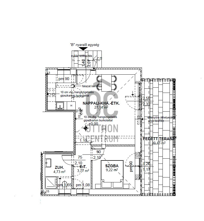
Balatonföldvár csendes, zöldövezeti részén, mégis a központhoz közel kínáljuk megvételre ezt a teljes körűen újjáépített, modern kialakítású ikerház-felet, amely ideális választás állandó otthonnak vagy prémium nyaralónak.
A világos nappali a közös pillanatok tere, a két hálószoba pedig a nyugodt elvonulásé. A fedett terasz a nyári esték kedvenc helyszíne lesz – beszélgetésekhez, borozáshoz, elcsendesedéshez.

A saját, kb. 300 nm-es kert intim, zöld menedék, ahol a város zaja megszűnik létezni.árolásról.
Főbb jellemzők:
Nappali + 1 hálószoba
Világos, jól tagolt belső terek
Fedett terasz, amely tökéletes helyszíne a reggeli kávéknak vagy esti pihenésnek
Kb. 300 nm saját kert, intim, zöld környezetben (használati megosztással)
Teljesen újjáépített műszaki és esztétikai állapot
Alacsony fenntartási költségek, korszerű megoldások

Elhelyezkedés:
Nyugodt, családias környezet
Balatonföldvár központja, kikötő, strand, üzletek rövid időn belül elérhetők
Kiváló infrastruktúra, mégis természetközeli életérzés

Felszereltség és extrák:
Teljes körűen felújított: új tető, új burkolatok, új nyílászárók, új festés
15 cm homlokzati szigetelés
Klíma Gree COMFORT Pro inverteres mono szett
Elektromos padlófűtés és elektromos törölközőszárító radiátor a fürdőben (külön kérhető energia tárolós napelem)
Szúnyoghálók és redőnyök minden ablakon
Konyhabútor (felár ellenében gépesítve)
Külön közművek
Használati megosztással osztott, gondozott kert
A telek két utcára nyílik, így a két ikernyaraló teljesen független egymástól

Kinek ajánljuk?
Akik minőségi, azonnal költözhető ingatlant keresnek a Balaton déli partján
Családoknak, pároknak, vagy akár befektetőknek
Azoknak, akik nem szeretnének kompromisszumot kötni elhelyezkedés, nyugalom és értékállóság között
További információért és megtekintésért keressen bizalommal!
Ez az ingatlan ritka lehetőség Balatonföldváron.


Kérem vegye figyelembe, a fotók látványtervek, az építkezési folyamat okán!





































































#újjáépítettház #ikerház #azonnalköltözhető #modernotthon #családiotthon #kertesingatlan #duplagarázs #balatonföldvár #balatondélipart #balatonközel #balatonhome #balatonlife #balatonimálom #otthontkeresek #újkezdet #állandólakhatás #nyaralóésotthon #értékálló
További adatok
Telekterület: 300 m2
Kert mérete: 300 m2
Erkély mérete: 19 m2
Felszereltség: -
Parkolás: -
Kilátás: -
Egyéb extrák:  
Hirdető adatai
Hirdető neve: Otthon Centrum
Kapcsolattartó: Dienes László
Hirdető telefonszáma: +36 70 388 5086
Honlap: -
 
Üzenetet küldhet a hirdetőnek, árajánlatot tehet az ingatlanra:
Az Ön neve:
Az Ön e-mail címe:
Üzenet: