Ingatlan Televízió
Ingatlan Televízió
további hirdetések
adatlap bezárása

Budapest, XVII.kerület 
 

Hivatkozási szám: 5902902
Ingatlan adatai
Irányár: 199 000 000 Ft
Típus: ház
Kategória: eladó
Alapterület: 178 m2
Fűtés: gáz (cirko)
Állapota: -
Szobák száma: 6
Építés éve: 1996
Szintek száma: -
Részletes leírás
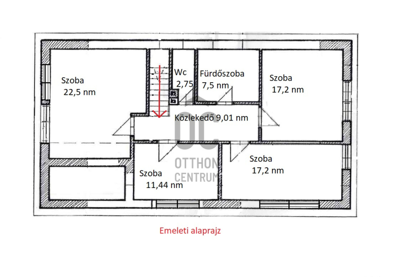
XVII. kerületben Felső-Rákoshegyen, a kerület \\\"villanegyedében\\\", ősfás, parkos környezetben kínálunk megvásárlásra egy remek családi házat. A telek mérete 973 nm, gépesített, fűtött medence, nagy garázs, a kert végében műhely, térkövezett autóbeálló, kerti sütögető szolgálják a lakók kényelmét. A ház a 90-es évek végén nyerte el mai formáját, de azóta is több felújítás, korszerűsítés történt. Belső elosztása kiváló, nagyobb család számára is kényelmes otthon lesz. A földszinten tágas, déli tájolású nappali, nagy méretű hálószoba, nagy étkező, konyha teraszkapcsolattal, kamra, zuhanyzós fürdőszoba, előszoba került kialakításra. A konyhában a beépített Nobilia konyhabútor és konyhagépek a vételár részét képezik, a bútorzat pár éve lett cserélve, minőségi darab. Az emeletre kényelmes lépcső vezet, ahol 4 szoba található, továbbá egy kádas fürdőszoba és egy külön mellékhelyiség is helyet kapott. A tetőtér pár éve újra lett szigetelve egy korszerű technológiával. A fűtést és a használati melegvizet egy 2022-ben beszerelt kondenzációs kazán biztosítja, de rendelkezésre áll egy fatüzelésű kazán is, nyáron a kellemes hőmérsékletről 6 db klíma gondoskodik. Az ablakok hőszigetelt üvegezésű fa és műanyag nyílászárók. A tetőt cserép fedi. A kert végében egy kb. 100 nm-es műhely is található, mely könnyedén elbontható, ha nincs szükség rá. A környék kifejezetten szép, csendes, kulturált szomszédokkal. A tömegközlekedés kiváló: buszmegálló 5 perc séta (198-as), vonat állomás 800 méter (11 perc gyalog). Iskola, gimnázium, orvosi rendelő, posta, piac is rövid időn belül elérhető. Az ingatlan üres, tehermentes, gyorsan belül birtokba vehető.
További adatok
Telekterület: 973 m2
Kert mérete: 973 m2
Erkély mérete: 12 m2
Felszereltség: -
Parkolás: -
Kilátás: -
Egyéb extrák:  
Hirdető adatai
Hirdető neve: Otthon Centrum
Kapcsolattartó: Sipos Zoltánné
Hirdető telefonszáma: +36 70 469 3031
Honlap: -
 
Üzenetet küldhet a hirdetőnek, árajánlatot tehet az ingatlanra:
Az Ön neve:
Az Ön e-mail címe:
Üzenet: