Ingatlan Televízió
Ingatlan Televízió
további hirdetések
adatlap bezárása

Budapest, XIII.kerület 
 

Hivatkozási szám: 5902617
Ingatlan adatai
Irányár: 61 500 000 Ft
Típus: lakás (újépítésű)
Kategória: eladó
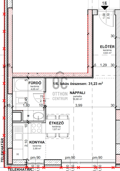
Alapterület: 31 m2
Fűtés: -
Állapota: új
Szobák száma: 1
Építés éve: 2026
Szintek száma: -
Részletes leírás
SZEREKEZETKÉSZ
Projekt bemutatása

A XIII. kerület legfrekventáltabb részén, közel az M3-as metró Göncz Árpád Városközponti megállójához (Árpád híd) és az 1-es villamoshoz, csendes mellékutcában kínálunk eladásra újépítésű lakásokat, számos referenciával rendelkező, nagymúltú beruházó projektjében.

A lakások változatos méretűek: a stúdió lakástól a nagyteraszos, több szobásig minden típus megtalálható a házban. Mindegyikhez tartozik erkély vagy nagy méretű terasz. A földszinti lakások kertkapcsolatosak.

A társasház a jövő korának megfelelő, modern, hőszivattyús mennyezeti hűtés, -fűtéses rendszerű, lakásonként elkülönített szabályzókkal, ami minimális energiafelhasználást tesz lehetővé télen és nyáron egyaránt, minden tulajdonos számára. A technológiának köszönhetően a lakótereken belül nincs szükség külön fűtőtestekre, ami által a helyiségek berendezhetősége is optimális.

A beruházó rendkívüli rugalmassága lehetővé teszi minden vevő számára a belső kialakítás és beosztás változtatását is, így minden lakás teljesen személyre szabható.

Mind a környék infrastruktúrája, mind pedig a belváros közelsége biztosítja, hogy az itt lakók mindent elérjenek percek alatt: számos bevásárlási lehetőség, óvodák, iskolák, bevásárló központ, gyógyszertár, posta vagy játszótér, parkok vannak karnyújtásnyi távolságra.

A kiváló lokáció és az alacsony energiaigény miatt kiemelkedő az ingatlanok akár hosszú-, akár rövidtávú kiadhatósága is.
További adatok
Telekterület: -
Kert mérete: -
Erkély mérete: -
Felszereltség: -
Parkolás: -
Kilátás: utcai
Egyéb extrák:  
Hirdető adatai
Hirdető neve: Otthon Centrum
Kapcsolattartó: Frimmel András
Hirdető telefonszáma: +36 70 461 9331
Honlap: -
 
Üzenetet küldhet a hirdetőnek, árajánlatot tehet az ingatlanra:
Az Ön neve:
Az Ön e-mail címe:
Üzenet: