Ingatlan Televízió
Ingatlan Televízió
további hirdetések
adatlap bezárása

Budapest, XIV.kerület 
 

Hivatkozási szám: 5902567
Ingatlan adatai
Irányár: 449 000 000 Ft
Típus: kereskedelmi/ipari ingatlan
Kategória: eladó
Alapterület: 380 m2
Fűtés: -
Állapota: -
Szobák száma: -
Építés éve: -
Szintek száma: -
Részletes leírás
Budapest XIV. kerületének Alsórákos városrészében, a Szugló utcában kínálunk eladásra egy kiváló adottságokkal rendelkező, ipari–irodai hasznosításra alkalmas ingatlant.

Elhelyezkedés, megközelíthetőség

Az ingatlan szilárd burkolatú úton, kiváló közlekedési kapcsolatokkal érhető el:
-busz, villamos, troli a közelben
-Bosnyák tér: 2 perc gyalog
-Zenit Corso: 5 perc gyalog

A környék vegyes funkciójú: irodai, ipari, kereskedelmi és lakóingatlanok egyaránt megtalálhatók, több új építésű társasház közvetlen közelben.

A Szugló utca közepes gépjárműforgalmú, gyalogosforgalma alacsony, ami ideálissá teszi irodai vagy ipari tevékenységre.


Műszaki állapot, felújítások

Az épület folyamatosan karbantartott, átlagos–jó műszaki állapotú:
-kb. 5 éve teljes tetőcsere (zsindelytető)
-alagsor és magasföldszint felújítva
-mosható falfestékek
-részben új nyílászárók
-öntött műgyanta burkolat

-teljes elektromos hálózat felújítva
-minden helyiség split klímával légkondicionált
-kiépített biztonságtechnikai rendszer


Főbb adatok:

-Áram erősség: 3 x 40Ah
-Becsült építési év: 1970-es évek
-Telek: közbenső fekvésű, összközműves
-Beépíthetőség: 30%
-Megengedett építménymagasság: 10,5 m
-Minimális telekméret: 800 m²
-Összes nettó felépítmény: 397 m²
-Telek: sík, kerített, utcára nyitott
-Közművek: víz, gáz, villany, csatorna
-Udvar: 13 férőhelyes parkoló


Funkció és elrendezés
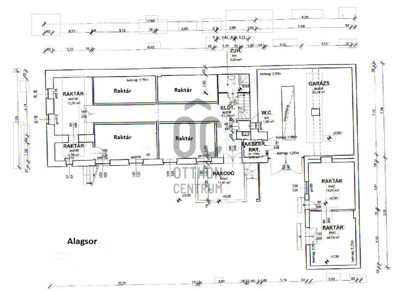
Alagsor:
-több különálló helyiség
-mosdó
-teljes komfort, légkondicionálás

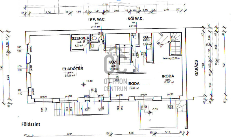
Földszint:
-2 nagyobb légtér
-külön tárolók
-mosdó

Emelet:
-2 iroda
-étkező
-konyha
-2 mellékhelyiség
-galéria (rakodásra alkalmas)

Melléképület:
-nagy tároló
-2 különálló helyiség
-külön mosdó
-(jelenleg állatorvosi ultrahang rendelőként funkcionál)

Hasznosítás

Az ingatlan jelenleg állatorvosi laborként működik, azonban kiválóan alkalmas:
-irodai központnak
-laboratóriumi tevékenységre
-kereskedelmi vagy ipari célra
-fejlesztési telekként történő hasznosításra

Amennyiben felkeltette érdeklődését az ingatlan, úgy várom hívását a hét mindennapján!
További adatok
Telekterület: -
Kert mérete: -
Erkély mérete: -
Felszereltség: -
Parkolás: -
Kilátás: -
Egyéb extrák:  
Hirdető adatai
Hirdető neve: Otthon Centrum
Kapcsolattartó: Pásztor Csaba
Hirdető telefonszáma: +36 70 388 5476
Honlap: -
 
Üzenetet küldhet a hirdetőnek, árajánlatot tehet az ingatlanra:
Az Ön neve:
Az Ön e-mail címe:
Üzenet: