Ingatlan Televízió
Ingatlan Televízió
további hirdetések
adatlap bezárása

Budapest, XVII.kerület 
 

Hivatkozási szám: 5902524
Ingatlan adatai
Irányár: 139 000 000 Ft
Típus: ház
Kategória: eladó
Alapterület: 121 m2
Fűtés: gáz (cirko)
Állapota: új
Szobák száma: 5
Építés éve: 2022
Szintek száma: -
Részletes leírás
Budapest XVII. kerületében, Rákoscsabán, minimál stílusú 121 nm-es ikerház épül! Áfa visszatérítés igénybe vehető!!!

Az árban benne foglaltatik a telekár is.

Az építkezés megkezdődött, jelen pillanatban az alap készületei folynak.

A telek egy frekventált helyen található, ahová öröm lesz haza térni, hisz az Ön leendő otthona maga a nyugalom szigete.
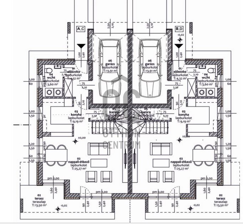
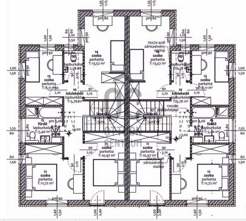
A nagyszerű tervezésnek köszönhetően, tágas terek, jó elosztás jellemzi a házat. Az ikerházak garázzsal és hangszigetelt fallal vannak elválasztva egymástól.
Ezen a 227 nm-es telekhányadon egy 121 nm kétszintes ház épül. Az ikre ugyanilyen paraméterekkel rendelkezik. A telekrész teljes mértékben a megrendelő nevére kerül, kizárólagos használatra.
Az emeleten 4 tágas szoba van, így többgyermekes családnak ideális, CSOK igényelhető.

Az épülő ingatlanok a telek hátsó, csendes részén fognak épülni, zöld környezetben, ahova egy 4 méter széles úton lehet bejutni.

Magas minőségi kivitelezés, megfelelő műszaki tartalom jellemzi a házat, ami minden igényt kielégít.

Néhány paraméter, amit az ár tartalmaz:
- Lékondi
- 30-as klíma tégla
- Kondenzációs kombi cirkó
- Padlófűtés + radiátor
- BB besorolás
- Bemenő út burkolva
- Elektromos kapu
- Kapucsengő

Amennyiben el tudja képzelni a jövőjét ezen a csodaszép helyen, keressen bizalommal!
További adatok
Telekterület: 227 m2
Kert mérete: 227 m2
Erkély mérete: 14 m2
Felszereltség: -
Parkolás: -
Kilátás: -
Egyéb extrák:  
Hirdető adatai
Hirdető neve: Otthon Centrum
Kapcsolattartó: Mészáros Anita
Hirdető telefonszáma: +36 70 388 5346
Honlap: -
 
Üzenetet küldhet a hirdetőnek, árajánlatot tehet az ingatlanra:
Az Ön neve:
Az Ön e-mail címe:
Üzenet: