Ingatlan Televízió
Ingatlan Televízió
további hirdetések
adatlap bezárása

Budapest, XIII.kerület 
 

Hivatkozási szám: 5902435
Ingatlan adatai
Irányár: 135 800 000 Ft
Típus: lakás (újépítésű)
Kategória: eladó
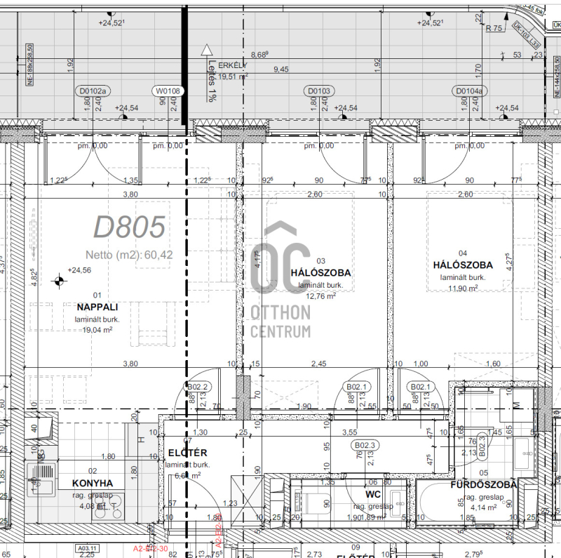
Alapterület: 60 m2
Fűtés: -
Állapota: új
Szobák száma: 3
Építés éve: 2026
Szintek száma: -
Részletes leírás
A terület rozsdaövezeti besorolása miatt kb 5Mft visszaigényelhető a teljes vételárból!

A Marina-parton 60 négyzetméteres, három tágas szobával rendelkezik, amelyek ideálisak családok számára, vagy akár egy fiatal párnak is. A lakás kiváló állapotban van, modern kialakítása és funkcionális elrendezése minden igényt kielégít. A fürdőszoba egyedi tervezésű, amely a legújabb trendeknek megfelelően lett kialakítva. A lakás különlegessége a tágas, 19.51 négyzetméteres terasz, melyről városi panoráma tárul elénk.

A hőszivattyús mennyezet hűtés-fűtés révén az ingatlan egész évben kellemes hőmérsékletet biztosít, környezetbarát és alacsony költségen fentartható.

A Vizafogó - Marina part környéke nem csupán a modern lakóépületek és a rendezett környezet miatt vonzó, hanem a kiváló közlekedési lehetőségei miatt is. A közelben található busz- és metróállomás gyors és kényelmes hozzáférést biztosít Budapest belvárosához. A környék biztonságos és csendes, ideális választás családok, fiatal párok és befektetők számára egyaránt. A Duna part közelsége lehetővé teszi a vízparti sétákat, a sportolási lehetőségeket, valamint a számos étterem és kávézó felfedezését.

A közeli Duna Plaza bevásárlóközpont és üzletek minden szükséges szolgáltatást biztosítanak, így a mindennapi élet kényelmét maximálisan élvezheti. A környék zöldfelületei és parkjai pedig tökéletes helyszínt nyújtanak a pihenésre és a szabadidős tevékenységekre.

Várható átadás: 2026 nyár

Tágas parkolóhely elektromos töltő előkészítéssel további 9,5Mft-ért megvásárolandó.
További adatok
Telekterület: -
Kert mérete: -
Erkély mérete: 20 m2
Felszereltség: -
Parkolás: -
Kilátás: utcai
Egyéb extrák:  
Hirdető adatai
Hirdető neve: Otthon Centrum
Kapcsolattartó: Bakos Balázs
Hirdető telefonszáma: +36 70 716 9931
Honlap: -
 
Üzenetet küldhet a hirdetőnek, árajánlatot tehet az ingatlanra:
Az Ön neve:
Az Ön e-mail címe:
Üzenet: