Ingatlan Televízió
Ingatlan Televízió
további hirdetések
adatlap bezárása

Szekszárd 
 

Hivatkozási szám: 5901382
Ingatlan adatai
Irányár: 58 000 000 Ft
Típus: ház
Kategória: eladó
Alapterület: 168 m2
Fűtés: -
Állapota: felújítást igényel
Szobák száma: 4
Építés éve: 1972
Szintek száma: -
Részletes leírás
A Bottyán-hegyi területen található ház 1972-es építése óta korszerűsítésre került:

- 5 cm hungarocell hőszigetelés a teljes homlokzaton
- pala tető zsindelyezése
- Sanier Duval kazán
- LG klíma
- műanyag ablakok és redőnyök, fa tokban

Ezt leszámítva gyári a ház, felújítandó állapotú. 38 cm vastag téglából épültek a fő falak, 12/15 cm vastagok
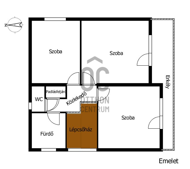
a válaszfalak. A tájékoztató jellegű alaprajzon jelöltek a falvastagságot és a helyiségek elrendezését.
Kis átalakításokkal egy nagyon élhető, jó terekkel rendelkező háza lehet annak a családnak aki atomvillanás álló
alapokkal rendelkező felújítási alapot keres. A teljes tervdokumentáció rendelkezésre áll 1970-ből, még az anyag-
beszerzés könyvelése is megőrzésre került.

Ha a képek és az adatok felkeltették az érdeklődésed nézzük meg a helyszínen!
További adatok
Telekterület: 624 m2
Kert mérete: 624 m2
Erkély mérete: 20 m2
Felszereltség: -
Parkolás: -
Kilátás: -
Egyéb extrák:  
Hirdető adatai
Hirdető neve: Otthon Centrum
Kapcsolattartó: Pintér Dániel
Hirdető telefonszáma: +36 70 461 9486
Honlap: -
 
Üzenetet küldhet a hirdetőnek, árajánlatot tehet az ingatlanra:
Az Ön neve:
Az Ön e-mail címe:
Üzenet: