Ingatlan Televízió
Ingatlan Televízió
további hirdetések
adatlap bezárása

Cegléd 
 

Hivatkozási szám: 5901342
Ingatlan adatai
Irányár: 77 000 000 Ft
Típus: ház
Kategória: eladó
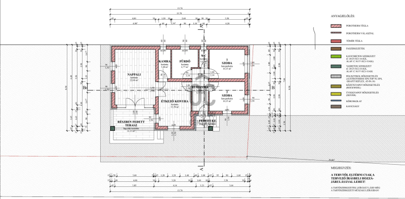
Alapterület: 86 m2
Fűtés: -
Állapota: új
Szobák száma: 3
Építés éve: 2025
Szintek száma: -
Részletes leírás
Cegléden, kertvárosias környezetben, közvetlenül a főútvonalon kínáljuk megvételre ezt a modern, energiatakarékos, épülő családi házat. A beruházás magas műszaki tartalommal, korszerű technológiákkal készül, így hosszú távon alacsony fenntartási költséget biztosít leendő tulajdonosa számára.

Főbb műszaki jellemzők:
- Egyedi hőszivattyús fűtésrendszer padlófűtéssel
- Téglaépítésű szerkezet, kívül 15 cm hőszigeteléssel (növelhető minimális felárral)
- Burkolatok, szerelvények egyedi igény szerint megválaszthatók
- Elektromos áram és víz bekötve, kiépítve, házi szennyvíz aknával

A kulcsrakész ár tartalmazza az utcafronti kerítést, a kétszárnyú kaput és a kiskaput (3D fémkerítés, beton lábazattal, 1,7 m magasságban)

Méretek:
- Nettó alapterület: 77,47 m²
- Teraszok: 17,56 m²
- Összterület: 95,03 m²

Átadás: a szerződéskötéstől számított 10–12 hónapon belül
Irányár: 77 000 000 Ft

Amennyiben hitelt szeretne, úgy az Otthon Centrum az ország egyik legnagyobb és legmegbízhatóbb hitelközvetítőjeként teljes körű és
díjmentes hitelügyintézéssel, biztosításkötéssel áll rendelkezésére!
Kérje személyre szabott ajánlatunkat Kollégáinktól!
A hirdetésben szereplő információk a megbízótól kapott adatok alapján készültek, pontosságukért felelősséget nem vállalunk! Az energetikai tanúsítvány besorolása és megadása a megbízó felelőssége. A megadott energetikai tanúsítványokat nem ellenőrizzük, azok valódiságáért felelősséget nem vállalunk!
További adatok
Telekterület: 912 m2
Kert mérete: 912 m2
Erkély mérete: 18 m2
Felszereltség: -
Parkolás: -
Kilátás: -
Egyéb extrák:  
Hirdető adatai
Hirdető neve: Otthon Centrum
Kapcsolattartó: Mészáros Béla
Hirdető telefonszáma: +36 70 461 9531
Honlap: -
 
Üzenetet küldhet a hirdetőnek, árajánlatot tehet az ingatlanra:
Az Ön neve:
Az Ön e-mail címe:
Üzenet: