Ingatlan Televízió
Ingatlan Televízió
további hirdetések
adatlap bezárása

Taksony 
 

Hivatkozási szám: 5901287
Ingatlan adatai
Irányár: 129 500 000 Ft
Típus: ház
Kategória: eladó
Alapterület: 127 m2
Fűtés: gáz (cirko)
Állapota: -
Szobák száma: 4
Építés éve: 1975
Szintek száma: -
Részletes leírás
Mediterrán kert saját medencével – nyugalom és kényelem Taksonyban, Dunaharasztitól pár percre!

Képzeld el, hogy minden reggel egy mediterrán kert látványa fogad: csillogó medence, illatozó növények, árnyas pihenőrész és egy hangulatos kerti sütögető. Egy hely, ahol tényleg lelassulhatsz – mégis közel maradsz a mindennapi városi élethez.

Ez a 127 m²-es, kétszintes, téglaépítésű, szigetelt családi ház egy csodásan parkosított 811 m²-es telken vár rád. Az emelet 2024-ben teljes felújítást kapott, így az ingatlanba csak be kell költöznöd.

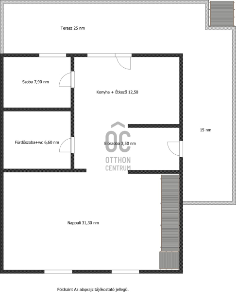
A ház elosztása:

Földszint:
• előszoba
• tágas nappali
• konyha + étkező
• hálószoba
• fürdőszoba
• lépcső alatti gardrób

Emelet:
• két szoba
• közlekedő
• fürdőszoba
• gardrób

Világos terek, jól kihasznált alaprajz, kényelmes családi életre tervezve.

A kert – a telek igazi ékszere, mediterrán oázis:

• saját medence
• halastó
• automata öntözőrendszer
• kerti sütögető
• gondozott mediterrán növényzet
• árnyékos pihenőrész
• körbeölelő, hangulatos terasz
16,7 m²-es pince

A kert végében egy 8 m²-es tároló vagy vállalkozásra is alkalmas helyiség.
A ház előtt 2024-ben készült automata kapuval ellátott dupla autóbeálló és térkövezett parkoló.
A telefonról vezérelhető kamerarendszer gondoskodik a modern biztonságról.

Elhelyezkedés és közlekedés – minden közel van, mégis csendes:

• Taksony egyik nyugodt, rendezett utcájában
• Dunaharaszti pár perc autóval
• Budapest autóval 15–20 perc
• Közeli HÉV és buszjáratok
• Iskola, óvoda, rendelő, boltok, gyógyszertár, sportpálya, éttermek – minden a közelben

Ez az ingatlan több mint egy ház: egy saját mediterrán oázis, ahol minden adott a kikapcsolódáshoz, a baráti és családi pillanatokhoz, és a nyugodt, kényelmes mindennapokhoz.

Szeretnéd élőben is átélni a hangulatát? Szívesen mutatom!
További adatok
Telekterület: 811 m2
Kert mérete: 811 m2
Erkély mérete: 40 m2
Felszereltség: -
Parkolás: -
Kilátás: -
Egyéb extrák:  
Hirdető adatai
Hirdető neve: Otthon Centrum
Kapcsolattartó: Gál Jánosné
Hirdető telefonszáma: +36 70 465 7056
Honlap: -
 
Üzenetet küldhet a hirdetőnek, árajánlatot tehet az ingatlanra:
Az Ön neve:
Az Ön e-mail címe:
Üzenet: