Ingatlan Televízió
Ingatlan Televízió
további hirdetések
adatlap bezárása

Gödöllő 
 

Hivatkozási szám: 5901267
Ingatlan adatai
Irányár: 325 000 000 Ft
Típus: kereskedelmi/ipari ingatlan
Kategória: eladó
Alapterület: 760 m2
Fűtés: -
Állapota: -
Szobák száma: -
Építés éve: 2025
Szintek száma: -
Részletes leírás
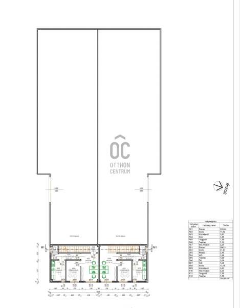
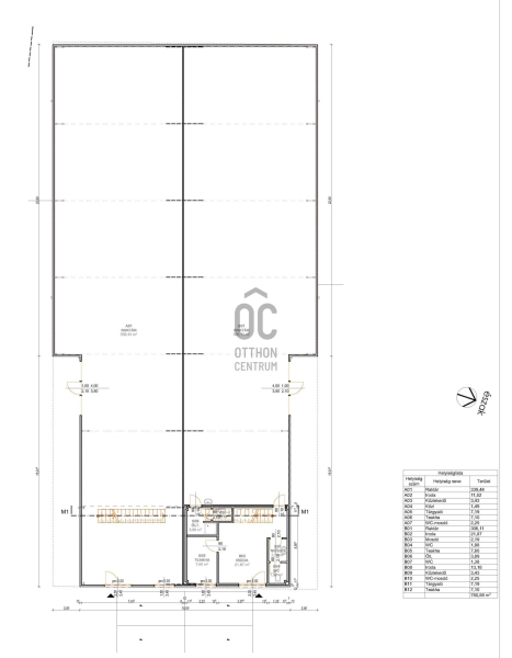
Gödöllőn, kiváló megközelíthetőséggel – az M31 felhajtó közvetlen közelében, az M0-tól mindössze 10 km-re – 1620 m²-es, összközműves telken elhelyezkedő, 750 m²-es acélszerkezetes, szendvicspanel (PIR) ipari csarnok eladó.

Az épület két, egymástól teljesen függetlenül használható egységre oszlik („A” és „B” rész), amelyek külön bejárattal, saját telekrésszel, valamint külön víz- és áramellátással rendelkeznek. Így akár két cég is önállóan, zavartalanul működhet – átfedés, egymáson keresztüljárás vagy rezsiköltség-vita nélkül.

Műszaki adatok:

Ereszmagasság: 5,65 m
Gerincmagasság: 6,34 m
Teljesen körbekerített telek
2 db 6,5 m-es ipari úszókapu
2 db kamion behajtó
Viacolor burkolatú út és parkoló

***Az ingatlan igény szerint egyben vagy külön is megvásárolható.***

„A” egység – 372 m²

Raktár: 300 m²
Irodák:
Földszint: 36 m²
Galéria: 36 m²
Szociális helyiségek: WC, zuhanyzó, öltöző, teakonyha
Saját telekrész: 456 m²

„B” egység – 378 m²

Raktár: 306 m²
Irodák:
Földszint: 39 m²
Galéria: 33 m²
Szociális helyiségek: WC, zuhanyzó, öltöző, teakonyha
Saját telekrész: 456 m²

Irányár: 325.000.000 Ft + ÁFA

További információért keressen a hét bármely napján!
További adatok
Telekterület: -
Kert mérete: -
Erkély mérete: -
Felszereltség: -
Parkolás: -
Kilátás: -
Egyéb extrák:  
Hirdető adatai
Hirdető neve: Otthon Centrum
Kapcsolattartó: Katona Mátyás
Hirdető telefonszáma: +36 70 469 3036
Honlap: -
 
Üzenetet küldhet a hirdetőnek, árajánlatot tehet az ingatlanra:
Az Ön neve:
Az Ön e-mail címe:
Üzenet: