Részletes leírás
Ez a projekt 2db épületet és 4db lakást tartalmaz:
--------
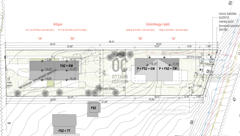
I. Épület (Kőpor utca): Építés éve: 2026.
*K-A Lakás:120,74 + Erkély/Terasz:32,41m², Szoba: 4db, Fürdőszoba: 2db, Felszíni parkoló: 2db, Telek: 405,5m² - 216,0 Mft.
*K-B Lakás:110,49 + Erkély/Terasz: 37,36 m², Szoba: 4db, Fürdőszoba: 2db, Felszíni parkoló: 1db, Telek:405,5m² - 209,9Mft.
II. Épület (Ürömhegyi lejtő): Építés éve: 2027.
*Ü-A Lakás: 126,52 + Erkély/Terasz: 43,00 m², Szoba: 5db, Fürdőszoba: 2db, Parkoló: 2db, Telek: 405,5m² - 275,9Mft.
*Ü-B Lakás:128,14 + Erkély/Terasz: 43,30 m², Szoba: 5db, Fürdőszoba. 2db, Parkoló: 2db, Telek: 405,5m² - 275,9Mft.
--------
Ez a hirdetés az alábbi lakást tartalmazza:
K-A Lakás:120,74 + Erkély/Terasz:32,41m², Szoba: 4db, Fürdőszoba: 2db, Felszíni parkoló: 2db, Telek: 405,5m² - 216,0 Mft.
FONTOSABB TUDNIVALÓK A LAKÁSRÓL:
- Újépítésű, minőségi alapanyagok felhasználásával,
- Modern tervezéssel és kivitelezéssel készül,
- Praktikus elrendezéssel és helykihasználással,
- Korszerű, alacsony hőátbocsátási tényezővel tervezett,
- Világos szobákkal, zöldre néző hőszigetelt ablakokkal,
- Motoros mozgatású redőnyökkel,
- 270-300 cm belmagassággal és rendkívül kedvező életterekkel,
- Hőszivattyús fűtés-hűtés rendszerrel felszerelt.
FONTOSABB TUDNIVALÓK A HÁZRÓL:
- Nagytelkes terület, összesen 811 m²,
- Az épület homlokzata modern, a környezetbe illő, minimalista homlokzat,
- A lakások száma az épületben 2db,
- Parkosított tágas udvarrésszel és kertkapcsolattal,
- Kültéri épület és udvarrész világítással felszerelt,
- Az épület Napelemes előkészítéssel rendelkezik,
- 2db felszíni beállóval rendelkezik.
Az Ürömhegyi utca rendkívül csendes, családi házas környék Budapest III. kerületében, ahol a közlekedés, egészségügyi ellátás, oktatási intézmények és szolgáltatások könnyen elérhetők, főként a közeli Bécsi út és Aranyhegy terület révén. Az Ürömhegyi lejtő tehát megfelelő infrastruktúrával, könnyen elérhető szolgáltatásokkal és jó közlekedési kapcsolatokkal rendelkezik, ideális választás családosok és elvonulásra vágyók számára.
A környék szolgáltatásai, gyalogos vagy néhány perces közlekedési távolságra:
KÖZLEKEDÉS: Tömegközlekedéssel a 160-as, 943-as, valamint a 960-as buszjáratok érintik a környéket, így a belváros és Óbuda felé is jó a közlekedési kapcsolat. A 260-as és 219-es buszok közlekednek. A környék főbb útvonala a Bécsi út, amely gyorsan elérhető autóval és tömegközlekedéssel is. A járatok hétköznap reggel és délután sűrűbben, egyéb időszakban ritkábban közlekednek.
GYÓGYSZERTÁRAK: A Harsánylejtő Gyógyszertár a Bécsi út 314. alatt, 0-24 órás nyitvatartással várja az érdeklődőket. Ingyenes utcai parkolás, kiterjedt szolgáltatáskínálat jellemzi. Külön gyógyászati és állatgyógyászati termékek is elérhetők.
EGÉSZSÉGÜGYI SZOLGÁLTATÁS: A III. kerületben található Szent Margit kórház, illetve több járóbeteg-szakrendelő biztosítja a lakosság számára az alap- és szakorvosi ellátást. A Csillaghegyi Közösségi Házban sószoba is működik, ami légzőszervi és allergiás problémákra jelent jó megoldást, kizárólag III. kerületi lakosok számára, előzetes bejelentkezéssel. Szociális ápoló-gondozó szolgáltatások is elérhetőek a környéken.
OKTATÁSI INTÉZMÉNYEK ÉS GYERMEKINTÉZMÉNYEK: Óvodák és általános iskolák elsősorban a III. kerület központibb részein találhatók, átlagosan a kerületi óvodások és iskolások 10%-a nem helyi lakos. Az Aranyhegy-Ürömhegy-Péterhegy szegregátum kedvező oktatási vonzással bír.
ÉLELMISZERBOLTOK ÉS EGYÉB SZOLGÁLTATÁSOK: A mindennapi bevásárlási lehetőség a közelben található nagy CBA bevásárlóközpontban. A nagyobb üzletláncok is megtalálhatóak a Bécsi út mentén vagy annak közvetlen közelében. A környéken különféle további szolgáltatások, például szabadidős, sport- és kulturális létesítmények, illetve sószoba is igénybe vehető a Csillaghegyi közösségi házban.
KEDVEZŐ LAKÁSHITEL (jelentős volumenben helyezünk ki hiteleket): EGYEDI IGÉNYEKRE SZABOTT LAKÁSHITELEKKEL állunk rendelkezésére. BANKFÜGGETLEN hitelcentrumunk az országban elérhető ÖSSZES BANK ÉS HITELINTÉZET ajánlatát VERSENYEZTETI az Ön számára díjmentesen. MUNKATÁRSAINK nagy szakmai tapasztalattal várják Önt az előre egyeztetett időpontban akár a normál munkaidő után is.
Projekt bemutatása
A Kőpor utcában megvalósuló lakóingatlanfejlesztés tervezésekor kiemelt figyelem övezi nem csak az átgondolt térkapcsolatokat és a jól használható helyiségeket, hanem a beépítendő anyagokat is. A Beruházó törekszik a legjobb ár/érték arány elérésére, a modern megjelenésre, a korszerű műszaki megoldásokra és arra, hogy a ház használója olyan anyagokkal és megoldásokkal találkozzon nap mint nap, aminek látványa és érintése méltó a megbecsülésre, és örömöt szerez a mindennapokban.
Ennek megfelelően a nem látható szerkezetek elsődleges szempontja a magas műszaki elvárások mellett a tartósság, értékállóság, a látható, érezhető, tapintható anyagok esetén pedig figyelünk a felületekre, esztétikára is.
ÉPÍTÉSZET
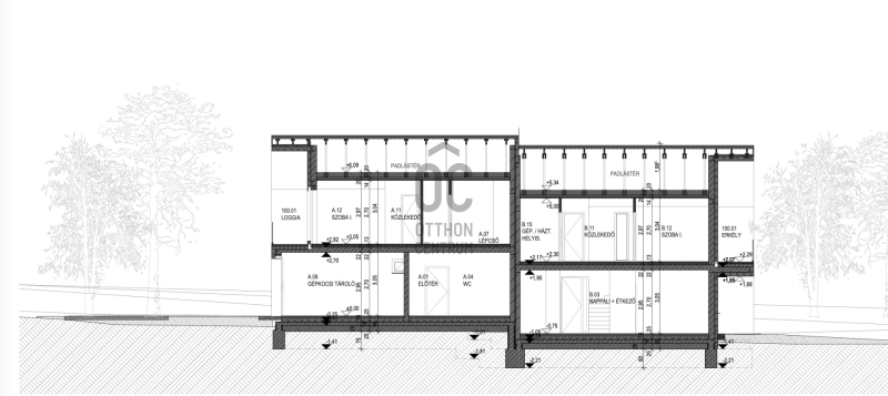
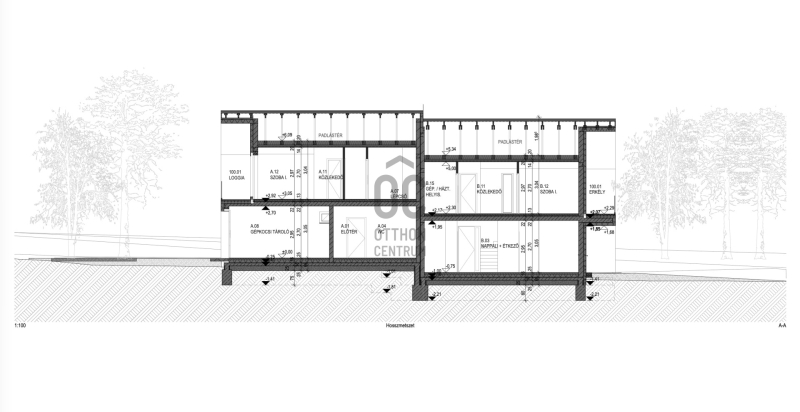
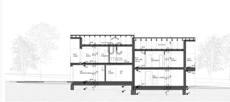
Alapozás: statikailag méretezett vasbeton sáv- vagy lemezalap.
Födémek: monolit vasbeton födémszerkezet az építési tervdokumentáció statikai terve szerint úsztatott padló rétegrenddel, akusztikailag megfelelő vastagságban.
Teherhordó falazat: vázkerámia falazóblokk vagy pórusbeton falazóelem.
Válaszfalak: fürdőszobák és egyéb belső lakóhelyiségek falazata 10 cm NF égetett tégla vakolva, tárolók és alárendelt helyiségek pórusbeton, égetett kerámia vagy gipszkarton.
Tetőszerkezetmagastető esetén fa szerkezetű tető a szarufák között szigeteléssel kitöltve, gipszkarton belső borítással, az építési tervdokumentáció szerint.
Épület külső hőszigetelés: hőtechnikailag méretezett EPS szigetelés mechanikai rögzítéssel és hálóval ragasztva, 1,5 mm szemcsenagyságú kapart hőszigetelő nemesvakolat.
Nyílászárók:
Ablakok: korszerű, alacsony hőátbocsátási tényezőjű (U=0,75 W/m2K, Uf=0,79W/m2K), 7 légkamrás, 3 rétegű üvegezéssel ellátott műanyag nyílászárók kívül a homlokzat színéhez illeszkedő, belül fehér színben. A nappaliban emelő-toló, a többi helyiségben helyiségenként 1 nyíló vagy bukó-nyíló és terv szerinti fix ablakok.
Belső ajtók: nettó 120eFt-ig választható, küszöb nélküli kialakítású, kilinccsel, Beruházóval egyeztetett beszállítótól választva. Lakásonként 7db belső ajtó képezi az alapár részét.
Bejárati ajtó: minősített lakásbejárati ajtó HPL borítással vagy festett felülettel, nettó 280eFt-os összeghatárig.
Garázstér: acél saroktokos ajtók nettó 100eFt értékig, 3db ajtó képezi az alapár részét.
Árnyékoló: motoros mozgatású redőny vakolható redőnytokkal.
Ablakpárkányok: kívül és belül egyaránt gránit, helopál vagy ehhez hasonló anyagú ablakpárkányok.
Teraszok: 60x60 cm-es modulméretű fagyálló járólap felszíni vízelvezetéssel, emeleten csepegtető alkalmazásával, járólap szegélyezés azonos anyagból 8cm magasságig, fém teraszkorlát az emeleten.
Gépkocsi behajtó: az épület körül 40cm-es osztályozott murva- vagy kőzúzalékágy, gépkocsi behajtó legalább 3m szélességben térkövezett borítást kap.
Burkolatok:
Fürdőszobák, WC-k, konyha, étkező és előtér - Padlóburkolat:
választható színű járólap, 30x30 / 60x30-as méretű, nettó 10eFt/m2 keretösszegben, illeszkedő élvédőkkel, járólap szegélyezés azonos anyagból 8cm magasságig, 10% kálóval számolva.
OPCIONÁLIS (többletköltség vállalása esetén): értékhatár feletti beszerzés, eltérő méretű lapokkal való burkolás, élvédők beszerzése és felrakása, ez esetben az anyagszállítás költsége is a vevőt terheli.
Fürdőszobák - Falburkolat:
választható greslap, 30x30/60x30-as méretű falburkolat a fürdőszobában plafonig, illetve WC-ben a kézmosó körül 1m2, valamint a WC körül 1m2, összesen 6m2 burkolási felület nettó 10eFt/m2 keretösszegben, élvédők nélkül, 10% kálóval számolva.
OPCIONÁLIS (többletköltség vállalása esetén): megadott területek feletti burkolás, és a megadott burkolólap mérettől eltérő méretű burkolólapokkal történő burkolás.
Lakószobák – Padlóburkolat:
Laminált fa padlóburkolat nettó 8eFt/m2-ig, színazonos szegőléccel és végzáróval.
OPCIONÁLIS (többletköltség vállalása esetén): értékhatár feletti burkolat választása, eltérő burkolattípus választása, fehér színű MDF lábazat, egyedi beszerzés.
Lépcső – Padlóburkolat:
Lépcsőburkolat nettó 10eFt/m2-ig, színazonos szegőléccel és végzáróval.
OPCIONÁLIS (többletköltség vállalása esetén): értékhatár feletti burkolat választása, eltérő burkolattípus választása, fehér színű MDF lábazat, egyedi beszerzés.
Garázs:
Műgyanta burkolat, a gépészeti helyiségben műgyanta vagy választható színű járólap nettó 7,5eFt/m2 keretösszegben, illeszkedő élvédőkkel, járólap szegélyezés azonos anyagból 8cm magasságig, 10% kálóval számolva.
KÜLTÉRI MUNKÁK
Kertészeti munkák, tereprendezés: terepszintek kialakítása, durva tereprendezés, 1db kerti csap, 1db vízbetáp és 1db erősáramú csatlakozás automata öntözőnek a földszinti lakások kertjéhez.
Kerítés:utcafronti kerítés zsalukő alapzattal, míg a szomszédos telkeket elválasztó 3D elemes kerítés, 250x150 cm-es táblaméret, tartóoszlopokkal.
Kapuk:utcafronton motoros kapu.
Kapucsengő, egyebek:vezeték nélküli kapucsengő, postaláda, videó kaputelefon lakásonként 1 belső egységgel, házszám.
Külső világítás:nappali terasz felé 2db, oldalkert felé 2db falikar kiállás.
Pergola előkészítés: elektromos kiállás árnyékoláshoz és világításhoz.
ÉPÜLETGÉPÉSZET (VÍZ-CSATORNA, HŰTÉS-FŰTÉS, SZELLŐZÉS)
Külső közműbekötés:
Víz- és szennyvíz közmű bekötés és teljes felszíni esővíz elvezetés, szikkasztó kiépítése
Fürdőszoba: Alapszerelés:
fürdőszobánként szerződéses alaprajz szerint 1db beépített WC állvány és fajansz, nyomólap, 1db zuhanytálca üvegfallal/üvegkabinnal és 1db mosdó. Ezekhez szükséges víz és csatorna kiállások, valamint egyik fürdőszobában/mosókonyhában +1db víz-szennyvíz kiállás a mosógépnek.
OPCIONÁLIS: plusz kiállások, alaprajztól eltérő kialakítás.
Szerelvényezés:
alaprajz szerint zuhanytálca üvegfallal/üvegkabinnal vagy kád + mélyöblítésű WC + falra szerelt kézmosó, szifonnal + falra szerelt zuhanycsap, zuhanyszettel + kézmosó csaptelep + szifon leeresztővel, törölközőszárító. (Mindezen szerelvények, szaniterek, csaptelepek lakásonként nettó 800e Ft értékhatárig szerepelnek az alapárban).
OPCIONÁLIS (többletköltség vállalása esetén): értékhatár feletti beszerzés vagy egyedi szanitercsomag választása (anyagár + szállítás + anyagmozgatás költségének elszámolása), bútoros mosdó, pipere szerelvények beszerzése és felszerelése.
Konyha: Alapszerelés:
1db kézi mosogató, 1db mosogatógép víz-és szennyvíz kiállás, elszívó kivezetés becsövezése.
OPCIONÁLIS (többletköltség vállalása esetén): plusz kiállások, konyhabútor beépítése.
Melegvízellátás: lakásonként 150 literes bojler vagy kombi hőszivattyús melegvíz tároló kerül kialakításra.
Fűtés-hűtés: központi levegő hőszivattyús fűtési-hűtési rendszer födémbe kerülő csövezéssel, mennyezeti hűtés-fűtés kialakítására, termosztáttal vezérelve lakószobánkként.
padlófűtés a földszinten és az emeleten.
OPCIONÁLIS (többletköltség vállalása esetén): secunder fűtésrendszer kiépítése (pl. klímarendszer kiépítése).
Szellőzés: OPCIONÁLIS (többletköltség vállalása esetén): hővisszanyerős szellőztető gép telepítése és a szellőztető rendszer beüzemelése.
Víznyomás fokozás: OPCIONÁLIS (többletköltség vállalása esetén): víznyomásfokozó berendezés beépítése, puffertartállyal.
Vízlágyítás: OPCIONÁLIS (többletköltség vállalása esetén): vízlágyító berendezés beépítése.
ERŐSÁRAM
Külső közműbekötés: árambekötés, önálló mérésű 3x16A kapacitás lakásonként, valamint a központi épületgépészeti egységekhez szükséges kapacitás.
Napelem előkészítés: tetőn a Vevő által megjelölt helyre elektromos előkészítés.
Alapszerelés: Hálószobákban: 1db egy pólusú villanykapcsoló, 3db egyes konnektor, 1db mennyezeti lámpa kiállás.
Nappali-előtér: 4db egyes villanykapcsoló (melyből 2db alternatív/váltó), 6db konnektor, 3db mennyezeti lámpa kiállás.
Fürdők: 1db két pólusú villanykapcsoló, 3db konnektor, 1-1db mennyezeti és fali (tükörvilágítás) lámpa kiállás, villanymotoros szagelszívó motor beépítése kapcsoló általi vezérléssel.
WC-k: 1db egy pólusú villanykapcsoló, 1db mennyezeti lámpa kiállás, villanymotoros szagelszívó motor beépítése kapcsoló általi vezérléssel.
Konyha-étkező: 1db egyes villanykapcsoló, 4db konnektor, közvetlen mosogatógép és 1db 3 fázisú elektromos tűzhely kiállás, konyhai elszívó kiállás, 1-1db mennyezeti lámpa és pultvilágítási kiállás.
Közlekedő: 2db villanykapcsoló (alternatív) 1db konnektor, 1db mennyezet kiállás.
Kültéri részek: bejáratnál és teraszoknál 1-1db egyes villanykapcsoló, 2db homlokzat világítás.
Garázs: mozgásérzékelő által vezérelt világítás, 2db konnektor (gépészeten kívüli)
- 3db kültéri világítás terasznál, 1db világítás a bejárati ajtónál,
- napelemes rendszer előkészítés mindhárom lakóegységhez,
- elektromos autótöltőnek előkészítés mindhárom lakóegységhez a garázsban,
- elektromos előkészítés jacuzzinak a földszinti teraszon,
OPCIONÁLIS (többletköltség vállalása esetén): plusz bekötések, szerelvények és kiállások kiépítése, valamint világítótestek beszerzése és világítótestek felszerelése.
GYENGEÁRAM
Kommunikáció:a nappali és a hálószobákban 1-1db internet és TV csatlakozás.
OPCIONÁLIS (többletköltség vállalása esetén): plusz kiállások, gyengeáramú hálózat bővítése.
Riasztó rendszer: alapkábelezés későbbi riasztó rendszer telepítéséhez, aktív eszközök telepítése nélkül. Tervezett kiállások: bejárati ajtó (1db), nappali (2db), előszoba (1db), hálószobák (1-1db) fürdőszobák (1-1db). Nyitás- vagy mozgásérzékelők + riasztó központ + külső jelző berendezés + 1db kezelő panel (bejáratnál).
OPCIONÁLIS (többletköltség vállalása esetén): plusz érzékelők vagy ettől eltérő riasztó rendszer szerelése, aktív eszközök szerelése és riasztórendszer üzembehelyezése.
Szolgáltatói telekommunikációs kiépítés: földcsatorna kiépítés a telekhatártól a pinceszinti fogadóig, kábelezés a pinceszinti fogadótól a lakó megbízásából a szolgáltató feladata.