Ingatlan Televízió
Ingatlan Televízió
további hirdetések
adatlap bezárása

Budapest, XV.kerület 
 

Hivatkozási szám: 5900452
Ingatlan adatai
Irányár: 263 000 000 Ft
Típus: ház
Kategória: eladó
Alapterület: 280 m2
Fűtés: -
Állapota: -
Szobák száma: 9
Építés éve: 1986
Szintek száma: -
Részletes leírás
Befektetők (is) figyelem!

Sok lehetőséget magába foglaló, átalakítható, újra gondolható. Kis hostel, munkásszállás vagy 2 generáció részére elszeparáltan használható. Érdemes rápillantani mert ….

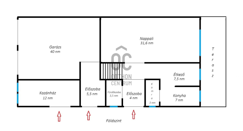
…. Budapest XV. kerületéből, Rákospalotáról hoztam Önöknek egy brtt. 326 nm-es, 8 szobás és 1 félszobás, 1986-ban, téglából épített, 2 generációs családi házat.
Az épület csendes, aszfaltozott utcában található, egy 15 méter frontszélességű, gondozott, 600 nm-es telken.
A szobákat 2 külön bejáratú lakásban osztották el, lakrészenként 2-2 fürdőszobával. A belső elválasztó falak bonthatóak, így a terek átrendezésének csak a fantázia szab határt.
A korábban beszerelt ablakokat és teraszajtókat, korszerű, műanyag keretes, hő- és hangszigetelő nyílászárókra cserélték.
A meleg vizet villanybojlerek szolgáltatják, a fűtésről a földszinti kazánházban elhelyezett gázkazán, illetve egy fa elgázosító kazán gondoskodik.
Az ingatlan értékét növeli egy 2 gépkocsi befogadására alkalmas garázs, amit az utca felől, távirányítható kapukon át lehet megközelíteni.
A kertben grillező, medence és külvárosi csend szolgálja az aktív és meditatív pihenést. A grillező körül kialakított tér alatt, 25 nm-es, 2,5 m mély, fagy mentes pincét találunk, ami zöldségek tárolására és a kerti növények teleltetésére is használhatunk.
Az ingatlan előnyeit és a benne rejlő lehetőségeket felsorolni is nehéz és még tartogat további meglepetéseket.
Amennyiben ez a ház az Ön számára is tartogat lehetőségeket, várom megtisztelő hívását, a hét minden napján.
További adatok
Telekterület: 753 m2
Kert mérete: 753 m2
Erkély mérete: 20 m2
Felszereltség: -
Parkolás: -
Kilátás: -
Egyéb extrák:  
Hirdető adatai
Hirdető neve: Otthon Centrum
Kapcsolattartó: Pintér Béla László
Hirdető telefonszáma: +36 70 469 3006
Honlap: -
 
Üzenetet küldhet a hirdetőnek, árajánlatot tehet az ingatlanra:
Az Ön neve:
Az Ön e-mail címe:
Üzenet: