Ingatlan Televízió
Ingatlan Televízió
további hirdetések
adatlap bezárása

Szigetszentmárton 
 

Hivatkozási szám: 5900321
Ingatlan adatai
Irányár: 78 000 000 Ft
Típus: ház
Kategória: eladó
Alapterület: 93 m2
Fűtés: gáz (cirko)
Állapota: új
Szobák száma: 4
Építés éve: 2025
Szintek száma: -
Részletes leírás
(Otthon Start hitellel is megvásárolható!)

Főbb jellemzők:
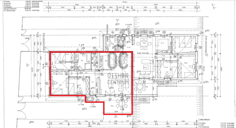
- Épület típusa: földszintes, kétlakásos, társasház

- Telek mérete: 763 m²

- Hasznos alapterület összesen: 93,3 m² + 14,25 m² nyitott terasz

- Helyiségek lakásonként: nappali–étkező–konyha egy légtérben, 3 hálószoba, fürdőszoba, külön WC, előtér, közlekedő

- Tető: 25° hajlásszögű kontyolt nyeregtető, sötétbarna betoncserép

- Nyílászárók: háromrétegű hőszigetelő üvegezés, fehér műanyag

- Fűtés és HMV: lakásonkénti kondenzációs gázkazán, központi melegvizes fűtés

- Villamos rendszer: modern, energiatakarékos világítás és dugaljrendszer, napelemrendszer kiépíthető

- Szerkezet: vasbeton sávalap, 30 cm-es tégla teherhordó falak, fagerendás födém, 15 cm EPS hőszigetelés

- Gépkocsi elhelyezés: telken belül biztosított

Elhelyezkedés:
Szigetszentmárton hangulatos, nyugodt kis település a Ráckevei-Duna partján, kiváló közlekedési kapcsolatokkal Budapest irányába is. A csendes utca, családias kertvárosi övezet, barátságos lakóközösséggel, zöld környezettel és fejlődő infrastruktúrával.

Ne hagyja ki ezt a kivételes lehetőséget! Vegye fel velünk a kapcsolatot még ma, és biztosítsa új otthonát – akár Otthon Start hitellel is!

- - -

Adatbázisunkban további több ezer ingatlanból választhat, hívjon bizalommal, hogy megtaláljuk a legmegfelelőbbet!
Teljes körű és díjmentes hitel-ügyintézéssel áll rendelkezésére szakértő kollégánk. Kérje személyre szabott ajánlatunkat!
További adatok
Telekterület: 763 m2
Kert mérete: 763 m2
Erkély mérete: 14 m2
Felszereltség: -
Parkolás: -
Kilátás: -
Egyéb extrák:  
Hirdető adatai
Hirdető neve: Otthon Centrum
Kapcsolattartó: Fejes Tímea
Hirdető telefonszáma: +36 70 388 5336
Honlap: -
 
Üzenetet küldhet a hirdetőnek, árajánlatot tehet az ingatlanra:
Az Ön neve:
Az Ön e-mail címe:
Üzenet: