Ingatlan Televízió
Ingatlan Televízió
további hirdetések
adatlap bezárása

Diósd 
 

Hivatkozási szám: 5900126
Ingatlan adatai
Irányár: 210 000 000 Ft
Típus: ház
Kategória: eladó
Alapterület: 132 m2
Fűtés: -
Állapota: új
Szobák száma: 4
Építés éve: 2026
Szintek száma: -
Részletes leírás
Egy igazán különleges lehetőséget kínálunk Önnek, amely nemcsak a modern életstílushoz igazodik, hanem a befektetési lehetőségek szempontjából is kiemelkedő.

Diósdon, újépítésű családi ház, mely az Ön izlése szerint még alakítható. Ahol a városi élet nyüzsgése és a természet közelsége harmonikusan találkozik.

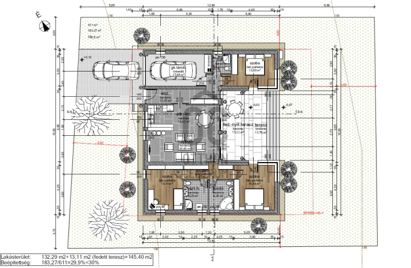
Ingatlan alapterülete 132,29 m2
-Nappali 20,00 m2
-Szoba13,90 m2
-Szoba 14,00 m2
-Szoba 16,84 m2
-Előszoba 11,37 m2
-Étkező - konyha 16,42 m2
-Fürdőszoba 6,25 m2
-Zuhanyzó 3,10 m2
-Gerdrób 6,31 m2
-Tároló 6,25 m2
-GK tároló 17,85 m2
-Terasz 13,11 m2

A ház hőszivattyús H tarifás fűtése modern és energiatakarékos megoldás, amely nemcsak a fenntartási költségeket csökkenti, hanem a környezet védelmét is szolgálja. Az ingatlan minden szobája és a nappalija klimatizált.

Elektromos auto töltő, elektromos redőnyök-, szúnyoghálóval ellátva a magasabb kényelmet biztosítja új tulajdonosa számára. Garázskapu szintén elektromos, e mellett kamera rendszer és riaszt biztosítja a tulajdonosok védelmét.

Budapest autóval 15 perc, közelben iskola, óvoda , bevásárlási lehetőségek, orvosi rendelő, busz meg álló 5 perc seta.

Autópályák gyorsan elérhetőek M6,M0,M7.

Amennyiben felkeltette érdeklődését ez a kivételes ingatlan, ne habozzon kapcsolatba lépni velünk a hét bármely napján! Kérdéseivel és igényeivel bátran kereshet minket, hiszen célunk, hogy a lehető legjobb megoldást nyújtsuk Önnek az ingatlanpiacon. Az Ön új otthona már csak egy lépésnyire
További adatok
Telekterület: 611 m2
Kert mérete: 611 m2
Erkély mérete: 13 m2
Felszereltség: -
Parkolás: -
Kilátás: -
Egyéb extrák:  
Hirdető adatai
Hirdető neve: Otthon Centrum
Kapcsolattartó: Bögös Zsolt
Hirdető telefonszáma: +36 70 461 9991
Honlap: -
 
Üzenetet küldhet a hirdetőnek, árajánlatot tehet az ingatlanra:
Az Ön neve:
Az Ön e-mail címe:
Üzenet: